House 8: A Modern Concrete House Design in Curitiba, Brazil
House 8 is a modern concrete house design in Curitiba, Brazil, integrating architecture with nature and sustainable materials.
House 8, designed by Marcos Bertoldi Arquitetos, stands as a testament to the innovative potential of modern concrete house design. Located in Curitiba, Brazil, this residence is sculpted from concrete, blending striking contemporary architecture with the surrounding natural environment. Built on a 2,124 m² sloping lot with a native woodland backdrop, the house utilizes its site’s unique topography to create a harmonious relationship between architecture and nature. The design emphasizes minimalist forms, sharp lines, and a perfect integration of functionality and aesthetics, all centered around concrete as the dominant material.



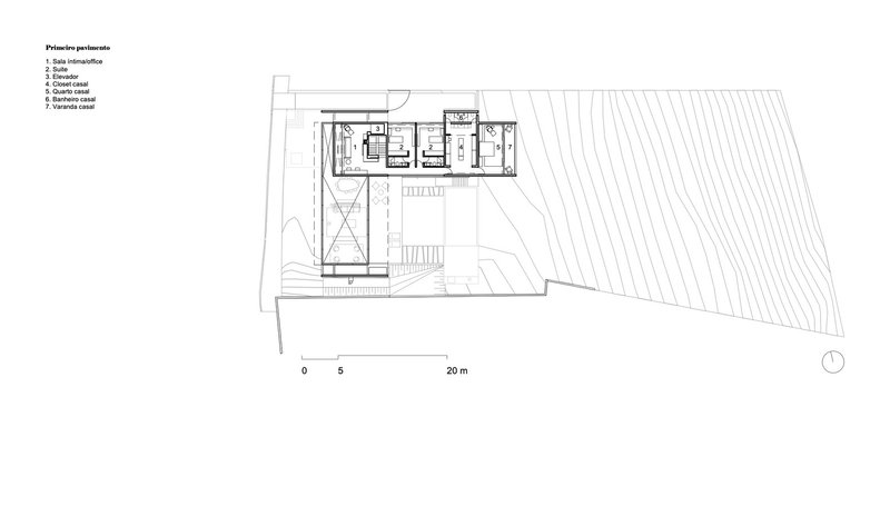
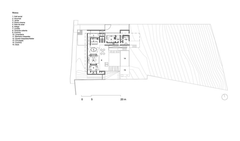
Site and Layout: Embracing the Landscape
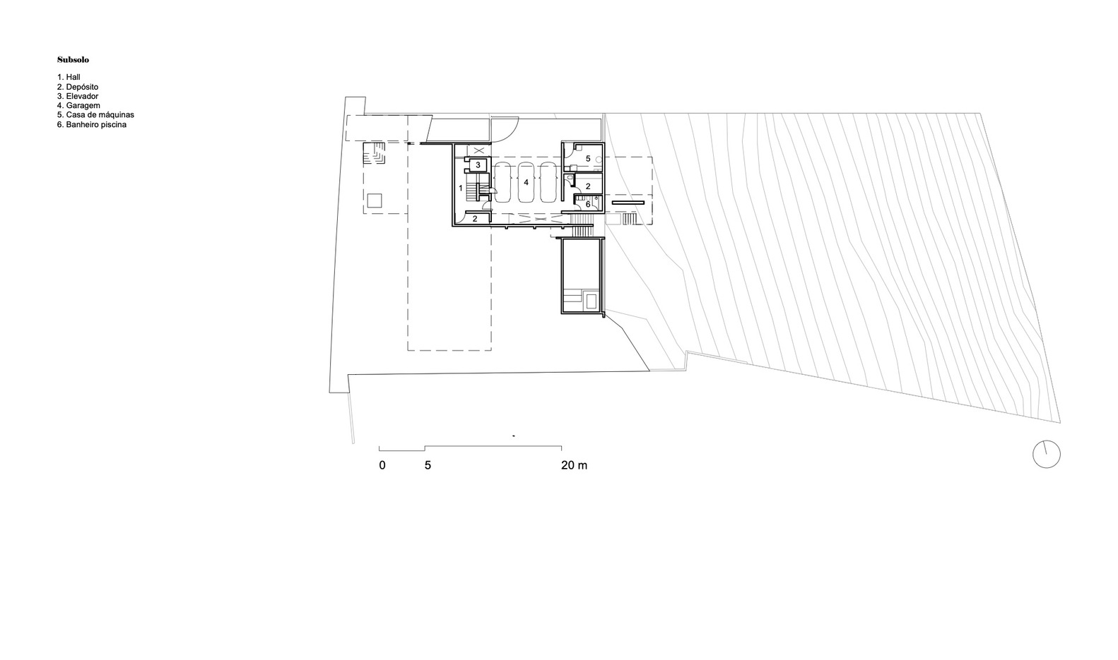
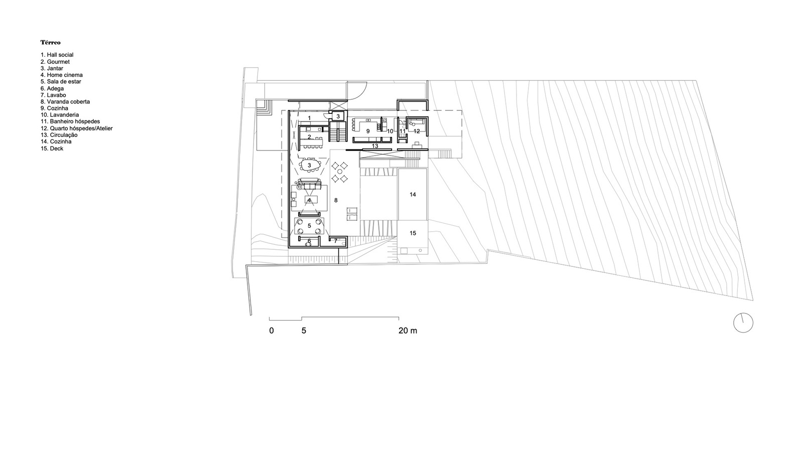
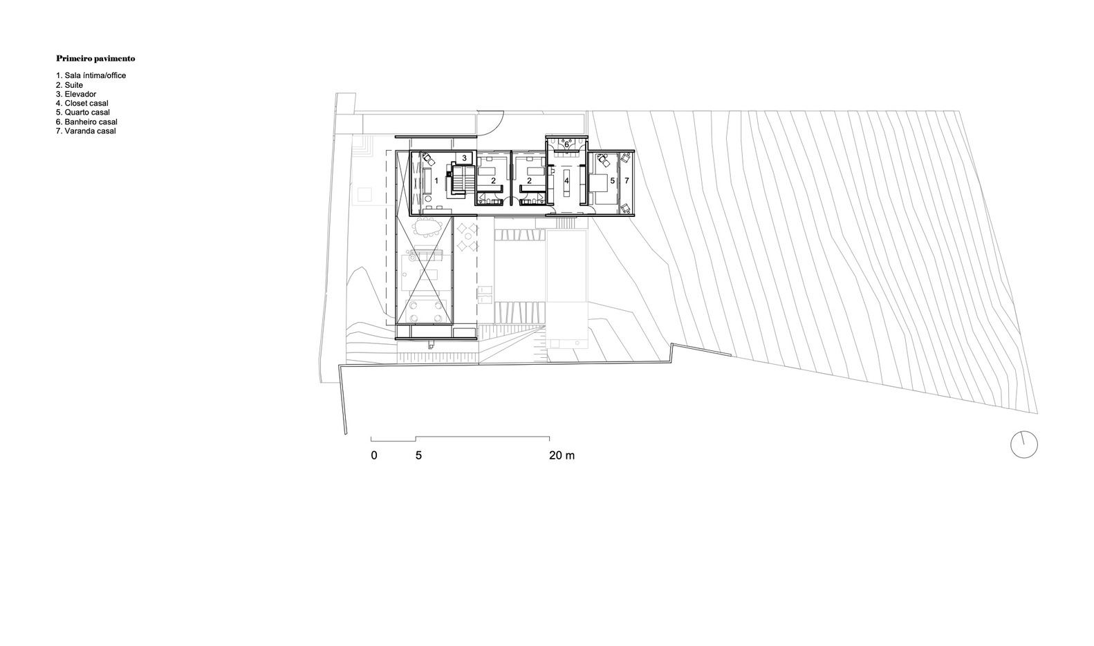
The site’s challenging sloping terrain and environmental regulations played a significant role in shaping the house’s design. The project carefully preserves the lawned garden and pool, respecting the protection zones mandated by local regulations. The building layout follows an L-shaped ground floor plan, concentrating the social areas, service spaces, and a studio. The shorter leg of the L features a single-story double-height volume dedicated to the main living spaces, complemented by a powder room and wine cellar beneath a green roof. The larger leg of the design comprises three levels, with garages in the basement, service areas on the ground floor, and private bedrooms on the upper floor.


Positioning the bedrooms on the northern side of the house ensures ample natural light, while the master suite overlooks the serene woodland, creating a tranquil, private retreat.


Social Area: A Concrete Masterpiece
One of the most remarkable features of House 8 is the open-plan social area, which is glazed on all four sides, offering views of the pool and street-facing façade. This social area benefits from eastern sunlight on its poolside, and western light on the street-facing side, ensuring a bright and inviting atmosphere throughout the day. The design incorporates privacy while maintaining openness, as the western openings begin at a height of over 3 meters, ensuring natural light without compromising the inhabitants’ privacy.



In the pursuit of slender proportions and clean lines, the roof slab and exposed concrete walls are connected by two inverted beams. These beams allow the structural elements to remain detached, creating an exploded volume that admits light from various angles. The result is a striking visual effect, where the walls and roof appear to float, emphasizing the house's modernist approach. This floating concrete form is further accentuated by a large cantilevered prismatic block, which projects out toward the woodland, adding a sense of dynamism to the design.



Materials: Concrete and Ceramic Harmony
House 8 emphasizes the use of raw, exposed materials such as concrete and ceramic to create contrasting textures and volumes. The exposed concrete structure is elevated above the ground, allowing the house to visually float over the site, while the walls in direct contact with the earth are finished in gray ceramic bricks. This contrast not only enhances the aesthetic appeal but also allows for the efficient use of space and material properties.


The entrance of the house is marked by an amphitheater-like staircase and plaza, finished in the same exposed concrete material. The number "8" is cleverly integrated into a black metal railing, visible through circular cutouts, adding a unique detail to the exterior design. The landscaping, featuring cascading Paraná white marble blocks, further complements the sloping site, stabilizing the terrain and contributing to the house’s seamless integration with its environment.


Structural Integrity and Privacy: A Concrete Vision
The core design principle of House 8 was to create a structure that feels both monumental and approachable, using concrete as the unifying material throughout. The cantilevered concrete block that houses the family room and other private areas extends over the social space, offering a sense of openness and continuity while maintaining privacy. This large volume hovers above the ground, allowing for an unobstructed view of the surrounding landscape and enhancing the connection between the interior and nature.



Sustainable Design Features
While House 8 stands out for its bold use of concrete, it also incorporates sustainable design elements, particularly in the use of green roofs and the careful positioning of the building on the slope. The green roof above the wine cellar serves as both an aesthetic feature and a passive cooling mechanism, helping to maintain energy efficiency by insulating the space below. Additionally, the thoughtful landscaping integrates locally sourced materials that contribute to the home's sustainability and overall connection to the environment.




A Modern Concrete Masterpiece
House 8 is a stunning example of modern concrete house design, blending contemporary architectural forms with natural surroundings. The creative use of concrete, the cantilevered structures, and the intricate design details showcase the potential for concrete to be both a functional and artistic material. With its focus on privacy, natural light, and harmonious integration with the landscape, House 8 is not only a remarkable architectural achievement but also a testament to the power of design in creating a balanced and sustainable living environment.




All Photographs are works of Eduardo Macarios
Popular Articles
Popular articles from the community
The Ken Roberts Memorial Delineation Competition (Krob)
As the most senior architectural drawing competition currently in operation anywhere in the world, it draws hundreds of entries each year, awarding the very best submissions in a series of medium-based categories.
Inverted Architecture Installation by Studio Link-Arc: Exploring the Intersection of Architecture and Living Organisms
Inverted Architecture Installation by Studio Link-Arc blends mycelium, sustainability, inverted design, ecological cycles, and urban adaptive architecture in Shenzhen.
Louis Malle Cinema: A Limestone Cultural Landmark Revitalizing Community Life in Prayssac
Limestone cinema extension with public forecourt, blending heritage and modern design to create flexible cultural spaces and strengthen community interaction.
An Miên Lumière Cafe by xưởng xép, Ho Chi Minh City, Vietnam
An industrial-inspired café where layered steel and warm light create a dynamic, immersive environment shaped by reflection, depth, and perception.
Similar Reads
You might also enjoy these articles
The Ken Roberts Memorial Delineation Competition (Krob)
As the most senior architectural drawing competition currently in operation anywhere in the world, it draws hundreds of entries each year, awarding the very best submissions in a series of medium-based categories.
Waterfront Redevelopment and Urban Revitalization in Mumbai: Forging a New Dawn for Darukhana
A transformative waterfront redevelopment project reimagining Darukhana’s shipbreaking heritage into an inclusive urban future.
OUT-OF-MAP: A Call for Postcards on Feminist Narratives of Public Space
Rhizoma Design and Research Lab invites artists, designers, architects, researchers, and students to reflect on how feminist perspectives can reshape public space. Selected works will be exhibited in Barcelona, October 2026. Submissions open until 15 April 2026.
Documentation Work on Buddhist Wooden Temple
Architectural syncretism and cultural hybridity: A comparative study of the Buddhist temples in Chattogram Hill tracks
Explore Architecture Competitions
Discover active competitions in this discipline
The International Standard for Design Portfolios
The Global Benchmark for Architecture Dissertation Awards
The Global Benchmark for Graduation Excellence
Challenge to reimagine the Iron Throne
Comments (0)
Please login or sign up to add comments
No comments yet. Be the first to comment!