House Boêmia by Costa Matoso: Compact House Design with Courtyard Comfort in Urban Brazil
A vibrant compact house blending industrial style and courtyard living, designed for social connection on a narrow Brazilian urban lot.
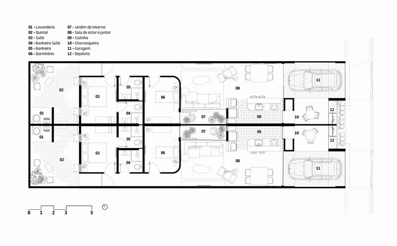
House Boêmia, designed by Costa Matoso Arquitetura e Engenharia, is a brilliant response to the growing need for quality compact house design with courtyard features in dense Brazilian neighborhoods. Built on a narrow 5 x 25-meter half-lot, this semi-detached home proves that small-scale living can still offer spatial richness, warmth, and strong social engagement.



Reimagining Small-Lot Living with a Social Heart
With a modest built area of 85m², the architectural concept centers around enhancing communal areas rather than expanding bedrooms or circulation. By prioritizing shared living, House Boêmia embraces its spatial limitations with creativity. The open-plan layout merges the living room, dining area, and kitchen into a fluid volume that connects directly to a wooden deck and barbecue zone. This outdoor extension transforms the limited footprint into a generous domestic experience.




Seamless Indoor-Outdoor Transitions Anchored by the Courtyard
A key architectural gesture was to place the barbecue station beside the kitchen counter, divided only by a disappearing sliding door. This clever layout eliminates redundancy and visually expands the interior toward the courtyard. The result is a light-filled, breezy atmosphere that enhances functionality while preserving the intimacy of indoor cooking and socializing. The sliding partition, when opened, merges both spaces into a festive family setting—perfect for entertaining.




Thoughtful Integration of Storage and Utility
Storage and utility are seamlessly incorporated within the front setback. The covered front overhang includes dedicated space for bicycles, gas tanks, and miscellaneous equipment. To maintain visual harmony and airflow, perforated cobogó bricks were reintroduced on the façade, allowing ventilation while reinforcing the home’s material palette and visual identity.



Backyard as an Extension of Daily Life
The rear courtyard is more than an ornamental green space—it is an extension of daily domestic life. A covered laundry area sits adjacent to an open clothes-drying zone and a grassy section, ideal for families with pets. This back section of the home supports a rhythm of indoor-outdoor living that feels natural and flexible in a tropical climate.



Industrial Aesthetic with Warm Color Play
The design ethos blends industrial-style architecture with domestic warmth. The house features exposed concrete blocks, solid ceramic brickwork, and a trellised slab ceiling that remains mostly uncovered. These raw elements are softened by the strategic use of color: a blue mosaic kitchen floor, blue block-painted walls, and terracotta accents in the master suite. This curated palette delivers vibrancy and personal expression, balancing modern minimalism with Brazilian warmth.



Passive Cooling and Cross-Ventilation Strategy
Environmental performance is a key concern throughout the project. All windows and doors are crafted in black aluminum, featuring pivoting upper transoms that optimize cross-ventilation. The slab roof is slightly pitched and fully waterproofed, with drainage directed to concealed gutters, improving both performance and aesthetics. These interventions reduce energy dependence while enhancing indoor comfort.



Vertical Cut-Out Brings Light and Volume
To amplify the spatial perception of the house, a 3.60 x 3.60-meter section of the slab was removed in front of the winter garden, creating a double-height space. This void is crowned with triangular clerestory windows and finished with ceramic tiles and wooden lining, filling the living zone with natural light and upward visual expansion.


Living Small Without Compromise
House Boêmia demonstrates that compact house design with courtyard elements can be both stylish and emotionally generous. Through intelligent planning, expressive material use, and a sensitivity to scale and ventilation, the design creates a functional and beautiful home for modern Brazilian families. It’s a poetic example of architecture that responds not just to constraints, but to the potential of a more intentional, connected way of living.


All Photographs are works of Janaína Santoandréa
Popular Articles
Popular articles from the community
An Miên Lumière Cafe by xưởng xép, Ho Chi Minh City, Vietnam
An industrial-inspired café where layered steel and warm light create a dynamic, immersive environment shaped by reflection, depth, and perception.
Louis Malle Cinema: A Limestone Cultural Landmark Revitalizing Community Life in Prayssac
Limestone cinema extension with public forecourt, blending heritage and modern design to create flexible cultural spaces and strengthen community interaction.
Inverted Architecture Installation by Studio Link-Arc: Exploring the Intersection of Architecture and Living Organisms
Inverted Architecture Installation by Studio Link-Arc blends mycelium, sustainability, inverted design, ecological cycles, and urban adaptive architecture in Shenzhen.
Treehouse Apartment: A Warm Timber Interior Blending Craft, Play, and Contemporary Living
Warm timber apartment with integrated treehouse, combining natural materials, craftsmanship, and playful design to create a flexible, family-oriented living environment.
Similar Reads
You might also enjoy these articles
Bamboo Housing Challenge 2026: Design Affordable, Sustainable Homes Using Bamboo
An international design competition by Bamboo U and IBUKU inviting architects and designers to reimagine affordable housing using bamboo — with the winning design built full-scale in Bali.
Computational Design & Education: Beegraphy Design Awards Introduces 7th Category (Featuring Jiyun's Innovative Approach)
Dive into Beegraphy’s 7th Design Awards category, where computational design meets education to create immersive, interactive learning tools, inspired by Jiyun’s work.
From Parametric Lighting to Urban Furniture: Join the 2nd Workshop in Beegraphy’s Computational Design Series
Dive into Cutting-Edge Design Techniques and Practical Applications with Industry Experts
Introducing Sphere by UNI: Pioneering a New Era in AEC Industry
Unlocking Global Potential with BIM and Agile Management
Explore Architecture Competitions
Discover active competitions in this discipline
The International Standard for Design Portfolios
The Global Benchmark for Architecture Dissertation Awards
The Global Benchmark for Graduation Excellence
Challenge to reimagine the Iron Throne
Comments (0)
Please login or sign up to add comments
No comments yet. Be the first to comment!