House in Santa Emilia: A Reflection of Modern Suburban Architecture by Anibal Bizzotto and Bruno Sirabo
The House in Santa Emilia combines traditional construction with modern design in a suburban setting, reflecting contemporary architectural trends.
Modern suburban architecture encompasses designs that merge contemporary aesthetics with the practical needs of suburban living. The House in Santa Emilia in Villa Rosa, Argentina, designed by Anibal Bizzotto and Bruno Sirabo, exemplifies this by blending traditional construction methods with modern design principles to create a home that suits the middle-class lifestyle in gated communities.




Architectural Design and Concept
Embracing Traditional Construction with a Contemporary Twist
The House in Santa Emilia adheres to conventional construction techniques while incorporating a contemporary design that makes it stand out in a gated community. The architects aimed to create a home that fits seamlessly within its environment yet provides a unique aesthetic through its thoughtful layout and structural elements.





Strategic Use of Space and Light
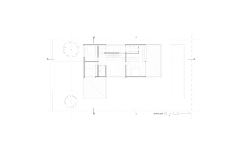
The home is designed to maximize the use of a compact lot, with a layout that enhances the flow of natural light and facilitates family interaction. The ground floor features a spacious living-dining area extending directly into the garden, highlighted by large windows that span nine meters in length, enhancing the connection between indoor and outdoor spaces.





Key Features of the Design
Functional and Flexible Living Areas
The design includes a semi-covered entrance that leads to a versatile space which can function as a consulting room or guest bedroom, providing flexibility depending on the homeowners' needs. The main living areas on the ground floor are designed for openness and fluidity, promoting family activities and gatherings.




Private and Communal Spaces
On the first floor, the layout separates the parents' area from the children's bedrooms, with an intimate living room connecting these spaces. This arrangement allows for both private moments and shared family time, demonstrating the architects' focus on catering to the dynamics of family life.


Material Selection and Construction Techniques
Sustainable and Local Materials
The construction utilizes locally sourced materials like wooden formwork for concrete and hollow brick masonry, which ensures thermal comfort and suits the suburban environment. The use of simple, durable materials reflects a commitment to sustainability and practicality.



Integration with the Natural Environment
The architects have chosen materials and colors that harmonize with the natural surroundings. The external white cement finish and plastered interiors reflect light and contribute to the home’s thermal efficiency, while metal pillars on the ground floor add a touch of modernity and lightness to the structure.




Redefining Suburban Living
The House in Santa Emilia by Anibal Bizzotto and Bruno Sirabo stands as a prime example of modern suburban architecture. It reflects how contemporary design can be harmoniously integrated into a suburban setting, providing functional, beautiful living spaces that meet the needs of modern families. This project serves as an inspiration for future suburban architectural endeavors, emphasizing sustainability, community, and quality of life.




All photographs are work of Albano García
Popular Articles
Popular articles from the community
Architects Group RAUM Stacks Offset White Volumes into a Compact Office Tower in Busan
A 524-square-meter building on a tight corner lot in Haeundae plays with sunlight rights and shifting floor plates to create generous terraces.
1-1 Architects Builds a Nagoya House and Office from Decades of Stockpiled Timber
A 69-square-meter tower in dense residential Nagoya transforms surplus lumber into a home and workplace for a construction company.
Paco Oria Estudio Rebuilds a 1949 Valencian Town House Around Timber, Terracotta, and a New Interior Patio
In Godella, Spain, a semi-detached house from the postwar era is stripped to its party walls and rebuilt with wood and ceramics.
20 Most Popular Furniture Design Projects of 2025
Modular street systems, parametric benches, and insect hotels: the furniture design projects that captivated architects on uni.xyz in 2025.
Similar Reads
You might also enjoy these articles
Olio Towers: A Mid-Rise for Performers That Fuses Housing, Rehearsal, and Stage
Located blocks from Houston's Theater District, this modular tower stacks living units around a central performance atrium.
Oasis: Modular Green Housing Carved into Dhaka's Urban Fabric
A shortlisted Plugin Housing entry reclaims unauthorized settlements in Dhaka with stepped concrete volumes, green roofs, and ventilation-driven design.
Black Hole: A Floating Megastructure for the Post-Physical Era
Emiliano Mazzarotto envisions a spherical, self-scaling arena where e-sports, digital hotels, and holographic stadiums replace traditional public space.
Compact & Sustainable Living in Piraeus: A Four-Level Family Home Built Around Light and Air
A narrow townhouse in one of Greece's densest port cities uses a central atrium and passive strategies to house three generations under one roof.
Explore Architecture Competitions
Discover active competitions in this discipline
The International Standard for Design Portfolios
The Global Benchmark for Architecture Dissertation Awards
The Global Benchmark for Graduation Excellence
Challenge to reimagine the Iron Throne
Comments (0)
Please login or sign up to add comments
No comments yet. Be the first to comment!