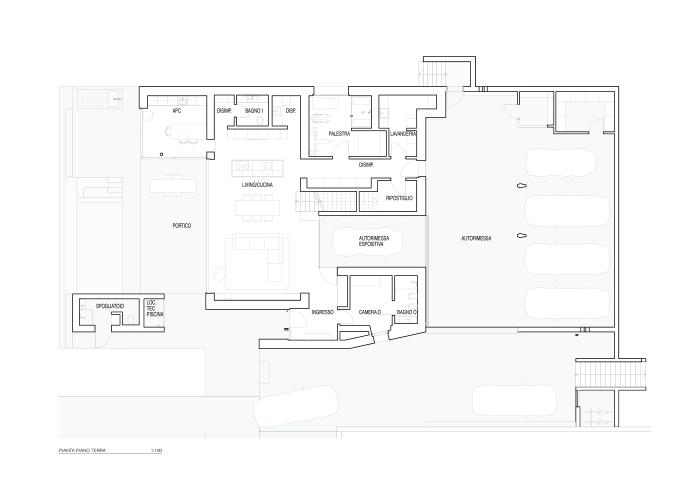
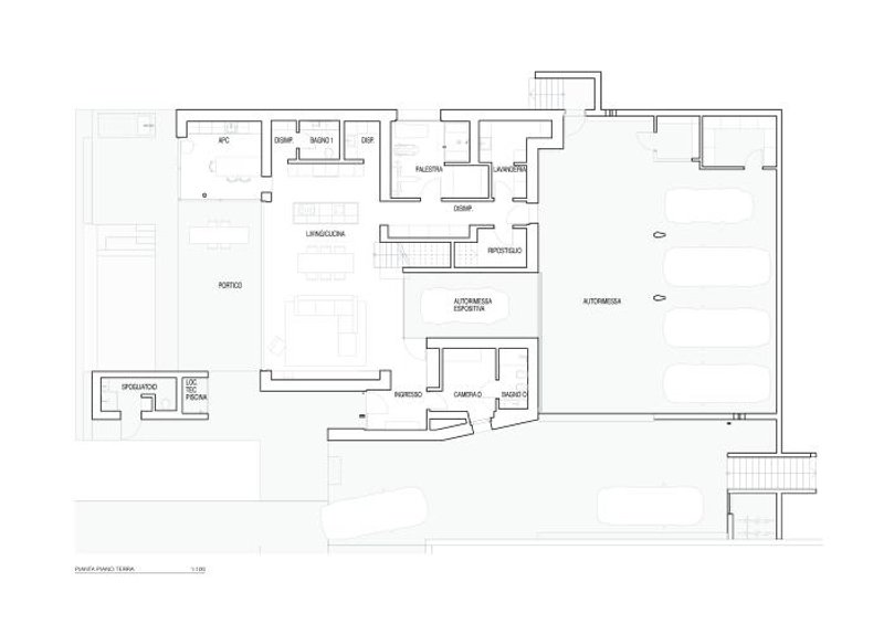
House MD: A Masterpiece by Didonè Comacchio Architects
Is House MD by Didonè Comacchio Architects the Epitome of Architectural Brilliance?






















Popular Articles
Popular articles from the community
Free Architecture Competitions You Can Enter Right Now
No entry fees, real prizes. Here are the best free architecture competitions open for submissions in 2026.
Magic Box Office Barcelona Innovative Sustainable Workplace Design
Innovative sustainable office design featuring triangular form, ceramic façade, flexible interiors, natural light optimization, and creative workspace for modern work culture.
Marvila Apartment Renovation in Lisbon: A Bright Minimalist Attic Transformation by KEMA Studio
Bright attic transformed into minimalist Lisbon apartment with skylights, sustainable materials, open plan layout, and industrial-inspired interior design elements.
Similar Reads
You might also enjoy these articles
Rede Arquitetos Builds an Open-Air School in Fortaleza That Doubles as a Neighborhood Living Room
Educar II SESC-CE folds sports, dance, and community gathering into a courtyard campus wrapped in mesh and tropical color.
NZ10 Apartment by auba studio: Adaptive Reuse in Palma de Mallorca
Adaptive reuse apartment transforms bakery into light-filled home with patios, privacy layers, and wood interiors enhancing urban living experience.
TGK Nirasaki Plant: A Smart Factory Blending Technology, Landscape, and Wellness
Smart factory in Japan blending IoT manufacturing, scenic trail design, natural ventilation, and landscape integration to enhance user experience and sustainability.
House in Macieira by Nelson Resende Arquitecto: A Sensitive Transformation Rooted in Context and Materiality
Adaptive reuse house blending wood, glass, and landscape, transforming traditional Portuguese architecture into a warm, open, contemporary living environment.
Explore Architecture Competitions
Discover active competitions in this discipline
The International Standard for Design Portfolios
The Global Benchmark for Architecture Dissertation Awards
The Global Benchmark for Graduation Excellence
Challenge to reimagine the Iron Throne
Comments (0)
Please login or sign up to add comments
No comments yet. Be the first to comment!