House of the 7 Trees by Hersen Mendes Arquitetura: A Landmark in Biophilic Residential Architecture
This article explores how the House of the 7 Trees redefines biophilic residential architecture by integrating nature into every design element.
Integrating Architecture with the Brazilian Cerrado Landscape
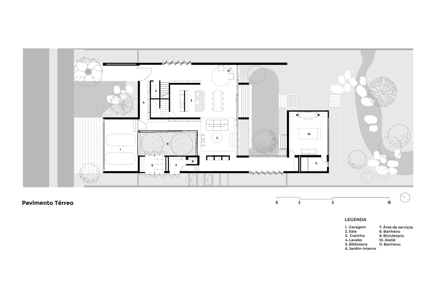
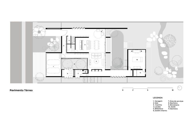
Nestled within the rich biodiversity of the Brazilian cerrado, the House of the 7 Trees by Hersen Mendes Arquitetura exemplifies biophilic residential architecture at its most poetic. Completed in 2024, this 512 m² residence reflects a deep respect for nature, integrating seven pre-existing trees into its architectural concept. The project embraces the surrounding landscape and allows nature to guide the home's spatial experience, offering a seamless transition between indoor and outdoor environments.



The project was born from a simple yet profound request from the clients: “We want to enter the house and feel like we are stepping outside.” This vision drove the entire design process, prioritizing the preservation of the site’s native vegetation and natural topography.



Design Rooted in Nature and Topography
Carefully positioned on the flattest portion of the site, the house extends across changing elevations, with some sections elevated above the ground to minimize environmental disruption. This design allows water to flow naturally through the land and preserves the soil's permeability, which is essential for maintaining the health of local fauna and flora. Pollination activity observed during construction serves as a testament to the home’s ecological harmony.


The name “House of the 7 Trees” pays tribute to the preserved trees that shaped the layout. The architecture moves and folds around them, blurring the boundaries between the natural and the built. In essence, the house does not impose itself on the land but adapts to it, elevating the principles of biophilic residential architecture.



A Tree-Supported Studio and Elevated Walkways
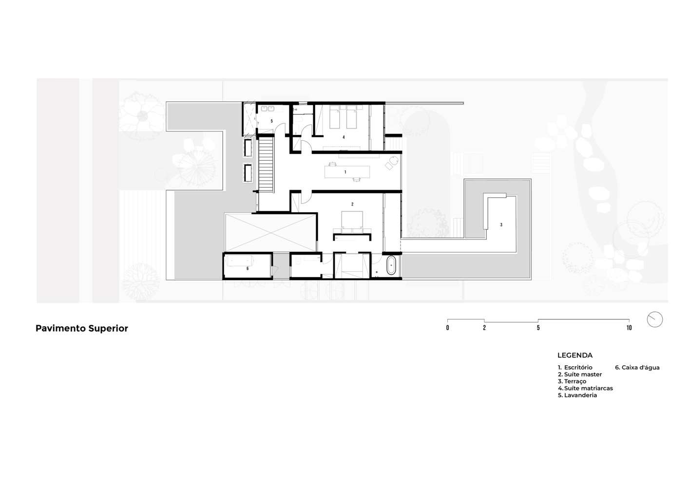
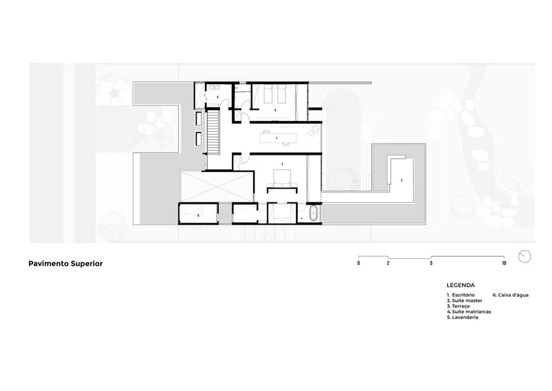
At the highest point of the plot, a dedicated studio space—designed for art and sewing—is dramatically suspended on two custom-shaped pillars inspired by trees. This studio connects to the main living area via a bold walkway shaded by yellow metallic brises, which protect the space from excessive sun exposure. These architectural elements extend the home's relationship with the landscape, making movement between spaces a sensory experience that reinforces contact with nature.



Local Materials and Sustainable Energy Solutions
Material choice reinforces the house’s sustainable ethos. Locally produced ecological bricks—crafted without burning—were chosen for their minimal environmental impact. Photovoltaic panels provide supplemental energy to the residence, reducing its carbon footprint and enhancing its long-term sustainability.


Every detail of the construction reflects a commitment to environmentally responsible building practices, merging biophilic and sustainable strategies to create a cohesive and enduring design.


Fluid Interiors and Organic Spatial Composition
Inside, the residence features open, flowing spaces that resist traditional room compartmentalization. Visual and spatial continuity defines the interiors, highlighted by furniture curated for its craftsmanship, artistic value, and connection to natural textures. Floors are clad in Bahia Beige marble, complemented by finishes in earthy, green, and neutral palettes that echo the surrounding cerrado vegetation.


Design elements such as a floating TV wall with an integrated cabinet and fireplace, headboards that do not touch the ceiling, and a partially suspended kitchen volume all contribute to a sense of lightness and spatial fluidity. These gestures enhance the home's dialogue with nature and invite calm, conscious living.

A Library Woven Through Everyday Life
Rather than confining the library to a single room, the design spreads bookshelves throughout the house. Crafted from corten steel—the same material used for the stairs and bathroom doors—these shelves weave reading opportunities into the daily experience, creating moments of reflection and quiet discovery in every corner.

The library becomes a living thread that connects spaces and adds an intellectual layer to the architectural experience, showing how biophilic design can also nourish the mind.
Lighting that Frames Atmosphere and Form
The lighting concept enhances the house’s architectural expression without overpowering it. In the dining room, sleek metallic strips direct warm light downward, while in the TV room, lighting accentuates the slab to create a soft, ambient glow. The approach is minimal and intentional, reinforcing the idea that architecture should reveal and celebrate its materials and structure.

A New Benchmark in Biophilic Residential Architecture
The House of the 7 Trees represents a refined and immersive example of biophilic residential architecture. It is a model for how homes can exist in harmony with their ecological context, not only preserving natural features but elevating them as integral design components. Through its use of natural materials, site-sensitive construction, and sensory-rich spatial experience, the project exemplifies a deeper architectural commitment to sustainability, well-being, and environmental consciousness.

All Photographs are works of Joana França