House on a Hill: A Beacon of Modern Architectural Homes
The article describes House on a Hill by Tham & Videgård Arkitekter, emphasizing its modern architectural design and integration with nature.
House on a Hill in Värmdö, Sweden, designed by Tham & Videgård Arkitekter, is a stunning example of modern architectural homes that blend seamlessly with their natural surroundings. Positioned atop a steep forested hill, this residence offers panoramic views of the Stockholm archipelago, setting a new standard in contemporary home design.


Architectural Vision and Concept
Integration with Nature
Perched like a lighthouse overlooking the sea, House on a Hill is designed to make a minimal visual impact while maximizing views. The house rises from the waterline to an open plateau, reflecting a deep connection with its natural environment. Its approach along a steep cliff reveals the home gradually, emphasizing its exceptional setting.

Structural Innovation
The building is a vertical concrete structure, firmly anchored to the exposed bedrock, symbolizing strength and permanence. The use of concrete not only enhances the house’s minimalist aesthetic but also anchors it physically and visually to its rugged landscape.

Design Features and Spatial Organization
Efficient Use of Space
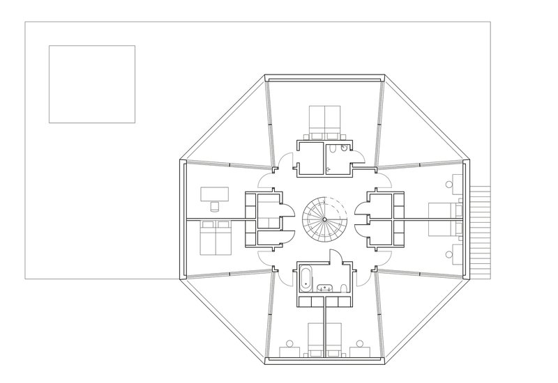
The interior is organized across three levels—souterrain for entrance and services, a mid-level for social spaces, and the top floor for private family rooms. This vertical division is integrated seamlessly within the home’s compact footprint, showcasing efficient use of space which is a hallmark of modern architectural homes.




Dynamic Façade Design
The façade is characterized by a 45° rotation between each floor, creating a dynamic, labyrinthine effect that enhances the internal flow while maintaining a strong connection to the external landscape. This innovative design allows for multiple terraces, providing shelter from the wind and optimal sun exposure throughout the day.


Materials and Sustainability
Emphasis on Durability and Aesthetics
The choice of materials such as Giallo D’Istria marble for cladding and Alucabond aluminum for detailing speaks to the modern home’s blend of durability and sleek aesthetics. These materials not only contribute to the house’s visual impact but also its functionality and sustainability.



Landscape and Environmental Integration
The landscaping is designed to enhance the ecological harmony of the site, with native plantings and sustainable water management practices that reflect the home’s commitment to environmental stewardship.



Redefining Modern Living
House on a Hill by Tham & Videgård Arkitekter is more than just a residence; it's a pioneering example of modern architectural homes that push the boundaries of design and sustainability. It stands as a testament to how contemporary architecture can enhance human experience while respecting and enhancing its natural setting.




All photographs are work of Åke E:son Lindman
Popular Articles
Popular articles from the community
An Miên Lumière Cafe by xưởng xép, Ho Chi Minh City, Vietnam
An industrial-inspired café where layered steel and warm light create a dynamic, immersive environment shaped by reflection, depth, and perception.
On the Brooks House by Monsoon Collective – A Contemporary Kerala Home Rooted in Tradition
Kerala home blending tradition and modernity with water-inspired design, brick architecture, courtyard planning, and sustainable rainwater harvesting strategies.
Treehouse Apartment: A Warm Timber Interior Blending Craft, Play, and Contemporary Living
Warm timber apartment with integrated treehouse, combining natural materials, craftsmanship, and playful design to create a flexible, family-oriented living environment.
Solar Steam: A Climate-Responsive Architecture That Redefines the Monument
A climate-responsive memorial architecture that transforms heat, decay, and time into a living system reflecting humanity’s ecological impact.
Similar Reads
You might also enjoy these articles
The Ken Roberts Memorial Delineation Competition (Krob)
As the most senior architectural drawing competition currently in operation anywhere in the world, it draws hundreds of entries each year, awarding the very best submissions in a series of medium-based categories.
Waterfront Redevelopment and Urban Revitalization in Mumbai: Forging a New Dawn for Darukhana
A transformative waterfront redevelopment project reimagining Darukhana’s shipbreaking heritage into an inclusive urban future.
OUT-OF-MAP: A Call for Postcards on Feminist Narratives of Public Space
Rhizoma Design and Research Lab invites artists, designers, architects, researchers, and students to reflect on how feminist perspectives can reshape public space. Selected works will be exhibited in Barcelona, October 2026. Submissions open until 15 April 2026.
Documentation Work on Buddhist Wooden Temple
Architectural syncretism and cultural hybridity: A comparative study of the Buddhist temples in Chattogram Hill tracks
Explore Architecture Competitions
Discover active competitions in this discipline
The International Standard for Design Portfolios
The Global Benchmark for Architecture Dissertation Awards
The Global Benchmark for Graduation Excellence
Challenge to reimagine the Iron Throne
Comments (0)
Please login or sign up to add comments
No comments yet. Be the first to comment!