House with a Square Window Italy: Contemporary Residential Design by Set Architects
A contemporary countryside home in Fondi, Italy, the House with a Square Window redefines rural architecture through minimalism and modern design.
Located in the scenic countryside of Fondi, Italy, the House with a Square Window by Set Architects is a contemporary reinterpretation of a rural dwelling. The 200 m² residence transforms an incomplete structure—where only the framework and roof had been built—into a bold, dynamic home. The design emphasizes architectural precision, material authenticity, and spatial fluidity, creating a residence that blends minimalism with character.



Design Concept and Strategy
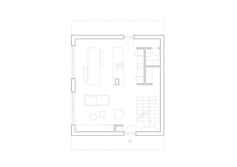
The project revolves around the strategic insertion of carefully chosen architectural elements into the existing building shell. Set Architects aimed to create a strong dialogue between the rigid original framework and newly introduced design components. At the core of this concept is the creation of open, fluid spaces. The design minimizes enclosed rooms to promote an expansive sense of continuity, allowing natural light to flow freely throughout the home.



The staircase, conceived as a sculptural centerpiece, defines the spatial hierarchy of the interior. Partition walls that once segmented the living areas were removed, replaced by a lightweight structure with a slender stainless-steel handrail. This enhances the openness and ensures that the staircase stands out as both a functional and aesthetic feature.



Materiality and Interior Atmosphere
Material selection plays a central role in shaping the tactile and visual experience of the House with a Square Window in Italy. A continuous concrete floor anchors the interior, offering a raw yet elegant base. Natural oak wood finishes bring warmth and balance, while light-colored walls draw inspiration from the local material palette. This combination creates a harmonious and timeless environment that celebrates texture and craftsmanship.



The interior is designed with subtle contrasts. The smooth concrete is softened by the warmth of wood and the neutral tones of plaster, achieving a modern yet inviting atmosphere. Large openings, including the signature square window, enhance the sense of openness, framing outdoor views like living artworks.



Façade and Exterior Design
The exterior of the residence is defined by minimalism and precision. A large square window dominates the main elevation, serving as both a focal point and a source of natural light. Two sliding glazed doors complement this feature, offering direct connections between the indoors and the surrounding landscape.



The rest of the façade is intentionally restrained, with more discreet openings on the sides for privacy and controlled views. Rendered in white plaster with subtle texture variations, the façade adopts a neutral and abstract character that emphasizes the geometric clarity of the overall volume.



Reinterpretation of a Countryside Home
The House with a Square Window Italy represents more than a renovation—it is a critical reinterpretation of a rural dwelling. By transforming an incomplete structure and embedding modern architectural sensibilities, Set Architects have created a home that resonates with contemporary living while respecting its context. The design balances abstraction and warmth, openness and intimacy, resulting in a residence that feels both innovative and grounded in tradition.



Through its bold yet refined architectural approach, the House with a Square Window by Set Architects stands as a model for modern countryside homes in Italy. Its seamless integration of materials, emphasis on spatial fluidity, and striking façade make it a noteworthy example of how architecture can breathe new life into incomplete or traditional structures. This project redefines what it means to create a home that is both modern and deeply connected to its environment.



All the photographs are works of Willem Pab
Popular Articles
Popular articles from the community
Marvila Apartment Renovation in Lisbon: A Bright Minimalist Attic Transformation by KEMA Studio
Bright attic transformed into minimalist Lisbon apartment with skylights, sustainable materials, open plan layout, and industrial-inspired interior design elements.
TGK Nirasaki Plant: A Smart Factory Blending Technology, Landscape, and Wellness
Smart factory in Japan blending IoT manufacturing, scenic trail design, natural ventilation, and landscape integration to enhance user experience and sustainability.
Rede Arquitetos Builds an Open-Air School in Fortaleza That Doubles as a Neighborhood Living Room
Educar II SESC-CE folds sports, dance, and community gathering into a courtyard campus wrapped in mesh and tropical color.
Alton Cliff House: A Harmonious Retreat by f2a Architecture in Lake Country, Canada
Alton Cliff House blends corten steel, prefabrication, and sustainable design, creating a luxurious, energy-efficient retreat perched on Canadian cliffs.
Similar Reads
You might also enjoy these articles
Bamboo Housing Challenge 2026: Design Affordable, Sustainable Homes Using Bamboo
An international design competition by Bamboo U and IBUKU inviting architects and designers to reimagine affordable housing using bamboo — with the winning design built full-scale in Bali.
Computational Design & Education: Beegraphy Design Awards Introduces 7th Category (Featuring Jiyun's Innovative Approach)
Dive into Beegraphy’s 7th Design Awards category, where computational design meets education to create immersive, interactive learning tools, inspired by Jiyun’s work.
From Parametric Lighting to Urban Furniture: Join the 2nd Workshop in Beegraphy’s Computational Design Series
Dive into Cutting-Edge Design Techniques and Practical Applications with Industry Experts
Explore Architecture Competitions
Discover active competitions in this discipline
The International Standard for Design Portfolios
The Global Benchmark for Architecture Dissertation Awards
The Global Benchmark for Graduation Excellence
Challenge to reimagine the Iron Throne
Comments (0)
Please login or sign up to add comments
No comments yet. Be the first to comment!