House Y27 by Estudio Estudio: A Masterful Restoration in Mexico City
House Y27 blends historic restoration with modern design, featuring sustainable elements, natural light, and timeless materials in Mexico City.
Nestled in the historic Hipódromo Condesa neighborhood of Mexico City, House Y27 is a stunning renovation that seamlessly blends heritage architecture with modern design. Originally built in the 1930s, this residence underwent a meticulous restoration and extension by Estudio Estudio, led by Inés Benítez and Nuria Benítez, to preserve its original character while integrating contemporary elements.


Restoring Architectural Identity
Despite years of neglect, the renovation sought to unveil the hidden architectural treasures of the home, peeling back layers of previous modifications to reveal the essence of its Art Deco origins. Rather than overpowering the structure with excessive ornamentation, the design focused on subtle interventions, maintaining its historical integrity while enhancing functionality.
The interiors showcase a sophisticated combination of natural materials such as wood and stucco, with minimalist details that respect the building's heritage. This approach creates a timeless aesthetic, where tradition and innovation coexist harmoniously.


Thoughtful Spatial Transformation
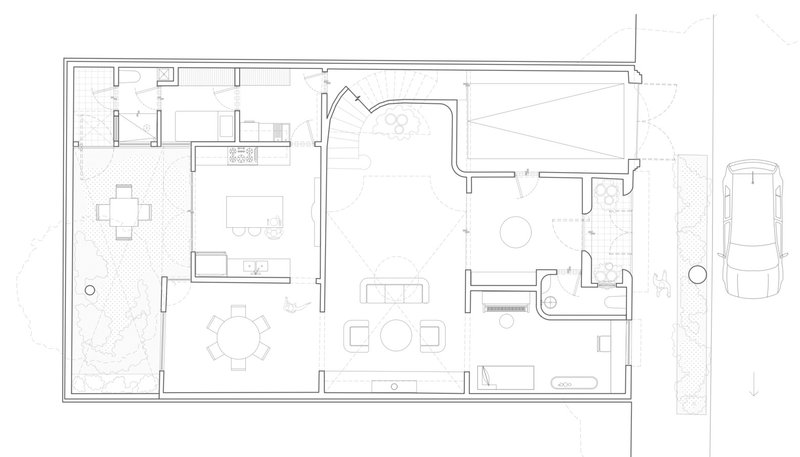
On the ground floor, a cohesive layout enhances the flow of movement between spaces. The design integrates a garage, an elegant lobby with a half-bathroom, and a central living area. Inspired by an original kitchen door, the designers incorporated an expanded arch motif, reinforcing a sense of continuity and elegance.
Natural light plays a crucial role in shaping the ambiance, with strategic skylights and a reworked rear facade that allow for dynamic light and shadow effects throughout the day. Collaborating with lighting designer Luca Salas, the studio introduced custom lighting solutions that enhance both functionality and aesthetics.
The kitchen pays homage to the home's past with concrete tiles, while wooden parquet flooring adds warmth and sophistication. Adjoining the kitchen, a laundry and service area maintains the balance between practicality and aesthetics.


Upper Levels: Tranquility and Contemporary Comfort
The second floor houses three spacious bedrooms, each with an ensuite bathroom and custom-built wooden closets. A family room provides a relaxed gathering space, while a staircase leads to the rooftop terrace, a serene retreat that connects the home with the surrounding environment.
On the third level, a 70m² studio with a private bathroom offers an ideal workspace or guest suite. Designed with a focus on openness and natural connection, the studio extends onto a tranquil rooftop terrace featuring an onsen-style soaking tub. The terrace is shaded by an American sweet potato tree, with modular terracotta flooring supporting the surrounding greenery.

Sustainable Living & Environmental Consciousness
Beyond aesthetics, House Y27 integrates sustainable design strategies that contribute to its energy efficiency and eco-friendly functionality. The rooftop terrace doubles as a rainwater collection system, directing water to a filtration system located beneath the backyard. The residence also employs passive cooling techniques, including cross-ventilation and large window openings, reducing reliance on mechanical cooling.
This thoughtful restoration is a testament to Estudio’s commitment to sustainable architecture, blending historical preservation with contemporary innovation. By embracing timeless materials, natural light, and eco-conscious techniques, House Y27 redefines modern urban living while honoring its rich past.

Popular Articles
Popular articles from the community
The Ken Roberts Memorial Delineation Competition (Krob)
As the most senior architectural drawing competition currently in operation anywhere in the world, it draws hundreds of entries each year, awarding the very best submissions in a series of medium-based categories.
Solar Steam: A Climate-Responsive Architecture That Redefines the Monument
A climate-responsive memorial architecture that transforms heat, decay, and time into a living system reflecting humanity’s ecological impact.
Alton Cliff House: A Harmonious Retreat by f2a Architecture in Lake Country, Canada
Alton Cliff House blends corten steel, prefabrication, and sustainable design, creating a luxurious, energy-efficient retreat perched on Canadian cliffs.
Atelier Macri Concept Store Interior Design by CASE-REAL
Atelier Macri store features a "ko" counter, walnut wood details, cork displays, blending retail, gallery, and seamless customer experiences.
Similar Reads
You might also enjoy these articles
The Ken Roberts Memorial Delineation Competition (Krob)
As the most senior architectural drawing competition currently in operation anywhere in the world, it draws hundreds of entries each year, awarding the very best submissions in a series of medium-based categories.
Waterfront Redevelopment and Urban Revitalization in Mumbai: Forging a New Dawn for Darukhana
A transformative waterfront redevelopment project reimagining Darukhana’s shipbreaking heritage into an inclusive urban future.
OUT-OF-MAP: A Call for Postcards on Feminist Narratives of Public Space
Rhizoma Design and Research Lab invites artists, designers, architects, researchers, and students to reflect on how feminist perspectives can reshape public space. Selected works will be exhibited in Barcelona, October 2026. Submissions open until 15 April 2026.
Documentation Work on Buddhist Wooden Temple
Architectural syncretism and cultural hybridity: A comparative study of the Buddhist temples in Chattogram Hill tracks
Explore Architecture Competitions
Discover active competitions in this discipline
The International Standard for Design Portfolios
The Global Benchmark for Architecture Dissertation Awards
The Global Benchmark for Graduation Excellence
Challenge to reimagine the Iron Throne
Comments (0)
Please login or sign up to add comments
No comments yet. Be the first to comment!