Housing Črnuški Bajer: A Model of Sustainable Residential Architecture in Slovenia by Bevk Perović Arhitekti and Arhitekti Počivašek Petranovič
Housing Črnuški Bajer redefines sustainable residential architecture in Slovenia through nature-inspired design, passive strategies, and community-centric urban density.
A Green Urban Vision for Ljubljana’s Periphery
In the suburban neighborhood of Črnuče on the northern edge of Ljubljana, Housing Črnuški Bajer emerges as a compelling example of sustainable residential architecture in Slovenia. Designed by Bevk Perović Arhitekti and Arhitekti Počivašek Petranovič, the 2024 development transforms a former brick factory site into a serene, nature-integrated living environment.


Surrounded by forest to the north and a small pond at its southern edge, the six-block housing ensemble blends architectural discipline with environmental sensitivity. The project reimagines urban density through a lush and human-centric lens, offering 161 diverse housing units that prioritize openness, privacy, and ecological integration.


Revitalizing an Industrial Site with Urban Ecology
The project is situated where a brickworks and its clay pit once stood, making adaptive reuse and ecological recovery a crucial part of the architectural narrative. Urban planning set the massing: two parallel rows of three residential blocks each, aligned along a southwest–northeast axis. Subtle shifts in the orientation of each block soften the perceived density, allowing natural light, air, and vegetation to weave between structures.


The goal was to form a neighborhood immersed in green—a vision echoed in the façade colors of the buildings, which transition from lighter greens to darker forest tones as they approach the dense woodland to the north. This chromatic gradient expands the perceived scale of the development and deepens its connection to the natural surroundings.


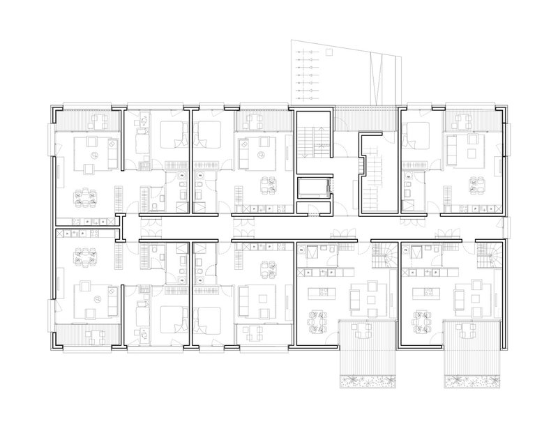
A Thoughtful Housing Mix for Diverse Lifestyles
Despite the large scale, the floorplans prioritize livability and spatial identity. Most units are arranged along a central corridor, yet the layout cleverly incorporates variety through:
- Ground-floor duplexes designed like small private homes with gardens
- Upper-floor terrace apartments with oversized patios
- Senior-friendly units at the pond-facing lower level with easy access to greenery
These subtle programmatic shifts break the monotony often found in dense housing developments and allow for multi-generational occupancy and long-term adaptability.



Façade Language and Natural Integration
The buildings’ façades are finished in a rough-textured coating that reinforces the monolithic feel, unified by consistent color tones and minimalist joinery. Custom-designed eaves stretch longer than typical, emphasizing horizontal lines and adding depth to the façade while protecting interiors from solar gain.



Corner windows strategically open up the massing, providing panoramic views and generous light intake, especially in the living areas. Duplex and terraced units distinguish themselves with warm timber cladding and expansive glazing, creating a tactile and visual contrast that hints at individual character within the overall uniformity.




Landscape as Urban Infrastructure
Landscape design plays an integral role in this model of sustainable residential architecture in Slovenia. Rather than decorative green space, it functions as connective tissue—linking buildings, softening hard edges, and encouraging pedestrian flow. Undulating walkways, irregular paving, and custom seating emphasize a rhythmic, organic experience of the space.


The greenery wraps around and between buildings, buffering private units while maintaining a coherent neighborhood identity. Trees, shrubs, and groundcover are deployed to merge architecture with site topography, creating a semi-natural habitat for both humans and local biodiversity.


Sustainable Living through Design Logic
While not ostentatiously “green,” Housing Črnuški Bajer’s sustainability is embedded in its core principles. The design minimizes resource consumption by optimizing light, air, and thermal comfort through passive strategies. The reuse of an industrial site, the integration of natural materials, and the attention to environmental continuity make this project a benchmark for future urban housing in Slovenia and beyond.


A New Urban Prototype Rooted in Nature
Bevk Perović Arhitekti and Arhitekti Počivašek Petranovič deliver more than residential blocks—they have designed a living framework that respects its setting, its occupants, and its ecological responsibilities. Črnuški Bajer offers a new model of suburban living—neither sprawling nor congested, but delicately balanced between density and openness, between uniformity and variety, between architecture and nature.


All photographs are works of Urban Petranovič
Popular Articles
Popular articles from the community
The Ken Roberts Memorial Delineation Competition (Krob)
As the most senior architectural drawing competition currently in operation anywhere in the world, it draws hundreds of entries each year, awarding the very best submissions in a series of medium-based categories.
Alton Cliff House: A Harmonious Retreat by f2a Architecture in Lake Country, Canada
Alton Cliff House blends corten steel, prefabrication, and sustainable design, creating a luxurious, energy-efficient retreat perched on Canadian cliffs.
Atelier Macri Concept Store Interior Design by CASE-REAL
Atelier Macri store features a "ko" counter, walnut wood details, cork displays, blending retail, gallery, and seamless customer experiences.
Solar Steam: A Climate-Responsive Architecture That Redefines the Monument
A climate-responsive memorial architecture that transforms heat, decay, and time into a living system reflecting humanity’s ecological impact.
Similar Reads
You might also enjoy these articles
The Ken Roberts Memorial Delineation Competition (Krob)
As the most senior architectural drawing competition currently in operation anywhere in the world, it draws hundreds of entries each year, awarding the very best submissions in a series of medium-based categories.
Waterfront Redevelopment and Urban Revitalization in Mumbai: Forging a New Dawn for Darukhana
A transformative waterfront redevelopment project reimagining Darukhana’s shipbreaking heritage into an inclusive urban future.
OUT-OF-MAP: A Call for Postcards on Feminist Narratives of Public Space
Rhizoma Design and Research Lab invites artists, designers, architects, researchers, and students to reflect on how feminist perspectives can reshape public space. Selected works will be exhibited in Barcelona, October 2026. Submissions open until 15 April 2026.
Documentation Work on Buddhist Wooden Temple
Architectural syncretism and cultural hybridity: A comparative study of the Buddhist temples in Chattogram Hill tracks
Explore Architecture Competitions
Discover active competitions in this discipline
The International Standard for Design Portfolios
The Global Benchmark for Architecture Dissertation Awards
The Global Benchmark for Graduation Excellence
Challenge to reimagine the Iron Throne
Comments (0)
Please login or sign up to add comments
No comments yet. Be the first to comment!