I+D GPA Innovation Hub by Manu Pages Taller d’Arquitectura – Transforming an Industrial Warehouse into a Creative R&D Space
I+D GPA Innovation Hub in Barcelona transforms a plain industrial warehouse into a modular, flexible, and collaborative research-driven architectural workspace.
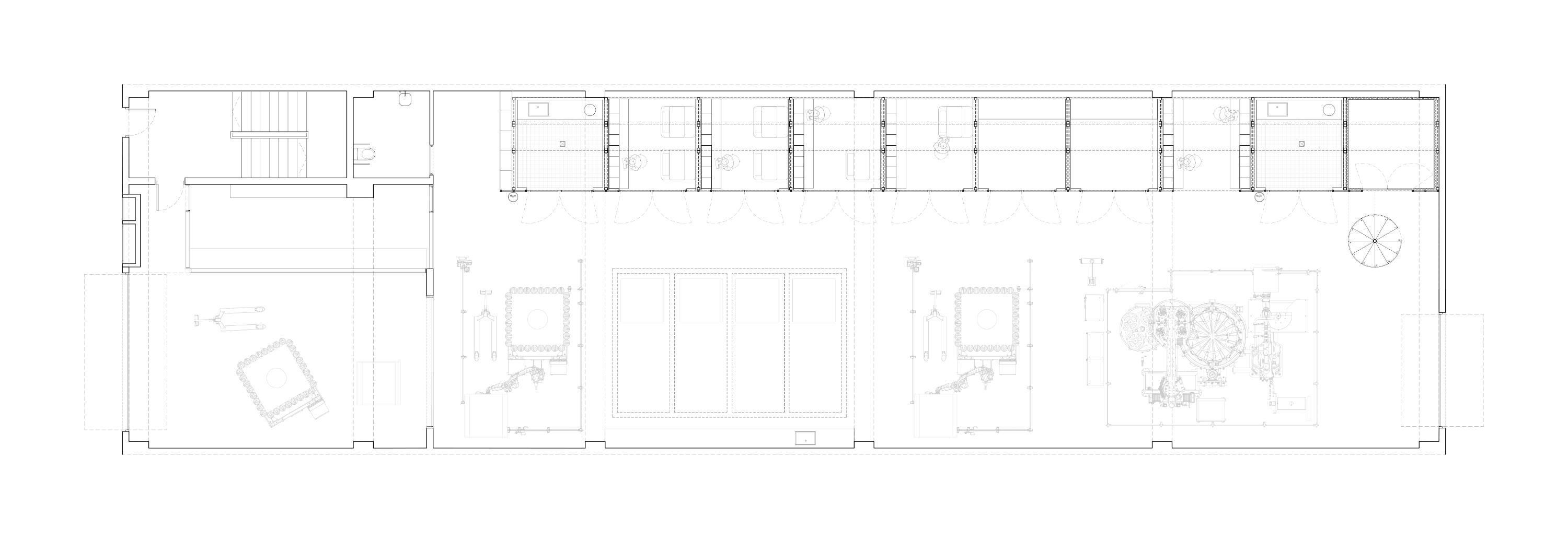
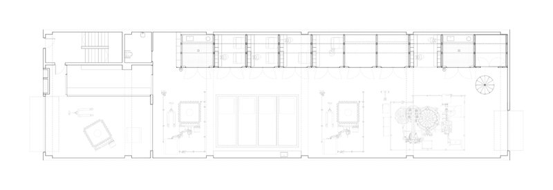
The I+D GPA Innovation Hub designed by Manu Pages Taller d’Arquitectura in Barcelona, Spain is a striking example of how industrial architecture can be redefined to foster creativity, research, and technological innovation. Completed in 2021, the 440 m² project transforms a generic industrial warehouse into a dynamic and multifunctional workplace for Gpainnova, a company specializing in multidisciplinary technological projects.

From Industrial Warehouse to Innovation Hub
The original structure, while offering a large volume of space, lacked architectural significance. The architects approached the challenge by embracing the industrial identity of the warehouse and reinterpreting it into a highly functional R&D environment. This intervention highlights how architecture can adapt industrial spaces into modern innovation hubs, responding to the evolving needs of technology-driven companies.


A Space for Multidisciplinary Research & Development
Gpainnova’s work spans across diverse technological fields, requiring an adaptable setting with multiple specialized areas. The new design integrates different scales, lighting conditions, wet and dry zones, air-conditioning systems, installations, and storage solutions. These elements ensure seamless workflow, allowing large-scale prototyping to coexist alongside precision assembly work.


Modular Design for Flexibility
A key feature of the Innovation Hub is the integration of a modular industrial storage system into the warehouse volume. This system was architecturally refined to create a partitioning structure at the plinth level, constructed from wood and steel. The design accommodates programmatic requirements while maintaining visual and functional continuity across spaces.
Each work bay is oriented toward the expansive open floor, where industrial prototypes are developed. This arrangement fosters collaboration and interaction, allowing different teams to work in close contact while maintaining efficiency.


Balancing Industry and Architecture
By combining industrial modularity with architectural precision, Manu Pages Taller d’Arquitectura successfully bridges the gap between raw functional design and refined workplace environments. The result is a space that celebrates the industrial DNA of the building while enabling cutting-edge technological innovation.

Conclusion
The I+D GPA Innovation Hub exemplifies how architecture can revitalize underused industrial buildings into spaces that support modern innovation ecosystems. It demonstrates the importance of flexibility, modularity, and environmental quality in creating workplaces for research and development.

All the photographs are works of José Hevia
Popular Articles
Popular articles from the community
Alton Cliff House: A Harmonious Retreat by f2a Architecture in Lake Country, Canada
Alton Cliff House blends corten steel, prefabrication, and sustainable design, creating a luxurious, energy-efficient retreat perched on Canadian cliffs.
Atelier Macri Concept Store Interior Design by CASE-REAL
Atelier Macri store features a "ko" counter, walnut wood details, cork displays, blending retail, gallery, and seamless customer experiences.
Solar Steam: A Climate-Responsive Architecture That Redefines the Monument
A climate-responsive memorial architecture that transforms heat, decay, and time into a living system reflecting humanity’s ecological impact.
The Ken Roberts Memorial Delineation Competition (Krob)
As the most senior architectural drawing competition currently in operation anywhere in the world, it draws hundreds of entries each year, awarding the very best submissions in a series of medium-based categories.
Similar Reads
You might also enjoy these articles
The Ken Roberts Memorial Delineation Competition (Krob)
As the most senior architectural drawing competition currently in operation anywhere in the world, it draws hundreds of entries each year, awarding the very best submissions in a series of medium-based categories.
Waterfront Redevelopment and Urban Revitalization in Mumbai: Forging a New Dawn for Darukhana
A transformative waterfront redevelopment project reimagining Darukhana’s shipbreaking heritage into an inclusive urban future.
OUT-OF-MAP: A Call for Postcards on Feminist Narratives of Public Space
Rhizoma Design and Research Lab invites artists, designers, architects, researchers, and students to reflect on how feminist perspectives can reshape public space. Selected works will be exhibited in Barcelona, October 2026. Submissions open until 15 April 2026.
Documentation Work on Buddhist Wooden Temple
Architectural syncretism and cultural hybridity: A comparative study of the Buddhist temples in Chattogram Hill tracks
Explore Architecture Competitions
Discover active competitions in this discipline
The International Standard for Design Portfolios
The Global Benchmark for Architecture Dissertation Awards
The Global Benchmark for Graduation Excellence
Challenge to reimagine the Iron Throne
Comments (0)
Please login or sign up to add comments
No comments yet. Be the first to comment!