Illuminate Kuwait's Social Hub: AlOsami Diwaniya Unveiled in Faiha
Explore AlOsami Diwaniya, Kuwait, a modern hospitality marvel fusing tradition and contemporary design by ILLUMINATE.
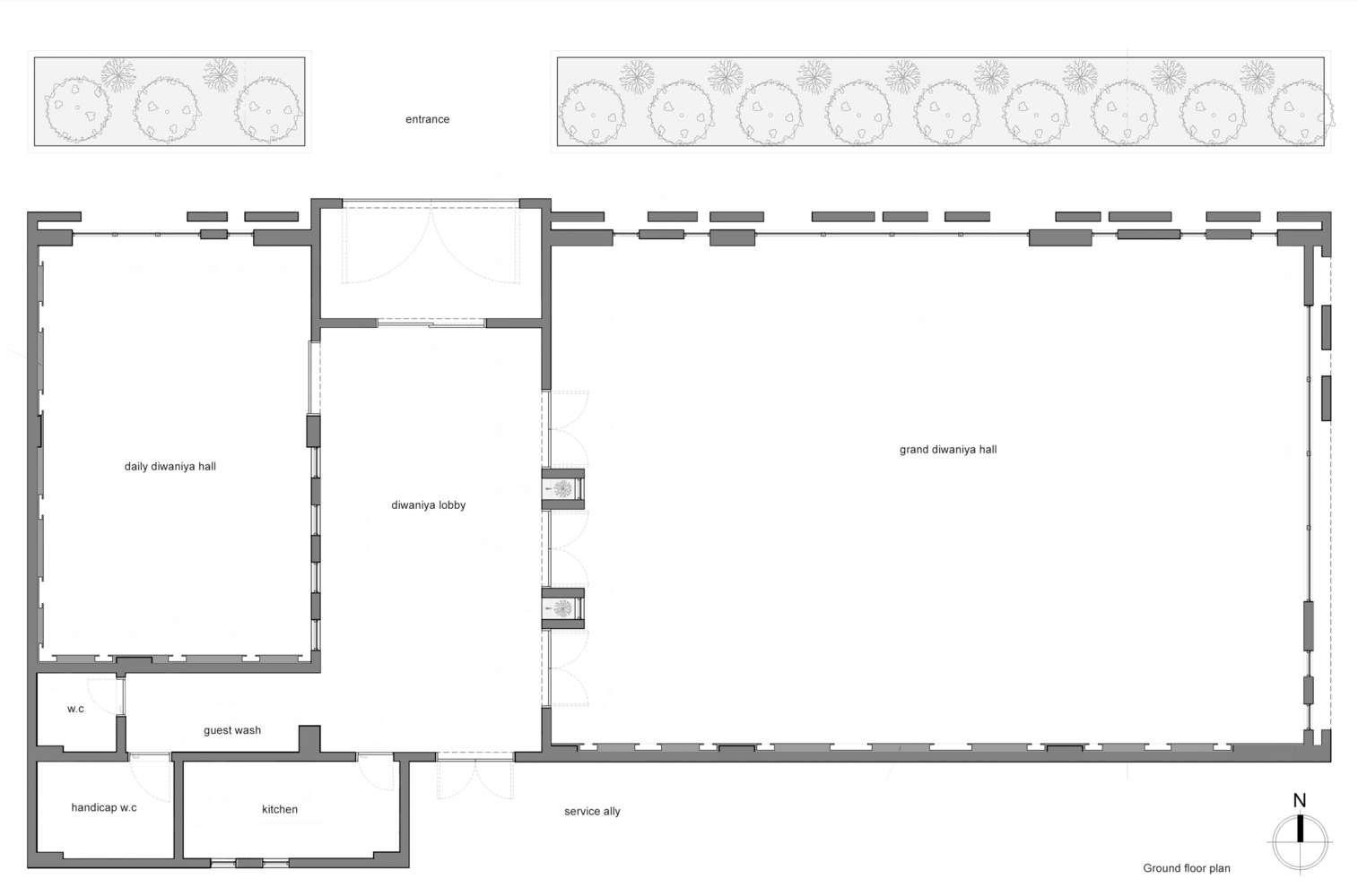
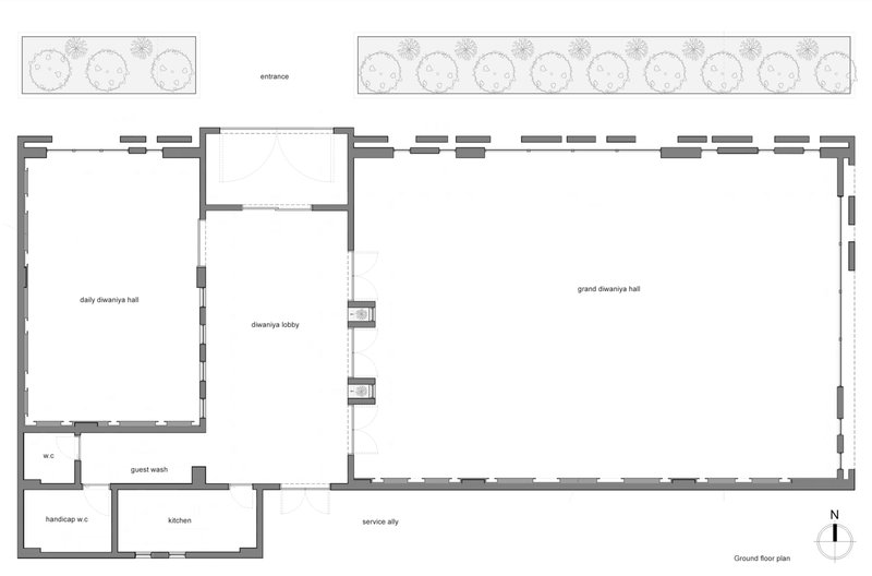
The AlOsami Diwaniya in Faiha, Kuwait, designed by ILLUMINATE design + build, redefines traditional hospitality architecture with its contemporary take on the iconic diwaniya. The structure showcases a fusion of modern technology and cultural aesthetics, with an abstracted palm tree pattern adorning its façade, paying homage to the surrounding Arabian palm grove. Inside, the design seamlessly integrates the exterior's limestone and oak wooden panels, creating a warm and sophisticated ambiance. The grand diwaniya hall, featuring modern chandeliers and backlights, serves as a versatile space for various family occasions.
Welcoming Tradition with a Modern Touch:
The diwaniya tradition, synonymous with Kuwaiti social gatherings, finds new life in AlOsami. Greeted by a contemporary wooden door, guests step into a reception hall leading to the daily diwaniya room. Ideal for casual socializing, it complements the grand diwaniya hall, a venue for weddings, funerals, and family events.





Inspiration from the Past:
Derived from the Arabian palm grove that once enveloped the site, AlOsami's design beautifully abstracts palm tree shapes into a repetitive pattern, blending tradition with contemporary aesthetics. The façade, a marriage of modern technology and cultural homage, features a concrete structure adorned with durable mocha cream limestone, resonating with the harsh desert landscape.






Seamless Interior Harmony:
Internally, AlOsami seamlessly translates its exterior design into a modern, warm, and vibrant ambiance. Limestone and oak wooden panels, mirroring the façade patterns, adorn the walls of the main diwaniya area. Cove lighting and backlights add a comfortable balance, while striking modern chandeliers serve as focal points in the grand reception hall.



Embark on a journey where tradition meets modernity at AlOsami Diwaniya—a luminous expression of Kuwaiti hospitality, thoughtfully designed by ILLUMINATE.
All Photographs are the work of Mohammed Ashkanani