Immerse Yourself in Tranquility at the Watery Oasis of the Watermoon Tea House by Behet Bondzio Lin Architekten
Can a Tea House on Water Create an Ethereal Experience? Discover the Enchanting Watermoon Tea House by Behet Bondzio Lin Architekten

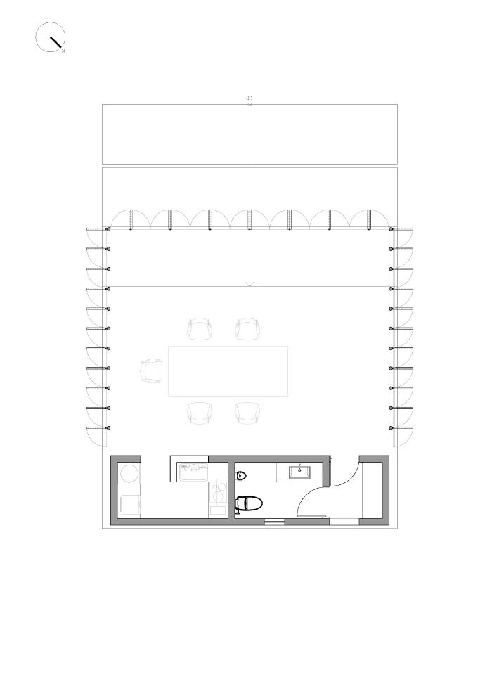
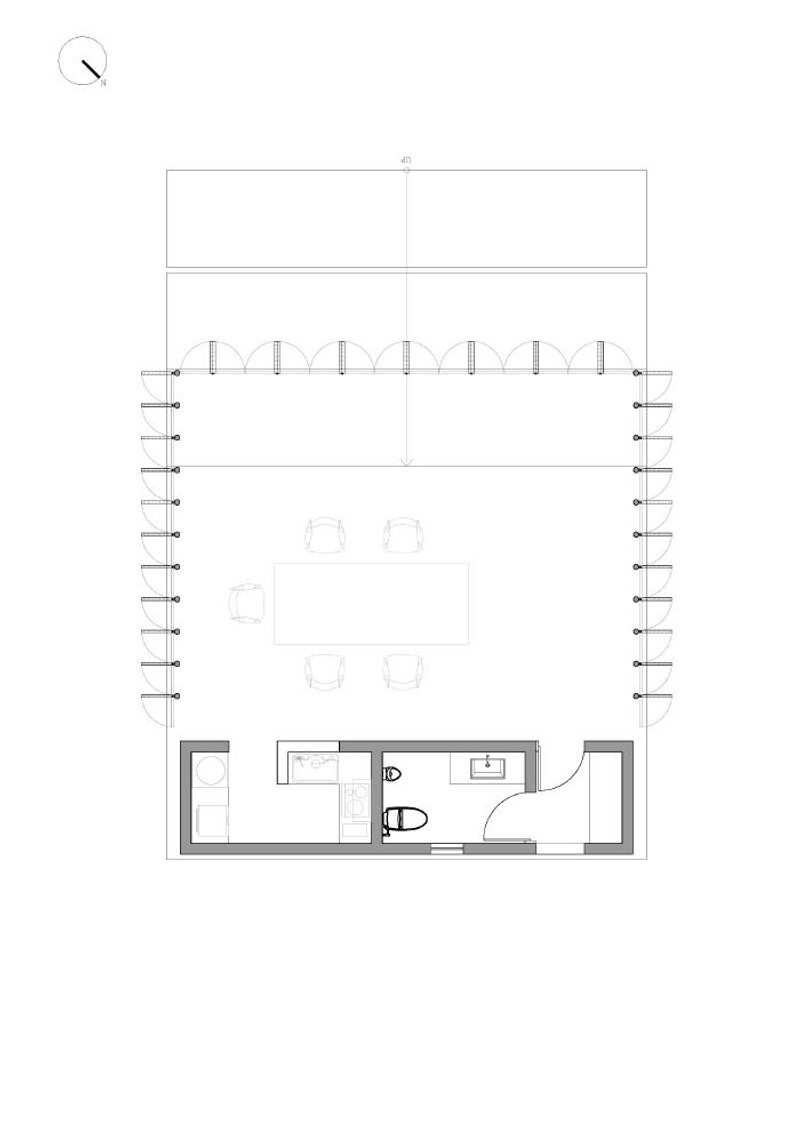
The client requested a tea pavilion on Waterman Mountain that did not necessitate air conditioning to ensure thermal comfort. To address the exposure to the sun from the south and strong winds from the northeast, the design incorporated two south-facing curved concrete plates to regulate the airflow and introduce a pleasant southern wind. The vertical dislocation between the two curved plates and the horizontal concrete plate that canopied the front platform enabled solar radiation to enter the space, warming the tea table's surface during the colder season.
The triangular-shaped Burmese Teak wood lattice on the north facade effectively blocks the strong, unpleasant winds coming from the northeast. The pivoting doors, also made of Burmese Teak wood, located around the perimeter of the plan enable better control of the light and direct airflow into the main lounge space. The pavilion stands as an island in the middle of an oval-shaped water pond, elevated 60cm over the water level on the east side and 30 cm on the west side. This level difference facilitates a natural water flow, improving the space's comfort and increasing the relative humidity in the air that flows into the space during the hot season.

























Architects: Behet Bondzio Lin Architekten
Area: 94 m²
Year: 2017
Photographs: YuChen Chao Photography
Manufacturers: Carl Hansen and Son, Catellani & Smith, Toto
Landscape Design: Behet Bondzio Lin Architekten
Lighting Design: LHLD Lighting Design
Popular Articles
Popular articles from the community
Inverted Architecture Installation by Studio Link-Arc: Exploring the Intersection of Architecture and Living Organisms
Inverted Architecture Installation by Studio Link-Arc blends mycelium, sustainability, inverted design, ecological cycles, and urban adaptive architecture in Shenzhen.
Louis Malle Cinema: A Limestone Cultural Landmark Revitalizing Community Life in Prayssac
Limestone cinema extension with public forecourt, blending heritage and modern design to create flexible cultural spaces and strengthen community interaction.
A Contemporary Take on Iranian Residential Architecture
A modern interior design in Mashhad that reinterprets brick, light, and spatial flow to create a warm, contemporary residential architecture.
Solar Steam: A Climate-Responsive Architecture That Redefines the Monument
A climate-responsive memorial architecture that transforms heat, decay, and time into a living system reflecting humanity’s ecological impact.
Similar Reads
You might also enjoy these articles
SOM LAND Hotel by RooMoo: A Sustainable Retreat Rooted in Nature and Local Craft
Sustainable boutique hotel in Shanghai blending adaptive reuse, natural materials, vernacular craftsmanship, and slow living within a serene countryside landscape.
Zhuxi Wonderland: Reimagining Traditional Chinese Gardens by Doarchi Architects
Zhuxi Wonderland by Doarchi Architects reinterprets traditional Yangzhou gardens, integrating courtyards, pavilions, and tea houses in modern cultural design.
Doble Soga House: A Contemporary Brick Residence Rooted in Landscape in Quito, Ecuador
Brick house in Quito integrating nature, flexible living spaces, exposed materials, and rooftop terrace, creating warm contemporary architecture for modern family life.
Al Gharra Mosque in Medina Redefining Contemporary Islamic Architecture
Minimalist Medina mosque using concrete, light, and landscape to reinterpret Islamic worship spaces through symbolic spiritual transitions and contemporary architecture.
Explore Architecture Competitions
Discover active competitions in this discipline
The International Standard for Design Portfolios
The Global Benchmark for Architecture Dissertation Awards
The Global Benchmark for Graduation Excellence
Challenge to design a portable theatre
Comments (0)
Please login or sign up to add comments
No comments yet. Be the first to comment!