Immersive Cinema Architecture: La Géode Cinema by Loci Anima
A transformative renovation of La Géode Cinema creates a world-class immersive cinema architecture blending brutalism with cutting-edge technology.
La Géode Cinema in Paris, a landmark of immersive cinema architecture, has undergone a transformative renovation led by Loci Anima under Françoise Raynaud’s direction. Nestled within the 19th arrondissement’s Parc de la Villette, this 3000 m² architectural marvel now offers an unparalleled multisensory cinematic experience, redefining how architecture and entertainment intersect.



A New Era for La Géode Cinema
Originally designed by Adrien Fainsilber in 1985, La Géode is renowned for its hemispherical form and iconic IMAX screen. The latest renovation, completed in December 2024, elevates the entire building into an immersive experience that begins even before entry. The new dichroic façade, resembling contemporary stained glass, bathes the structure in flowing natural light, blending transparency and color into a monolithic yet playful composition. This approach turns the building into an architectural spectacle, celebrating cinema both inside and out.


Architecture as Multisensory Experience
Loci Anima’s design invites visitors on a journey of sight, sound, and taste. From the moment one steps into the confectionery area, the architectural experience merges with sensory delight, transporting visitors into a dreamlike world. The circular space beyond is animated by dynamic light and shadows, evoking a sense of wonder and discovery.




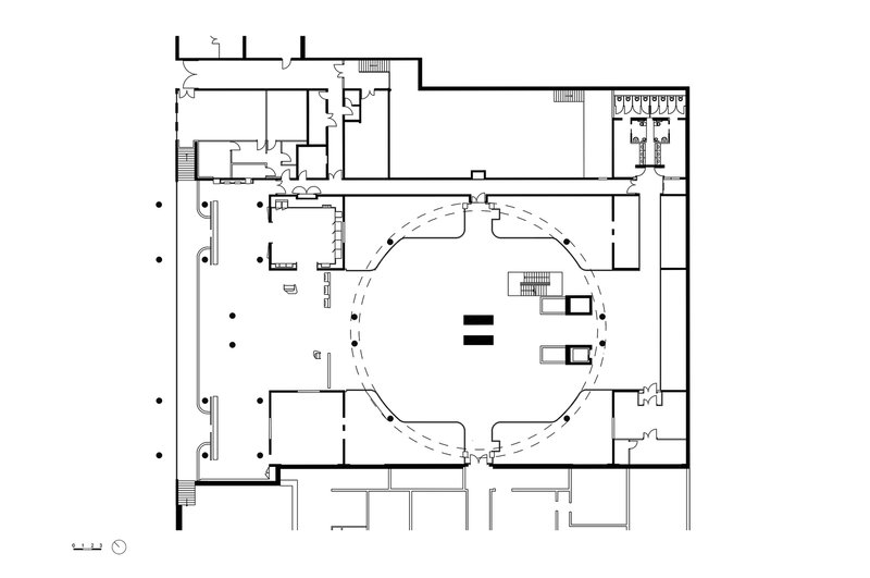
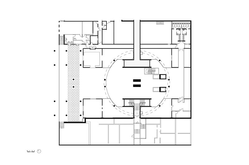
Celebrating Brutalist Heritage
The renovation honors La Géode’s brutalist roots, centered on its inverted mushroom-shaped concrete core, supported by a mere 4 m² pillar. The careful addition of platforms to accommodate a new IMAX projector and a filled pit respects this delicate structural balance, enhancing rather than overpowering the original design. In stripping away conventional cinema elements, Loci Anima has elevated La Géode into a “concrete cathedral,” where the architectural show begins long before the movie starts.



A Fully Immersive Cinematic Journey
A 360° projected image envelopes visitors as they explore the space, blurring the lines between built form and virtual imagery. Two panoramic elevators and an 11-meter floating staircase provide breathtaking vertical movement through the building, culminating at the new auditorium. Here, visitors can closely observe the geodesic sphere, an experience not for the faint-hearted.




Inside, a 1,000 m² hemispherical screen pairs with a cutting-edge 4K laser projector and an IMAX 6.0 sound system, creating one of the most advanced cinematic environments in the world. Seating capacity has been reduced from 400 to 286, with custom-designed seats offering six reclining positions, ensuring optimal comfort and viewing. Before the main screening even begins, guests embark on a virtual exploration of Parc de la Villette, as the dome itself transforms into a digital window to the outside world.



A Perfect Symbiosis of Structure and Technology
La Géode Cinema’s renovation exemplifies the best of immersive cinema architecture, where structural materials, video mapping, and spatialized sound converge to create an unforgettable experience. This project sets a new standard for cinema design, merging brutalist heritage with cutting-edge innovation, and offering visitors a journey that extends beyond the screen and deep into the heart of architectural wonder.


All the photographs are works of Adrien Daste & Loci Anima
Popular Articles
Popular articles from the community
Architects Group RAUM Stacks Offset White Volumes into a Compact Office Tower in Busan
A 524-square-meter building on a tight corner lot in Haeundae plays with sunlight rights and shifting floor plates to create generous terraces.
BICA Arquitectos Buries a Coastal Home in a Man-Made Dune on Portugal's Tróia Peninsula
A 300-square-meter house of timber, sand mortar, and travertine dissolves into the dune landscape it helped regenerate on the Alentejo coast.
Paco Oria Estudio Rebuilds a 1949 Valencian Town House Around Timber, Terracotta, and a New Interior Patio
In Godella, Spain, a semi-detached house from the postwar era is stripped to its party walls and rebuilt with wood and ceramics.
H&P Architects Stack a Vertical River of Brick and Greenery in Hanoi
A perforated terracotta tower in Dong Anh channels water, light, and air through eight staggered levels of domestic life.
Similar Reads
You might also enjoy these articles
Olio Towers: A Mid-Rise for Performers That Fuses Housing, Rehearsal, and Stage
Located blocks from Houston's Theater District, this modular tower stacks living units around a central performance atrium.
Oasis: Modular Green Housing Carved into Dhaka's Urban Fabric
A shortlisted Plugin Housing entry reclaims unauthorized settlements in Dhaka with stepped concrete volumes, green roofs, and ventilation-driven design.
Black Hole: A Floating Megastructure for the Post-Physical Era
Emiliano Mazzarotto envisions a spherical, self-scaling arena where e-sports, digital hotels, and holographic stadiums replace traditional public space.
Compact & Sustainable Living in Piraeus: A Four-Level Family Home Built Around Light and Air
A narrow townhouse in one of Greece's densest port cities uses a central atrium and passive strategies to house three generations under one roof.
Explore Architecture Competitions
Discover active competitions in this discipline
The International Standard for Design Portfolios
The Global Benchmark for Architecture Dissertation Awards
The Global Benchmark for Graduation Excellence
Challenge to reimagine the Iron Throne
Comments (0)
Please login or sign up to add comments
No comments yet. Be the first to comment!