Impluvium by Choza: A Vision of Sustainable Greenhouse Architecture in Argentina
Impluvium by Choza redefines sustainable greenhouse architecture in Argentina, blending adaptive reuse, passive design, and contemplative agricultural spaces.
The Impluvium by Choza. Espacio de Arquitectura in Calamuchita, Córdoba, Argentina, redefines the boundaries of sustainable greenhouse architecture. Designed in 2023, this project transforms a disused water tank into a multifunctional greenhouse that embodies the principles of recycling, sustainability, and contemplative living.

From Past to Present: Reusing Historical Infrastructure
The Impluvium greenhouse sits on the remains of a productive property from the 1930s, where a water tank once supplied irrigation to the valley. Nearly 90 years later, the tank’s circular base and rocky foundation were repurposed into an architectural platform, proving that infrastructures with physical and cultural value can be reimagined. This adaptive reuse highlights the project’s commitment to a sustainable architectural approach, linking past agricultural heritage with present-day ecological needs.


Conceptual Foundations: Produce, Experiment, Contemplate
The project responds to three essential desires: reproducing plant life, experimenting with cultivation under controlled climates, and creating a space for contemplation. The Impluvium greenhouse balances practical agricultural functions with leisure and reflection, integrating cultivation spaces with areas for rest, observation, and enjoyment.




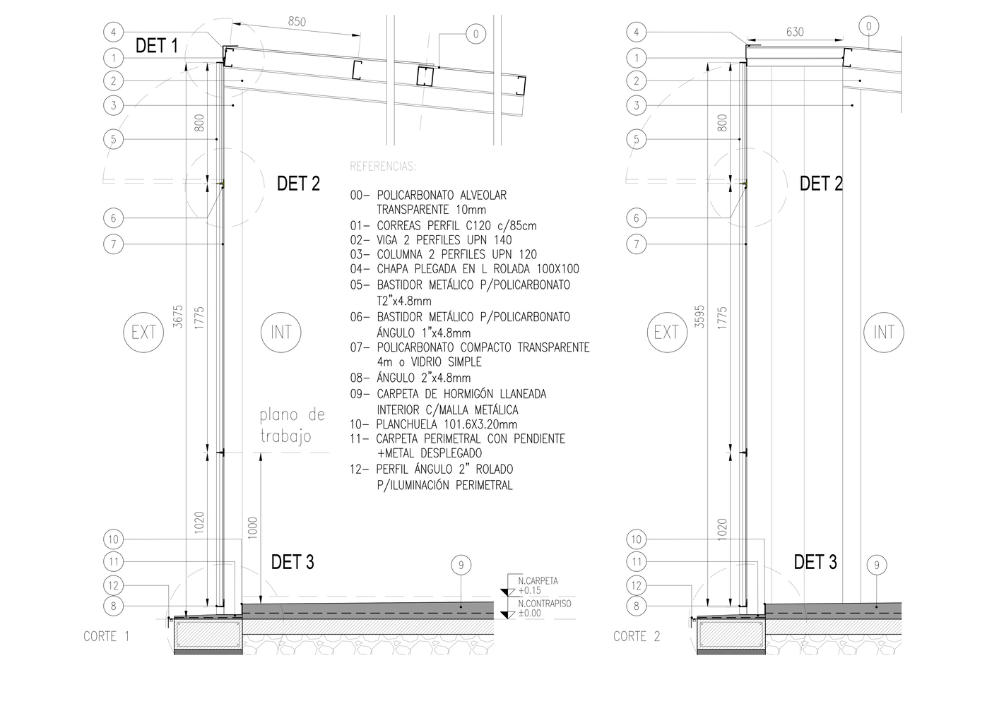
Architectural Design: The Inverted Tent
Inspired by the Roman impluvium, the greenhouse features an inverted circular tent form, structured in steel and enclosed with translucent polycarbonate. At the center, the roof opens to collect rainwater, channeling it into a natural pool formed by the rocky terrain. This design not only sustains cultivation but also creates a poetic relationship between water, architecture, and landscape.
Functional Organization: Eight Modular Sectors
The 16-meter diameter circular surface is divided into eight structural and spatial modules. Six are dedicated to interior cultivation and experimentation, while two are exterior extensions. Each module operates independently, with controlled systems for temperature, humidity, ventilation, and lighting. The greenhouse accommodates diverse crops—from vegetables and hydroponics to cacti, orchids, and tropical plants—while also offering storage and germination workspaces.


Climate Responsiveness and Energy Efficiency
In Córdoba’s challenging climate of seasonal extremes, the Impluvium greenhouse applies passive architectural strategies. During winter, the design maximizes solar radiation capture, storing heat to maintain interior warmth. In summer, natural ventilation and a double-envelope system prevent overheating.


The outer polycarbonate shell enhances light capture while providing ventilation through operable perimeter openings. Inside, a white micro-perforated textile membrane filters sunlight, retains heat in winter, and creates a thermal buffer in summer. This layered system regulates temperatures efficiently while maintaining natural light for photosynthesis.


A Slow and Handcrafted Architecture
The greenhouse embodies the idea of “slow architecture,” where care, maintenance, and observation are integral to design. By drawing inspiration from Lacaton & Vassal’s integration of industrial typologies with domestic life, Choza demonstrates how greenhouses can be both productive infrastructures and spaces of human experience.


A Model for Sustainable Greenhouse Architecture
The Impluvium by Choza exemplifies how architecture can merge sustainability, adaptive reuse, and cultural reflection. Through its circular geometry, climatic intelligence, and poetic water collection system, the project sets a benchmark for sustainable greenhouse architecture. It demonstrates that ecological design is not only about efficiency but also about rethinking the relationship between humans, environment, and time.

All Photographs are works of Juan Cruz Paredes