Industrial Building Renovation for Education: Cooking School for Migrants by FREAKS Architecture
FREAKS Architecture renovates an industrial hall into a cooking school, blending industrial heritage with modern educational design for migrant training.
Transforming an Industrial Space into a Culinary Training Hub
In Montreuil, France, FREAKS Architecture has repurposed a former industrial hall into a state-of-the-art cooking school for the Cuistots Migrateurs association. This innovative renovation project breathes new life into the existing metal-framed structure while preserving its industrial identity. Designed to provide professional culinary training for migrants, the facility seamlessly blends contemporary educational needs with the architectural heritage of the building, creating a space that is both functional and inviting.



A Vision for Adaptive Reuse in Education
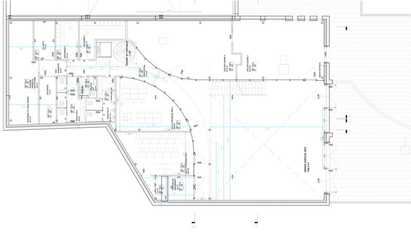
The challenge of repurposing an industrial space into an educational facility required a thoughtful approach to spatial organization and material selection. The former warehouse, characterized by its metal framework and hangar roofs, provided an open-plan layout ideal for conversion. FREAKS Architecture strategically transformed the space into a fully equipped training center, integrating kitchen workstations, technical rooms, changing areas, and a double-height agora designed for social and educational events.


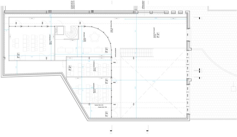
A key aspect of the renovation was ensuring smooth circulation between spaces. The ground floor houses kitchen classrooms, while the upper level accommodates traditional learning spaces, offices, and a dining area for students. The design incorporates two staircases and a personnel elevator, allowing for seamless movement throughout the facility.


Preserving Industrial Aesthetics with Contemporary Enhancements
One of the defining elements of the project is its careful balance between modern functionality and the preservation of the building’s industrial character. The existing brick and concrete facade has been enhanced with contemporary wooden joinery, creating a harmonious contrast between old and new materials. By maintaining the original structure while introducing natural elements, the renovation fosters a warm yet professional atmosphere, reinforcing the school’s mission of empowerment and community building.



A Culinary Space Designed for Learning and Connection
The core of the renovation revolves around the kitchen spaces, where hands-on culinary training takes place. Each workstation is designed for individual practice, ensuring that students gain both theoretical knowledge and practical expertise in a professional setting. The double-height agora serves as a dynamic social hub, bridging the interior with the exterior square and facilitating events, workshops, and communal gatherings.



On the upper floor, classrooms provide an academic environment for theoretical coursework, while the student dining area offers a space for relaxation and interaction. The strategic layout ensures that all areas of the school contribute to an immersive and engaging learning experience.



The Impact of Industrial Building Renovation for Education
The Cooking School for Migrants by FREAKS Architecture is a compelling example of how industrial building renovation can serve educational and social purposes. By repurposing an existing structure rather than constructing a new one, the project embodies sustainability and architectural adaptability.



This transformation not only preserves the industrial heritage of the site but also creates an inclusive environment where migrants can acquire essential culinary skills. Through its innovative design and commitment to functionality, the school stands as a model for future educational spaces, proving that architecture can be a powerful tool for community integration and professional development.




All Photographs are works of David Foessel
Popular Articles
Popular articles from the community
Free Architecture Competitions You Can Enter Right Now
No entry fees, real prizes. Here are the best free architecture competitions open for submissions in 2026.
Inverted Architecture Installation by Studio Link-Arc: Exploring the Intersection of Architecture and Living Organisms
Inverted Architecture Installation by Studio Link-Arc blends mycelium, sustainability, inverted design, ecological cycles, and urban adaptive architecture in Shenzhen.
Split House: A Compact Urban Home Blending Privacy, Light, and Flexible Living in Japan
Compact Japanese home featuring DOMA space, flexible café potential, passive lighting, privacy zoning, and sustainable urban living design.
The Ken Roberts Memorial Delineation Competition (Krob)
As the most senior architectural drawing competition currently in operation anywhere in the world, it draws hundreds of entries each year, awarding the very best submissions in a series of medium-based categories.
Similar Reads
You might also enjoy these articles
The Ken Roberts Memorial Delineation Competition (Krob)
As the most senior architectural drawing competition currently in operation anywhere in the world, it draws hundreds of entries each year, awarding the very best submissions in a series of medium-based categories.
Waterfront Redevelopment and Urban Revitalization in Mumbai: Forging a New Dawn for Darukhana
A transformative waterfront redevelopment project reimagining Darukhana’s shipbreaking heritage into an inclusive urban future.
OUT-OF-MAP: A Call for Postcards on Feminist Narratives of Public Space
Rhizoma Design and Research Lab invites artists, designers, architects, researchers, and students to reflect on how feminist perspectives can reshape public space. Selected works will be exhibited in Barcelona, October 2026. Submissions open until 15 April 2026.
Documentation Work on Buddhist Wooden Temple
Architectural syncretism and cultural hybridity: A comparative study of the Buddhist temples in Chattogram Hill tracks
Explore Architecture Competitions
Discover active competitions in this discipline
The International Standard for Design Portfolios
The Global Benchmark for Architecture Dissertation Awards
The Global Benchmark for Graduation Excellence
Challenge to reimagine the Iron Throne
Comments (0)
Please login or sign up to add comments
No comments yet. Be the first to comment!