Innovative Apartment Renovation in Tokyo: G Apartment Transformation
Exploring the G Apartment Renovation in Tokyo, showcasing a spacious, adaptable living space that harmonizes innovative design with urban lifestyle.
In the heart of Shibuya City, Tokyo, lies a groundbreaking project that redefines apartment living through innovative design and architectural ingenuity. The G Apartment Renovation, masterminded by Yoshiteru Kishida and the IIIRDPROJECT team, showcases how a traditional one-bedroom apartment can be transformed into a spacious, adaptable living space for a single resident with diverse hobbies and a future-ready mindset.


The Vision Behind the Renovation
Adapting to a Single Resident's Lifestyle
The renovation of G Apartment was driven by the client's desire for an open and versatile living area that could accommodate an array of activities and evolve with their life changes. This forward-thinking approach led to the creation of a space that breaks the mold of conventional apartment layouts, promoting a dynamic and flexible lifestyle.


Embracing Architectural Constraints
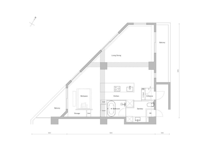
Understanding the limitations posed by the apartment's structural elements, the architects devised a strategy to work with and around these constraints. By removing unnecessary walls, the renovation exposed the apartment's foundational beams and pillars, integrating them into the design to create distinct yet fluid living zones within a singular open space.



Key Features of the Renovation
Strategic Division of Space
The innovative layout introduces three subtly defined areas, cleverly delineated without the use of traditional partitions. This open-plan concept not only maximizes the sense of space but also encourages a more interactive and adaptable living environment, accommodating everything from daily routines to the evolving needs of the resident.



Material Selection and Scenic Creation
Materials like lauan plywood and mortar intersect across various functions, from the entrance through the kitchen to the bathroom, contributing to the apartment's cohesive yet diverse aesthetic. The deliberate placement and orientation of windows, furniture, and objects allow for the creation of varying sceneries within the apartment, reflecting the dynamic nature of city living.


Integration with the Urban Landscape
The apartment's design philosophy extends beyond its interior, seeking to harmonize with the bustling Tokyo cityscape. High-rise windows offer panoramic views that connect the resident with the urban environment, blurring the boundaries between indoor space and the city beyond. This relationship between the apartment and Tokyo's skyline fosters a living experience that is deeply intertwined with the rhythm of the city.


Redefining Urban Living
The G Apartment Renovation by Yoshiteru Kishida and IIIRDPROJECT is a testament to the possibilities of modern urban living. Through innovative design, strategic use of space, and a deep understanding of the resident's lifestyle, this project offers a new perspective on apartment renovation in Tokyo. It exemplifies how architecture and interior design can craft spaces that are not only functional and beautiful but also deeply connected to the urban fabric of the city.


Select an Image
All the photographs are work of Akira Nakamura