Innovative Design and Safety: Girl's College & Hostel by Neogenesis+Studi0261
An architectural marvel blending safety, functionality, and modern aesthetics for educational institutions.
The Girl's College & Hostel for Model Education Trust, designed by Neogenesis+Studi0261, is a contemporary architectural marvel located in the Unn area of Surat, India. This project, completed in 2023, not only stands as a landmark but also epitomizes the integration of safety, functionality, and modern aesthetics in educational architecture.




Design Philosophy and Master Planning
Holistic Design Approach
The college and hostel complex were envisioned to be a symbol of the trust’s identity and purpose. With a focus on providing a modest yet impactful working environment, the design by Neogenesis+Studi0261 is a testament to thoughtful architectural planning.




Strategic Layout for Safety and Functionality
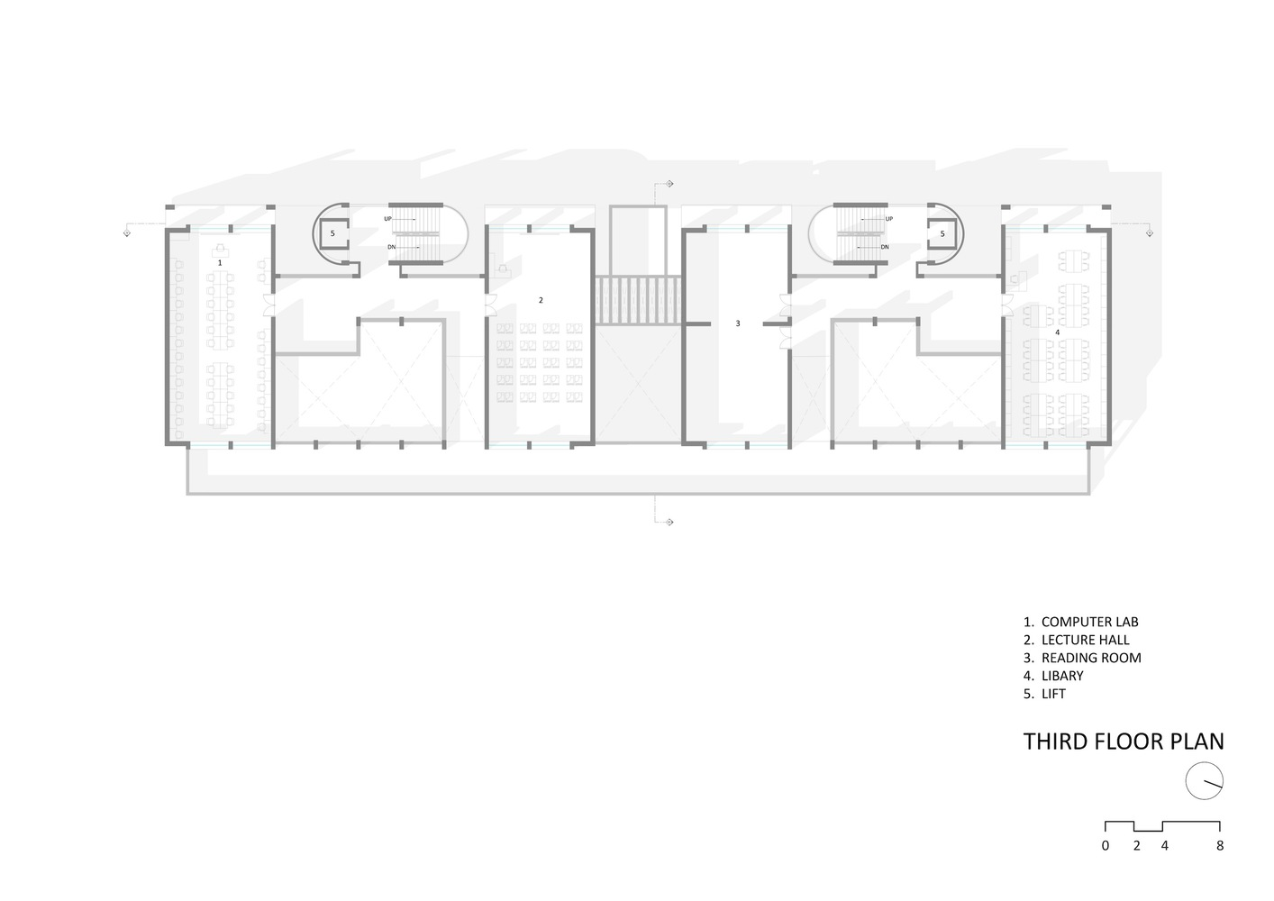
The master plan features three blocks, strategically placed to form a central garden, serving as an active open area. Given the proximity to an industrial zone, the layout ensures the safety of female students by positioning staff areas and circulation cores peripherally, while the main classrooms and laboratories face the central garden. This introverted layout fosters a secure and conducive learning environment.




Architectural Features
Façade and Structural Design
The design incorporates rigid squares and curved staircase blocks, creating a rhythmic composition. The western façade, with its dynamic interplay of curved and rigid blocks, contrasts with the eastern façade’s structural frame, softened by setbacks and passages. This thoughtful juxtaposition of elements adds visual interest and breaks down the scale, enhancing the building’s harmony.




Material Palette and Aesthetics
The use of exposed brick and concrete speaks to an industrial charm coupled with modern sophistication. Horizontal concrete bands seamlessly integrate with the brick sections, while Kota stone flooring and WPC profiles for door frames maintain a neutral palette. Hints of greenery add character, and the building’s interaction with sunlight throughout the day showcases varying expressions in the internal spaces.




Interior Layout and Circulation
Efficient Space Utilization
Covering an area of 5073 m², the design facilitates efficient workflow and interaction among students and staff. The passages and terraces, oriented towards the central garden, create a succession of connected spaces that enhance circulation and provide necessary pauses, fostering a dynamic and engaging environment.





Kinesthetic Experience
The architecture choreographs human movement through spatial constructs, with careful attention to detail enhancing the building’s aesthetic appeal. The transition of sunlight throughout the day animates the internal spaces, particularly the double-height passage, highlighting the structure’s craftsmanship and quality.


The Girl's College & Hostel for Model Education Trust by Neogenesis+Studi0261 exemplifies innovative architecture for educational institutions, combining safety, functionality, and modern design. The project successfully aligns with the institute’s objectives, offering a contemporary aesthetic and a secure, engaging environment for its users.








All photographs are work of The Fishy Project
Popular Articles
Popular articles from the community
A Contemporary Take on Iranian Residential Architecture
A modern interior design in Mashhad that reinterprets brick, light, and spatial flow to create a warm, contemporary residential architecture.
On the Brooks House by Monsoon Collective – A Contemporary Kerala Home Rooted in Tradition
Kerala home blending tradition and modernity with water-inspired design, brick architecture, courtyard planning, and sustainable rainwater harvesting strategies.
Flamboyant House by Juliana Camargo + Prumo Projetos
Modern Brazilian house integrating existing tree, pool, and volumes with glass, wood, and transitional spaces blending interior, exterior, and landscape seamlessly.
Treehouse Apartment: A Warm Timber Interior Blending Craft, Play, and Contemporary Living
Warm timber apartment with integrated treehouse, combining natural materials, craftsmanship, and playful design to create a flexible, family-oriented living environment.
Similar Reads
You might also enjoy these articles
The Ken Roberts Memorial Delineation Competition (Krob)
As the most senior architectural drawing competition currently in operation anywhere in the world, it draws hundreds of entries each year, awarding the very best submissions in a series of medium-based categories.
Waterfront Redevelopment and Urban Revitalization in Mumbai: Forging a New Dawn for Darukhana
A transformative waterfront redevelopment project reimagining Darukhana’s shipbreaking heritage into an inclusive urban future.
OUT-OF-MAP: A Call for Postcards on Feminist Narratives of Public Space
Rhizoma Design and Research Lab invites artists, designers, architects, researchers, and students to reflect on how feminist perspectives can reshape public space. Selected works will be exhibited in Barcelona, October 2026. Submissions open until 15 April 2026.
Documentation Work on Buddhist Wooden Temple
Architectural syncretism and cultural hybridity: A comparative study of the Buddhist temples in Chattogram Hill tracks
Explore Architecture Competitions
Discover active competitions in this discipline
The International Standard for Design Portfolios
The Global Benchmark for Architecture Dissertation Awards
The Global Benchmark for Graduation Excellence
Challenge to reimagine the Iron Throne
Comments (0)
Please login or sign up to add comments
No comments yet. Be the first to comment!