Innovative Loft Apartment Design with High Ceilings and Open Spaces: The Pink Mill Apartment by Kilo / Honc
The Pink Mill Apartment features innovative loft design with high ceilings, open spaces, and a flexible layout that promotes discovery.
A Fusion of Modern Design and Open Concept Living
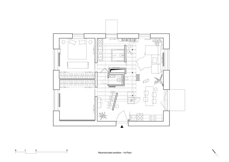
Located in Piešťany, Slovakia, the Pink Mill Apartment, designed by Kilo / Honc, is a prime example of innovative loft apartment design. Completed in 2023, this 80-square-meter space features an exciting renovation that transforms a traditional layout into a dynamic, open-concept living space. The apartment maximizes its features, including high ceilings, natural light from three cardinal directions, and a carefully planned addition of a second level to enhance both space and function.



Reimagining a Standard Layout: Removing Barriers and Creating Flow
The primary goal of the renovation was to eliminate the typical barriers found in a standard developer layout, including dark, narrow corridors. The architects focused on creating a "landscape of spaces" by reworking the floor plan, opening up the apartment to create fluid transitions between rooms. With the integration of a second level, the apartment was expanded by over 17 square meters, increasing both its functionality and spatial feel.




Height and Proportion: Balancing Intimacy and Openness
The renovation emphasizes the interplay between intimacy and openness, light and shadow. The designers used the height of the space to their advantage by adding a raised plateau or second level, which transforms the apartment into an expansive yet cozy environment. This addition allows for moments of surprise and discovery as one moves through the space, providing a sense of openness without sacrificing the feeling of seclusion. The balance of proportions, with neither too much nor too little, is a key element in the apartment's design.




Fluid Spaces: Blurring the Boundaries Between Rooms
A standout feature of the Pink Mill Apartment is its fluidity. The architects intentionally blurred the boundaries between spaces, allowing the functions of the rooms to be flexible. Whether relaxing with a book while swinging legs off the second level or watching a movie from an unexpected vantage point, the design allows the residents to interact with the space in unique ways. The spaces flow into one another, with an organic quality that encourages exploration and adaptability.




The Aesthetic of the Pink Mill Apartment: A Play of Light and Shadow
The interplay of light and shadow is carefully considered in the Pink Mill Apartment. The design invites natural light through expansive windows, casting varied shadows throughout the space. This dynamic lighting design creates a constant transformation of the environment, enhancing the fluidity of the apartment's layout. The subtle yet striking design elements are intended to foster a feeling of both surprise and comfort as you move through the home.






A New Standard for Loft Living
The Pink Mill Apartment by Kilo / Honc is a perfect example of how innovative loft apartment design can elevate living spaces. By reimagining a typical layout and embracing open, fluid spaces, the architects have created a dynamic home that maximizes both style and functionality. With high ceilings, carefully considered proportions, and a design that promotes a sense of surprise and discovery, this apartment sets a new benchmark for modern loft living.






All Photographs are works of Matej Hakár
Popular Articles
Popular articles from the community
Inverted Architecture Installation by Studio Link-Arc: Exploring the Intersection of Architecture and Living Organisms
Inverted Architecture Installation by Studio Link-Arc blends mycelium, sustainability, inverted design, ecological cycles, and urban adaptive architecture in Shenzhen.
Fifth NRE Jazz Club – De Bever Architecten: Eindhoven’s Revitalized Cultural Hub
Historic gas factory transformed into Fifth NRE Jazz Club blending modern sustainability, jazz culture, dining, and heritage architecture seamlessly.
Free Architecture Competitions You Can Enter Right Now
No entry fees, real prizes. Here are the best free architecture competitions open for submissions in 2026.
Solar Steam: A Climate-Responsive Architecture That Redefines the Monument
A climate-responsive memorial architecture that transforms heat, decay, and time into a living system reflecting humanity’s ecological impact.
Similar Reads
You might also enjoy these articles
The Ken Roberts Memorial Delineation Competition (Krob)
As the most senior architectural drawing competition currently in operation anywhere in the world, it draws hundreds of entries each year, awarding the very best submissions in a series of medium-based categories.
Waterfront Redevelopment and Urban Revitalization in Mumbai: Forging a New Dawn for Darukhana
A transformative waterfront redevelopment project reimagining Darukhana’s shipbreaking heritage into an inclusive urban future.
OUT-OF-MAP: A Call for Postcards on Feminist Narratives of Public Space
Rhizoma Design and Research Lab invites artists, designers, architects, researchers, and students to reflect on how feminist perspectives can reshape public space. Selected works will be exhibited in Barcelona, October 2026. Submissions open until 15 April 2026.
Documentation Work on Buddhist Wooden Temple
Architectural syncretism and cultural hybridity: A comparative study of the Buddhist temples in Chattogram Hill tracks
Explore Architecture Competitions
Discover active competitions in this discipline
The International Standard for Design Portfolios
The Global Benchmark for Architecture Dissertation Awards
The Global Benchmark for Graduation Excellence
Challenge to reimagine the Iron Throne
Comments (0)
Please login or sign up to add comments
No comments yet. Be the first to comment!