Innovative Residential Architecture in Mungyeong: Exploring Round Roofs Residence by Todot Architects and Partners
Explore Round Roofs Residence in Mungyeong, blending traditional Korean architecture with modern design to revitalize and inspire community interaction.
Situated in the scenic city of Mungyeong, Round Roofs Residence by Todot Architects and Partners represents a pinnacle of innovative residential architecture. This project blends traditional Korean architectural motifs with modern design principles, creating a distinctive living space that stands out in its urban environment.




Design Philosophy and Architectural Innovation
Integrating Historical Context with Modern Design
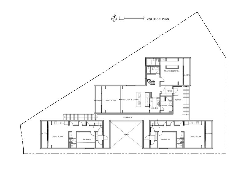
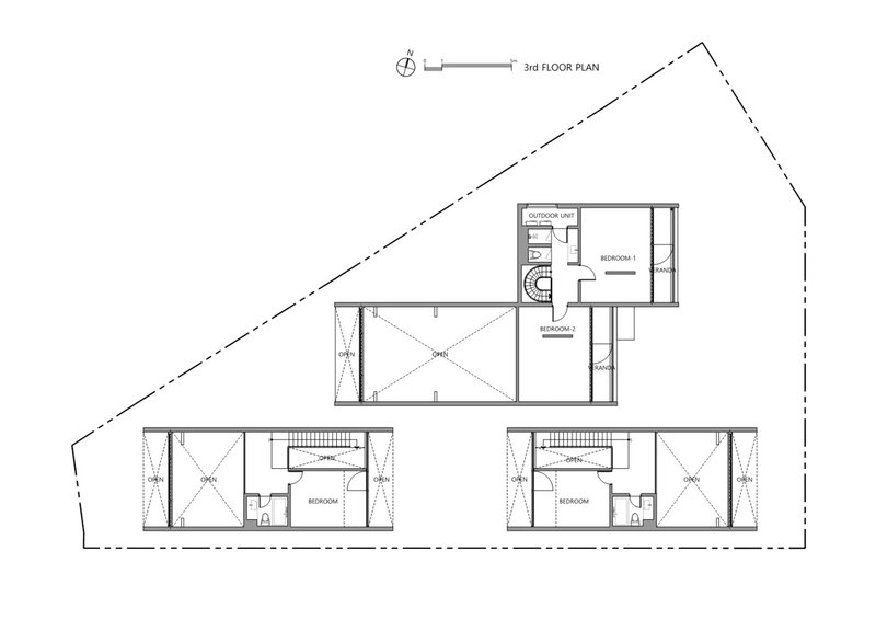
Round Roofs Residence draws inspiration from the ancient Chinese astronomical book, Zhou bi suan jing, which mentions, "The sky is round and the ground is angular." This philosophy is beautifully integrated into the building’s design, featuring curved roof lines that echo the roundness of the sky—a traditional aspect in Korean architecture—while the building's footprint and its angular site alignment reflect the angular ground.





Tailored to the Triangular Site
The residence is uniquely set on a triangular plot, dissected by a road and prominently located near Mungyeong City Hall and Mojeon Park. The design utilizes the shape and strategic position to enhance the site's visibility and accessibility. Staggered massing along the sharp edges of the site creates dynamic interstitial spaces, encouraging engagement with the building’s retail components while enhancing the residential experience.




Structural Features and Material Use
Innovative Use of Materials
Todot Architects and Partners approached the structural design with creativity, employing engineered wood structures alongside traditional concrete and steel. The combination of 2x8s, 2x10s, and OSB boards underlines the project's commitment to innovative and sustainable building practices. The seamless integration of these materials supports the curved designs of the roofs, providing both aesthetic appeal and structural integrity.




Designing with the Environment in Mind
The incorporation of semi-circular windows and recessed arches not only reinforces the connection to traditional design elements but also optimizes natural light and enhances the building's thermal efficiency. These features reflect a broader commitment to environmental sustainability within the scope of modern architecture.




Impact on the Community
Revitalizing the Local Area
Round Roofs Residence is more than just a residential and commercial complex; it is envisioned as a catalyst for revitalizing the surrounding area. By creating a building that naturally attracts residents and visitors, the project contributes to the vibrancy and economic vitality of Mungyeong. Its design and functionality encourage a slower, more engaged flow of movement, enriching the user experience and fostering community interactions.





Round Roofs Residence stands as a testament to the potential of innovative residential architecture in Mungyeong. With its philosophical design roots and modern execution, it sets a new standard for architectural excellence in the region. Todot Architects and Partners have created not just a building, but a landmark that respects its historical context while boldly looking towards the future.


All photographs are work of Jinbo Choi
Popular Articles
Popular articles from the community
Flamboyant House by Juliana Camargo + Prumo Projetos
Modern Brazilian house integrating existing tree, pool, and volumes with glass, wood, and transitional spaces blending interior, exterior, and landscape seamlessly.
A Contemporary Take on Iranian Residential Architecture
A modern interior design in Mashhad that reinterprets brick, light, and spatial flow to create a warm, contemporary residential architecture.
Louis Malle Cinema: A Limestone Cultural Landmark Revitalizing Community Life in Prayssac
Limestone cinema extension with public forecourt, blending heritage and modern design to create flexible cultural spaces and strengthen community interaction.
Inverted Architecture Installation by Studio Link-Arc: Exploring the Intersection of Architecture and Living Organisms
Inverted Architecture Installation by Studio Link-Arc blends mycelium, sustainability, inverted design, ecological cycles, and urban adaptive architecture in Shenzhen.
Similar Reads
You might also enjoy these articles
The Ken Roberts Memorial Delineation Competition (Krob)
As the most senior architectural drawing competition currently in operation anywhere in the world, it draws hundreds of entries each year, awarding the very best submissions in a series of medium-based categories.
Waterfront Redevelopment and Urban Revitalization in Mumbai: Forging a New Dawn for Darukhana
A transformative waterfront redevelopment project reimagining Darukhana’s shipbreaking heritage into an inclusive urban future.
OUT-OF-MAP: A Call for Postcards on Feminist Narratives of Public Space
Rhizoma Design and Research Lab invites artists, designers, architects, researchers, and students to reflect on how feminist perspectives can reshape public space. Selected works will be exhibited in Barcelona, October 2026. Submissions open until 15 April 2026.
Documentation Work on Buddhist Wooden Temple
Architectural syncretism and cultural hybridity: A comparative study of the Buddhist temples in Chattogram Hill tracks
Explore Architecture Competitions
Discover active competitions in this discipline
The International Standard for Design Portfolios
The Global Benchmark for Architecture Dissertation Awards
The Global Benchmark for Graduation Excellence
Challenge to reimagine the Iron Throne
Comments (0)
Please login or sign up to add comments
No comments yet. Be the first to comment!