Innovative Retail Interior Design: Unveiling Jedda Studio by Office Shabrina Artiandi
This article explores Jedda Studio by Office Shabrina Artiandi, showcasing its innovative approach to retail interior design in Bandung, Indonesia.
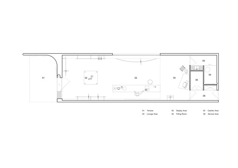
In the bustling city of Bandung, Indonesia, Jedda Studio emerges as a testament to innovative retail interior design, inspired by the nuanced concept of 'jeda' - or 'pause' in Indonesian. This idea, intriguingly put at odds with the traditional logic of retail spaces, guides the design philosophy of Office Shabrina Artiandi, crafting a space that balances serenity with sophistication.


The Essence of Modesty in Fashion
Jedda Studio's debut collection and studio building reflect a dignified approach to modest fashion. The architects drew inspiration from the qualities of serenity and sophistication observed in modest fashion, creating a retail environment that embodies these values through its architecture and interior design.


Designing for Hospitality and Retail
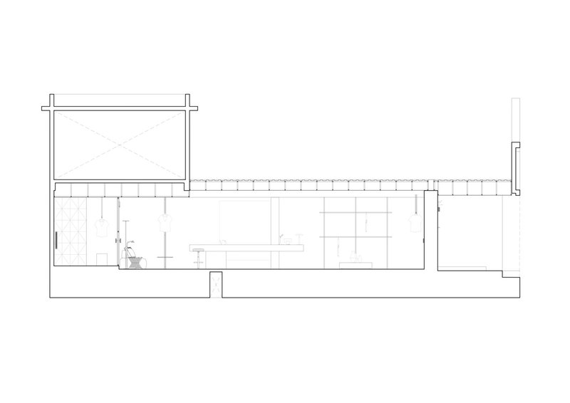
At the heart of Jedda Studio lies a tea bar, a gesture of hospitality that intentionally departs from modern retail's transactional nature. This space serves as a central element of the studio, emphasizing modesty and welcoming interaction over mere commerce. The minimalistic display strategy allows each clothing piece to stand out, enhanced by the presence of a commissioned painting that echoes the rich hues of tea leaves, adding depth and warmth to the space.


A Light-Filled Environment
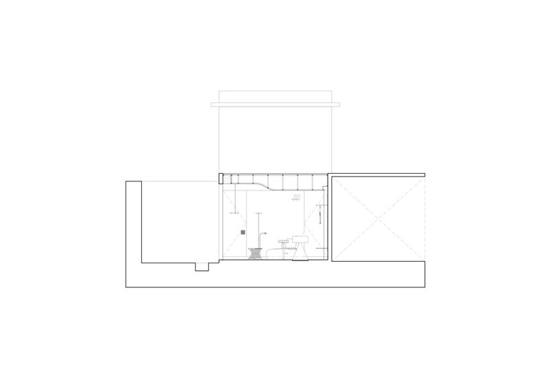
Challenging the constraints of its location next to a sewer passage, Jedda Studio breaks free from the conventional enclosed retail space. A significant architectural feature is the large sandblasted window on the west-facing wall, which invites natural light while offering privacy. This design choice introduces a circadian rhythm to the interior, allowing the sunlight's changing intensity to animate the space throughout the day.



Materiality and Vulnerability
The selection of materials in Jedda Studio—from cast resin in door handles to stainless tubes with translucent caps—plays a critical role in disrupting formality and introducing elements of vulnerability. These choices are intended to foster a sense of trust and closeness among visitors, highlighting the studio's commitment to creating an engaging and human-centric retail experience.



Redefining Retail Spaces
Jedda Studio by Office Shabrina Artiandi stands as a pinnacle of innovative retail interior design, challenging conventional retail environments through its thoughtful integration of hospitality, natural lighting, and material vulnerability. This project not only serves as a showcase for Jedda’s wearable collection but also as a model for future retail spaces seeking to blend commerce with community and comfort.



All photographs are work of Syncro Creative
Popular Articles
Popular articles from the community
Atelier Macri Concept Store Interior Design by CASE-REAL
Atelier Macri store features a "ko" counter, walnut wood details, cork displays, blending retail, gallery, and seamless customer experiences.
A Contemporary Take on Iranian Residential Architecture
A modern interior design in Mashhad that reinterprets brick, light, and spatial flow to create a warm, contemporary residential architecture.
Flamboyant House by Juliana Camargo + Prumo Projetos
Modern Brazilian house integrating existing tree, pool, and volumes with glass, wood, and transitional spaces blending interior, exterior, and landscape seamlessly.
On the Brooks House by Monsoon Collective – A Contemporary Kerala Home Rooted in Tradition
Kerala home blending tradition and modernity with water-inspired design, brick architecture, courtyard planning, and sustainable rainwater harvesting strategies.
Similar Reads
You might also enjoy these articles
The Ken Roberts Memorial Delineation Competition (Krob)
As the most senior architectural drawing competition currently in operation anywhere in the world, it draws hundreds of entries each year, awarding the very best submissions in a series of medium-based categories.
Waterfront Redevelopment and Urban Revitalization in Mumbai: Forging a New Dawn for Darukhana
A transformative waterfront redevelopment project reimagining Darukhana’s shipbreaking heritage into an inclusive urban future.
OUT-OF-MAP: A Call for Postcards on Feminist Narratives of Public Space
Rhizoma Design and Research Lab invites artists, designers, architects, researchers, and students to reflect on how feminist perspectives can reshape public space. Selected works will be exhibited in Barcelona, October 2026. Submissions open until 15 April 2026.
Documentation Work on Buddhist Wooden Temple
Architectural syncretism and cultural hybridity: A comparative study of the Buddhist temples in Chattogram Hill tracks
Explore Architecture Competitions
Discover active competitions in this discipline
The International Standard for Design Portfolios
The Global Benchmark for Architecture Dissertation Awards
The Global Benchmark for Graduation Excellence
Challenge to reimagine the Iron Throne
Comments (0)
Please login or sign up to add comments
No comments yet. Be the first to comment!