Innovative School Campus Design: Transforming the American International School of Guangzhou
Exploring the transformative redesign of the AISG campus by Perkins&Will, focusing on sustainability, adaptability, and innovation in educational environments.
In the rapidly evolving educational landscape, the design of school campuses plays a crucial role in shaping the learning experiences of students. Innovative school campus design goes beyond aesthetics, integrating functionality, sustainability, and adaptability to meet the dynamic needs of modern education. A prime example of this approach is the renovation and expansion of the American International School of Guangzhou's Science Park campus, executed by Perkins&Will.




The Transformation of the American International School of Guangzhou
Overview of the Project
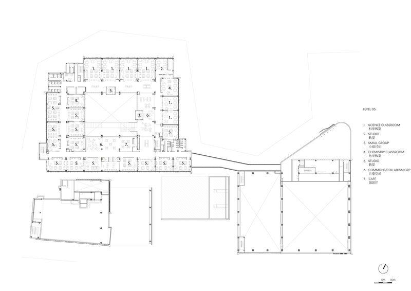
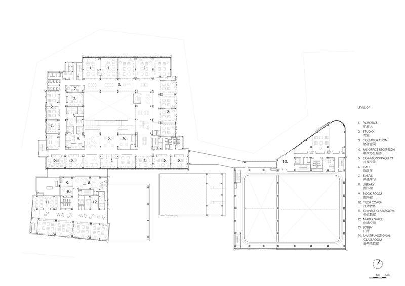
Established in 1981, the American International School of Guangzhou (AISG) embarked on a significant redevelopment of its Science Park campus to create a forward-thinking environment conducive to interdisciplinary learning. Covering an area of 38,823 m², the project was completed in 2023, featuring a blend of renovated spaces and new constructions aimed at supporting various learning styles and fostering a sense of community among students.





Design Philosophy and Execution
The project's design philosophy was rooted in creating a flexible, sustainable, and interactive learning environment. The campus was divided into three main clusters: academic, arts and culture, and athletics and recreation, connected by a skyway bridge to encourage spontaneous interactions. A notable feature is the luminous atrium at the heart of the campus, serving as a multimedia library and a central hub for students.




Flexibility Meets Function
A key aspect of the innovative school campus design at AISG is the dynamic classrooms equipped with modular furnishings and retractable walls, allowing for versatile teaching and learning setups. This adaptability extends to common areas, transforming them into vibrant spaces for collaboration or focused study.




Sustainability at the Core
Sustainability played a pivotal role in the campus renovation. A considerable effort was made to reuse existing structures, reducing the carbon footprint. The design emphasized natural light, ventilation, and the integration of native vegetation, showcasing a commitment to eco-friendly practices.






The Impact of Design on Education
The redesigned AISG campus stands as a testament to how innovative school campus design can positively impact educational outcomes. By providing diverse spaces that cater to different learning preferences, the school has laid the groundwork for a more inclusive and effective educational environment. The integration of sustainability practices further educates students on the importance of environmental stewardship.









Thoughts on School Campus Innovation
The American International School of Guangzhou's Science Park campus is a benchmark in innovative school campus design. It illustrates the profound effect that thoughtful architecture can have on educational philosophy, student engagement, and environmental responsibility. As educational institutions worldwide strive to meet the challenges of the 21st century, the AISG campus serves as inspiration for what is achievable in creating nurturing, sustainable, and adaptive learning spaces.




All photographs are work of STUDIOFANG, RAWVISION Studio
Popular Articles
Popular articles from the community
On the Brooks House by Monsoon Collective – A Contemporary Kerala Home Rooted in Tradition
Kerala home blending tradition and modernity with water-inspired design, brick architecture, courtyard planning, and sustainable rainwater harvesting strategies.
Inverted Architecture Installation by Studio Link-Arc: Exploring the Intersection of Architecture and Living Organisms
Inverted Architecture Installation by Studio Link-Arc blends mycelium, sustainability, inverted design, ecological cycles, and urban adaptive architecture in Shenzhen.
Fifth NRE Jazz Club – De Bever Architecten: Eindhoven’s Revitalized Cultural Hub
Historic gas factory transformed into Fifth NRE Jazz Club blending modern sustainability, jazz culture, dining, and heritage architecture seamlessly.
Atelier Macri Concept Store Interior Design by CASE-REAL
Atelier Macri store features a "ko" counter, walnut wood details, cork displays, blending retail, gallery, and seamless customer experiences.
Similar Reads
You might also enjoy these articles
The Ken Roberts Memorial Delineation Competition (Krob)
As the most senior architectural drawing competition currently in operation anywhere in the world, it draws hundreds of entries each year, awarding the very best submissions in a series of medium-based categories.
Waterfront Redevelopment and Urban Revitalization in Mumbai: Forging a New Dawn for Darukhana
A transformative waterfront redevelopment project reimagining Darukhana’s shipbreaking heritage into an inclusive urban future.
OUT-OF-MAP: A Call for Postcards on Feminist Narratives of Public Space
Rhizoma Design and Research Lab invites artists, designers, architects, researchers, and students to reflect on how feminist perspectives can reshape public space. Selected works will be exhibited in Barcelona, October 2026. Submissions open until 15 April 2026.
Documentation Work on Buddhist Wooden Temple
Architectural syncretism and cultural hybridity: A comparative study of the Buddhist temples in Chattogram Hill tracks
Explore Architecture Competitions
Discover active competitions in this discipline
The International Standard for Design Portfolios
The Global Benchmark for Architecture Dissertation Awards
The Global Benchmark for Graduation Excellence
Challenge to design public laboratory
Comments (0)
Please login or sign up to add comments
No comments yet. Be the first to comment!