Innovative Urban Home Design: Exploring the LP115 House by Junsekino Architect and Design
The article showcases the LP115 House by Junsekino Architect and Design, highlighting its innovative solutions for urban living in Bangkok.
In the bustling city of Bangkok, Thailand, the LP115 House stands as a testament to Innovative Urban Home Design. Created by the renowned Junsekino Architect and Design, this home showcases how architectural ingenuity can overcome urban space constraints, providing a comfortable living environment for a small family within the dense cityscape.


Maximizing Space on a Compact Urban Plot
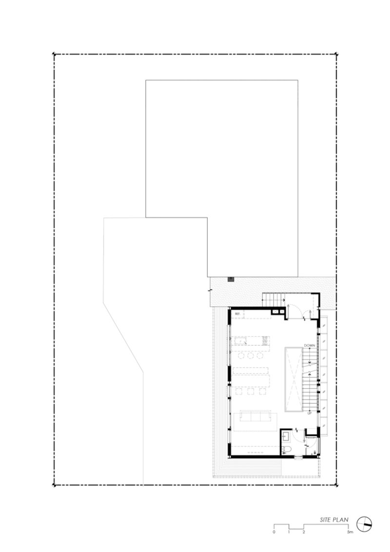
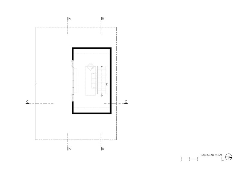
The inception of the LP115 House revolved around the challenge of constructing a new family home on the limited footprint of an existing property. The design cleverly incorporates the area of an old swimming pool by overlaying it with a new, lightweight steel structure. This approach not only preserves valuable urban space but also offers cost savings by avoiding the need to fill in or demolish the previous pool.




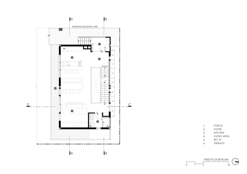
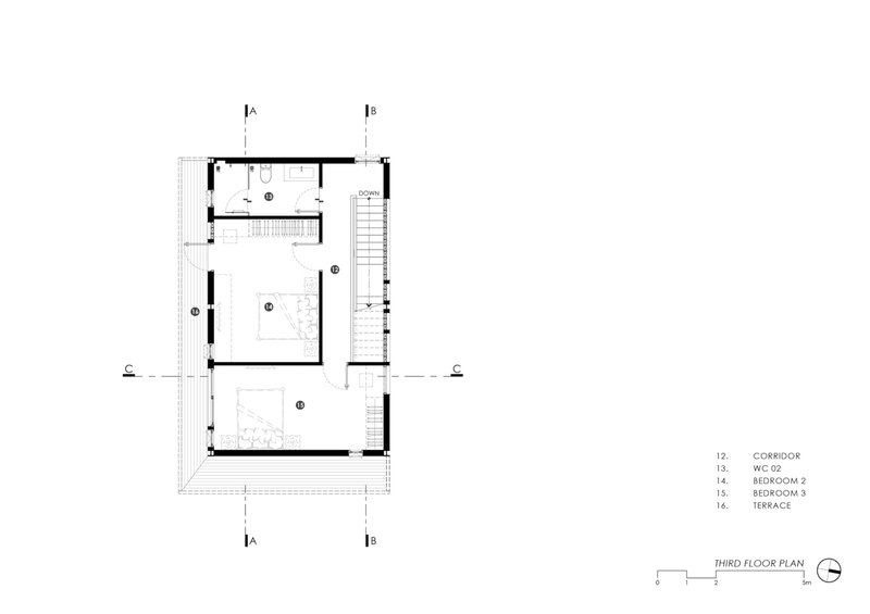
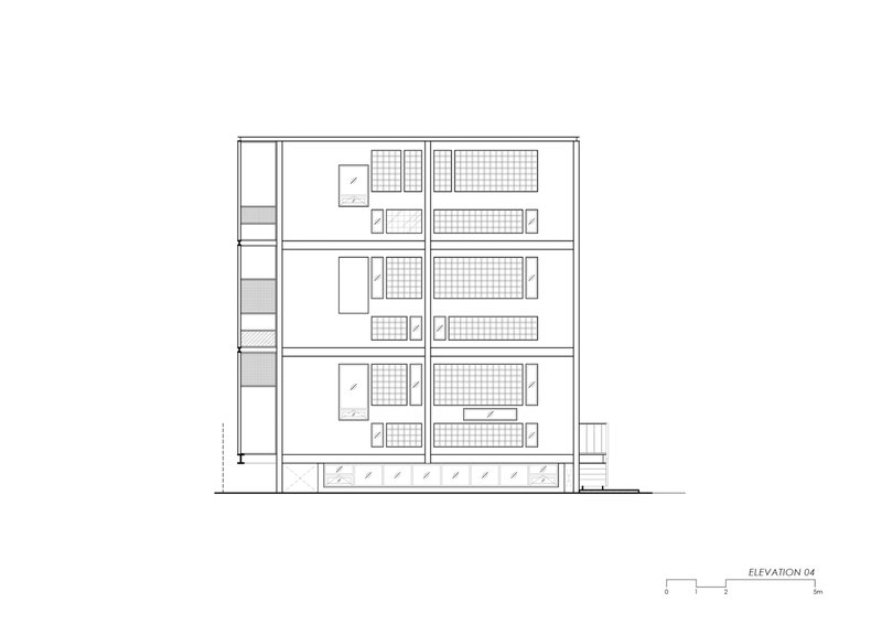
A Three-Story Solution for Family Living
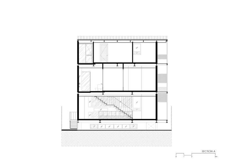
Understanding the need for ample living space, the architects designed the LP115 House as a vertical dwelling, stretching over three levels. The innovative layout positions the main living areas above ground level, transforming the old pool basin into a vibrant entertainment room. The second and third floors are dedicated to private family spaces, ensuring that each member has their own personal retreat.






Architectural Strategies for Comfort and Light
In addressing the challenges of Innovative Urban Home Design, the LP115 House employs smart architectural solutions to maintain comfort and privacy. The home's elevated structure not only safeguards against urban flooding but also facilitates natural light and air flow, reducing the reliance on artificial lighting and air conditioning.



Facade Design: A Blend of Tradition and Modernity
The exterior of the LP115 House breaks down the building's mass into smaller, manageable segments, achieving a human scale within its urban context. The facade utilizes a combination of opaque, transparent, and translucent elements, allowing residents to adjust their level of exposure to the outside world. This dynamic system pays homage to traditional Thai homes while addressing the modern need for privacy and climate control.


Sustainable Features and Natural Ventilation
Embracing the principles of sustainable architecture, the LP115 House features passive cooling strategies such as cross-ventilation and shading devices. The strategic use of materials and facade design minimizes heat gain, creating comfortable indoor temperatures year-round.






Living with Light: The Dynamic Interior Experience
Inside the LP115 House, natural light plays a crucial role, transforming the interior ambiance throughout the day. At night, the house reverses its appearance, glowing warmly from within and adding a beacon of light to the urban landscape.



Redefining Urban Living
The LP115 House by Junsekino Architect and Design is a prime example of Innovative Urban Home Design, reflecting how creativity and thoughtful planning can lead to comfortable, sustainable living spaces in dense city environments. This project not only provides a functional and aesthetic dwelling for its inhabitants but also contributes to the broader dialogue on urban housing solutions.




All photographs are work of Spaceshift Studio
Popular Articles
Popular articles from the community
The Ken Roberts Memorial Delineation Competition (Krob)
As the most senior architectural drawing competition currently in operation anywhere in the world, it draws hundreds of entries each year, awarding the very best submissions in a series of medium-based categories.
Atelier Macri Concept Store Interior Design by CASE-REAL
Atelier Macri store features a "ko" counter, walnut wood details, cork displays, blending retail, gallery, and seamless customer experiences.
Solar Steam: A Climate-Responsive Architecture That Redefines the Monument
A climate-responsive memorial architecture that transforms heat, decay, and time into a living system reflecting humanity’s ecological impact.
Inverted Architecture Installation by Studio Link-Arc: Exploring the Intersection of Architecture and Living Organisms
Inverted Architecture Installation by Studio Link-Arc blends mycelium, sustainability, inverted design, ecological cycles, and urban adaptive architecture in Shenzhen.
Similar Reads
You might also enjoy these articles
The Ken Roberts Memorial Delineation Competition (Krob)
As the most senior architectural drawing competition currently in operation anywhere in the world, it draws hundreds of entries each year, awarding the very best submissions in a series of medium-based categories.
Waterfront Redevelopment and Urban Revitalization in Mumbai: Forging a New Dawn for Darukhana
A transformative waterfront redevelopment project reimagining Darukhana’s shipbreaking heritage into an inclusive urban future.
OUT-OF-MAP: A Call for Postcards on Feminist Narratives of Public Space
Rhizoma Design and Research Lab invites artists, designers, architects, researchers, and students to reflect on how feminist perspectives can reshape public space. Selected works will be exhibited in Barcelona, October 2026. Submissions open until 15 April 2026.
Documentation Work on Buddhist Wooden Temple
Architectural syncretism and cultural hybridity: A comparative study of the Buddhist temples in Chattogram Hill tracks
Explore Architecture Competitions
Discover active competitions in this discipline
The International Standard for Design Portfolios
The Global Benchmark for Architecture Dissertation Awards
The Global Benchmark for Graduation Excellence
Challenge to reimagine the Iron Throne
Comments (0)
Please login or sign up to add comments
No comments yet. Be the first to comment!