Integrated Hotel Design in East Austin: A Deep Dive into Arrive East Austin Hotel by Baldridge Architects
This article delves into the Arrive East Austin Hotel, highlighting its integration with the local community through thoughtful architectural design.
Urban hotel design is increasingly focused on integrating into local neighbourhoods and serving as a community hub rather than just a place for visitors to stay. The Arrive East Austin Hotel exemplifies this trend, blending seamlessly into the rapidly evolving urban landscape of East Austin, Texas.



Overview of the Arrive East Austin Hotel Project
Historical Context and Location
Located in the heart of East Austin, an area known for its vibrant community and rapid gentrification, the Arrive East Austin Hotel stands as a testament to thoughtful urban integration. This area's transformation from an industrial hub to a bustling urban district provided the perfect backdrop for a hotel design focused on community integration and architectural responsiveness.



Architectural Vision and Design Approach
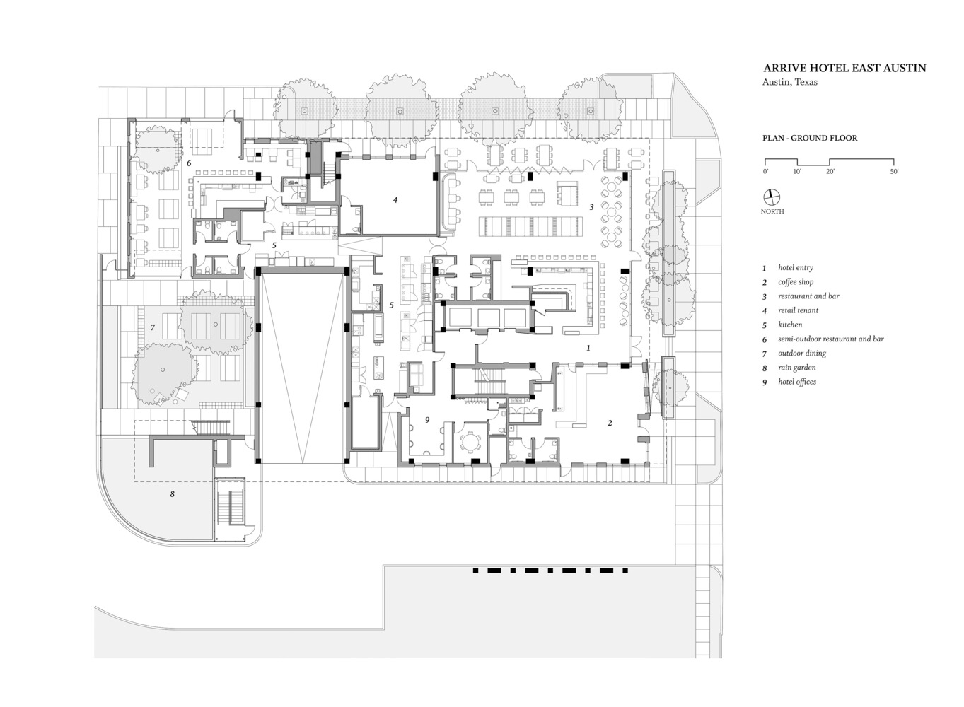
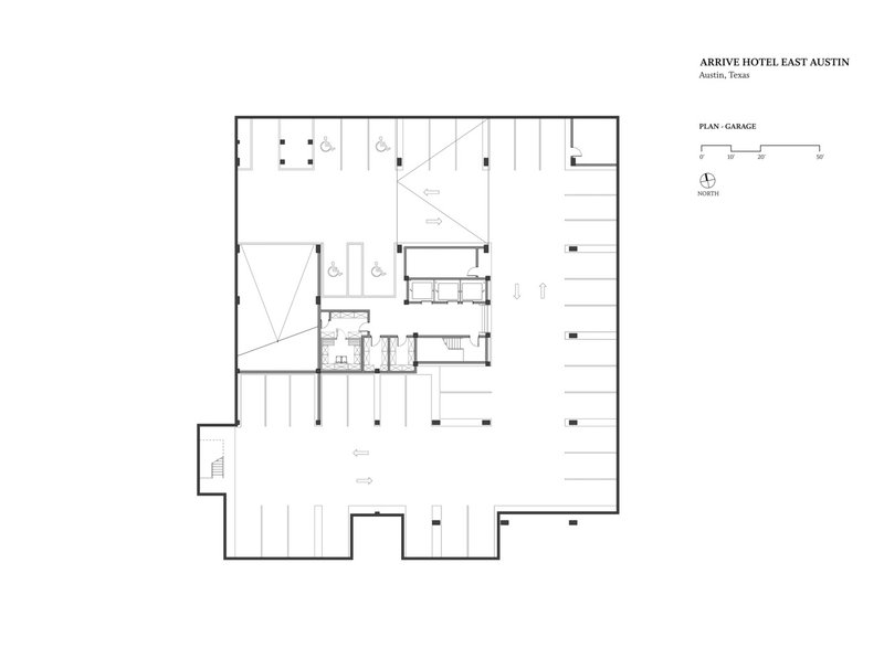
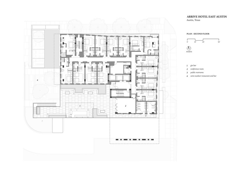
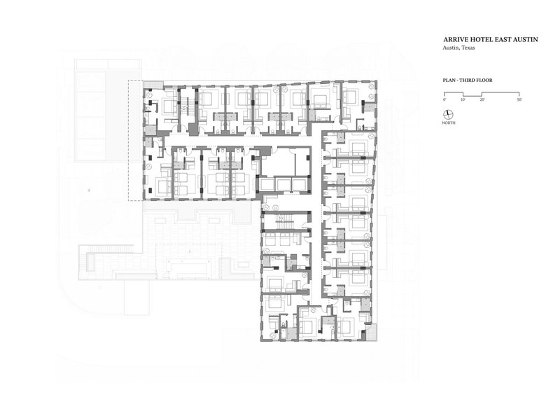
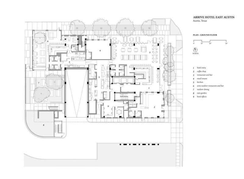
Baldridge Architects designed the Arrive East Austin Hotel with a clear vision of minimizing the traditional, imposing hotel presence and enhancing the public-facing elements. This approach resulted in a structure that prioritizes public amenities like restaurants, bars, and retail spaces, with the hotel rooms subtly positioned above.



Key Features of the Arrive East Austin Hotel Design
Innovative Use of Space and Material
Building and Façade Design
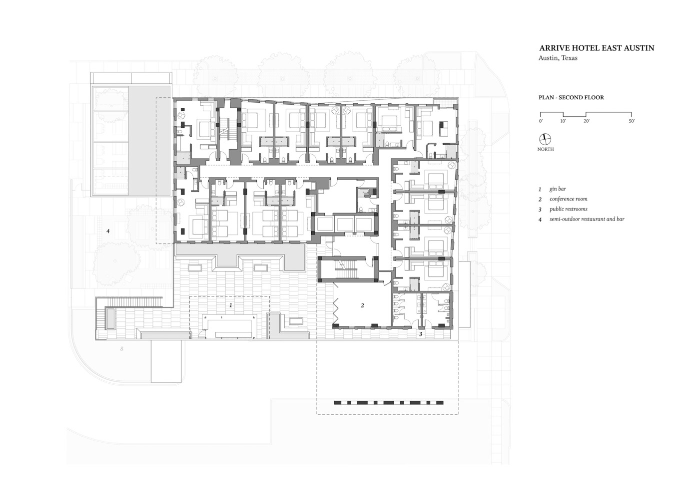
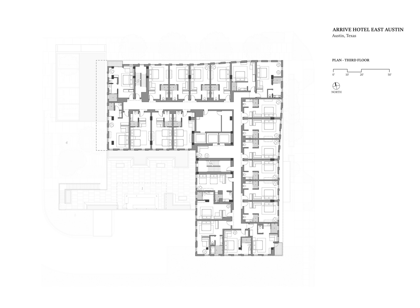
The hotel features an undulating façade that responds dynamically to Austin’s street-side guidelines. This design is not only aesthetically pleasing but also functional, creating balconies and covered porches that enhance the living experience for hotel guests while also contributing to the street's visual interest.




Material Selection
Reflecting the historical context of the area, the use of masonry-infilled concrete structures draws on the local architectural heritage without directly mimicking it. This choice helps the building fit naturally into the neighborhood, respecting its past while contributing to its future.




Community Impact and Engagement
Dual Functionality: Public Spaces and Private Lodging
At street level, the Arrive East Austin Hotel is vibrant and accessible, with multiple eateries and retail spaces that attract not just hotel guests but also local residents. This design philosophy helps to maintain a lively street scene and supports local economic activity.



Long-Term Vision for Community Integration
The hotel’s design and operational philosophy aim to make it a neighborhood landmark and a hub for community engagement. This approach positions the Arrive East Austin Hotel as a model for future developments in urban hotel design, particularly in areas undergoing significant transformation.




Challenges and Opportunities
Navigating Urban Development and Gentrification
While the hotel embraces its role as a part of the East Austin community, it also faces the challenges inherent in any development in a gentrifying area. The design team's commitment to respecting and reflecting the neighborhood’s character in their work is a critical aspect of the project.



The Future of Hotel Design in Urban Areas
The Arrive East Austin Hotel by Baldridge Architects represents a forward-thinking approach to urban hotel design, where integration, community engagement, and architectural innovation converge. As East Austin and similar neighborhoods continue to evolve, projects like this will play a pivotal role in shaping how cities accommodate both visitors and local residents in harmonious, sustainable ways.



All photographs are work of Casey Dunn
Popular Articles
Popular articles from the community
Inverted Architecture Installation by Studio Link-Arc: Exploring the Intersection of Architecture and Living Organisms
Inverted Architecture Installation by Studio Link-Arc blends mycelium, sustainability, inverted design, ecological cycles, and urban adaptive architecture in Shenzhen.
Alton Cliff House: A Harmonious Retreat by f2a Architecture in Lake Country, Canada
Alton Cliff House blends corten steel, prefabrication, and sustainable design, creating a luxurious, energy-efficient retreat perched on Canadian cliffs.
Atelier Macri Concept Store Interior Design by CASE-REAL
Atelier Macri store features a "ko" counter, walnut wood details, cork displays, blending retail, gallery, and seamless customer experiences.
Solar Steam: A Climate-Responsive Architecture That Redefines the Monument
A climate-responsive memorial architecture that transforms heat, decay, and time into a living system reflecting humanity’s ecological impact.
Similar Reads
You might also enjoy these articles
The Ken Roberts Memorial Delineation Competition (Krob)
As the most senior architectural drawing competition currently in operation anywhere in the world, it draws hundreds of entries each year, awarding the very best submissions in a series of medium-based categories.
Waterfront Redevelopment and Urban Revitalization in Mumbai: Forging a New Dawn for Darukhana
A transformative waterfront redevelopment project reimagining Darukhana’s shipbreaking heritage into an inclusive urban future.
OUT-OF-MAP: A Call for Postcards on Feminist Narratives of Public Space
Rhizoma Design and Research Lab invites artists, designers, architects, researchers, and students to reflect on how feminist perspectives can reshape public space. Selected works will be exhibited in Barcelona, October 2026. Submissions open until 15 April 2026.
Documentation Work on Buddhist Wooden Temple
Architectural syncretism and cultural hybridity: A comparative study of the Buddhist temples in Chattogram Hill tracks
Explore Architecture Competitions
Discover active competitions in this discipline
The International Standard for Design Portfolios
The Global Benchmark for Architecture Dissertation Awards
The Global Benchmark for Graduation Excellence
Challenge to reimagine the Iron Throne
Comments (0)
Please login or sign up to add comments
No comments yet. Be the first to comment!