Introduction to Eco-Friendly Crematorium Design
This article explores the eco-friendly design and cultural integration of Crematorium PAX in Den Haag, designed by Queeste Architects.
Eco-friendly crematorium design focuses on minimizing environmental impact while providing a dignified space for final farewells. Crematorium PAX, designed by Queeste Architects in Den Haag, Netherlands, exemplifies sustainable practices in this sensitive architectural genre.

Overview of Crematorium PAX
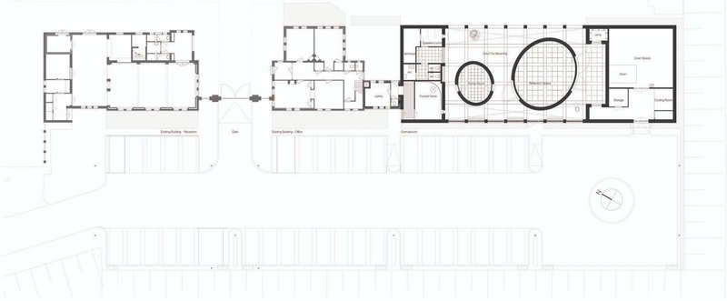
Crematorium PAX spans 525 m² and was completed in 2023. The project combines traditional design elements with modern sustainability standards to create a facility that respects both cultural heritage and environmental responsibility.

Architectural Design and Cultural Significance
Integrating with Historical Context
The design of Crematorium PAX complements the existing cemetery structures from 1922, incorporating masonry and natural stone that harmonize with the historical setting. The facility is situated to reinvigorate the cemetery’s presence alongside the newly constructed Victory Boogie Woogie tunnel.

Symbolic Elements
The design incorporates significant cultural symbols such as the natural stone arcade inscribed with "Laudato Si" and other elements representing heaven, water, fire, and earth. These design choices underscore the facility’s role in providing a contemplative and respectful environment for mourning.

Sustainable Features and Construction
Materials and Construction Techniques
Crematorium PAX utilizes sustainable materials like wood, natural stone, and masonry. The facility is also noted for its gas-free operations, relying on an electric oven, which is a significant step towards reducing the carbon footprint of cremation processes.

Energy Efficiency and Environmental Integration
- PV Panels: Solar panels on the glass roofs improve the building’s energy efficiency.
- Biodiversity Measures: The inclusion of nesting boxes and insect hotels enhances local biodiversity, turning the facility into a sanctuary for local wildlife.
- Water Management: Rainwater is managed sustainably through retention roofs and permeable paving in the parking lot, emphasizing the project's ecological considerations.


Interior Design and Artistic Details
Rich Materials and Artistic Integration
The interior features rich materials requested by the local Sinti and Roma communities, including natural stone with gold-colored details and wood elements with a clear coat finish. This not only adds a level of dignity to the spaces but also reflects the cultural importance of the site.

Symbolic Artwork
The crematorium's towers are adorned with natural stone shards, with 99 pieces gilded, symbolizing a connection to spiritual traditions and the continuity of memory.


Crematorium PAX by Queeste Architects represents a pioneering approach in eco-friendly crematorium design, blending environmental sustainability with deep cultural respect and innovative architectural solutions. This project sets a new standard for how end-of-life facilities can operate in harmony with their surroundings and serve as a place of peace and remembrance while advancing sustainable practices.



All photographs are work of Piet Gispen
Popular Articles
Popular articles from the community
Solar Steam: A Climate-Responsive Architecture That Redefines the Monument
A climate-responsive memorial architecture that transforms heat, decay, and time into a living system reflecting humanity’s ecological impact.
On the Brooks House by Monsoon Collective – A Contemporary Kerala Home Rooted in Tradition
Kerala home blending tradition and modernity with water-inspired design, brick architecture, courtyard planning, and sustainable rainwater harvesting strategies.
The Ken Roberts Memorial Delineation Competition (Krob)
As the most senior architectural drawing competition currently in operation anywhere in the world, it draws hundreds of entries each year, awarding the very best submissions in a series of medium-based categories.
Atelier Macri Concept Store Interior Design by CASE-REAL
Atelier Macri store features a "ko" counter, walnut wood details, cork displays, blending retail, gallery, and seamless customer experiences.
Similar Reads
You might also enjoy these articles
The Ken Roberts Memorial Delineation Competition (Krob)
As the most senior architectural drawing competition currently in operation anywhere in the world, it draws hundreds of entries each year, awarding the very best submissions in a series of medium-based categories.
Waterfront Redevelopment and Urban Revitalization in Mumbai: Forging a New Dawn for Darukhana
A transformative waterfront redevelopment project reimagining Darukhana’s shipbreaking heritage into an inclusive urban future.
OUT-OF-MAP: A Call for Postcards on Feminist Narratives of Public Space
Rhizoma Design and Research Lab invites artists, designers, architects, researchers, and students to reflect on how feminist perspectives can reshape public space. Selected works will be exhibited in Barcelona, October 2026. Submissions open until 15 April 2026.
Documentation Work on Buddhist Wooden Temple
Architectural syncretism and cultural hybridity: A comparative study of the Buddhist temples in Chattogram Hill tracks
Explore Architecture Competitions
Discover active competitions in this discipline
The International Standard for Design Portfolios
The Global Benchmark for Architecture Dissertation Awards
The Global Benchmark for Graduation Excellence
Challenge to reimagine the Iron Throne
Comments (0)
Please login or sign up to add comments
No comments yet. Be the first to comment!