Island Retreat Architecture: A Masterpiece by Atelier Oslo
The article showcases Atelier Oslo's House on an Island, an architectural masterpiece integrating with Norway's landscape, emphasizing serene, contemplative living.
Island retreat architecture combines natural beauty with innovative design to create serene and inspiring living spaces. A prime example of this unique architectural style is the House on an Island designed by Atelier Oslo. Situated on the rugged south coast of Norway, this 70 m² masterpiece stands as a testament to thoughtful integration with nature and minimalist design.



Design Philosophy of Atelier Oslo's Island Retreat
The House on an Island exemplifies the core principles of island retreat architecture: harmony with the landscape, minimal environmental impact, and spaces that promote contemplation and creativity. Built for two artists, the house serves as a sanctuary for work and reflection, embracing the serene and isolated atmosphere of the island.


Integration with the Natural Environment
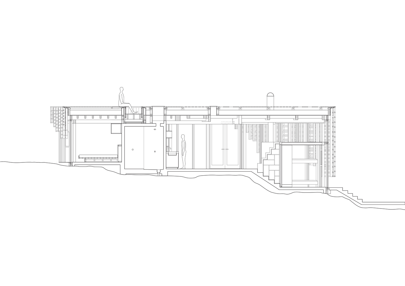
One of the most striking features of this island retreat is its seamless integration with the surrounding landscape. The architects meticulously measured the site's topography to incorporate the smooth, curved rocks leading down to the ocean into the design. This approach blurs the lines between the indoors and outdoors, allowing the inhabitants to feel intimately connected with the natural environment.


The Architectural Journey: From Entrance to Interior
Entering the House on an Island is a unique experience designed to transition visitors from the mainland mindset to island tranquility. The entrance, located on the building's backside, is approached by walking along a small hill, leading to a stairway that pierces through the structure, emerging at the front side facing the sea. This deliberate sequence prepares one for life on the island, marking a clear division from the outside world.


Utilizing Materials to Complement the Landscape
The construction materials were chosen for their natural qualities and ability to blend with the island's color palette. The concrete floors, varying in level, harmonize with the island's main topographical features, creating diverse outdoor spaces and extending the living area beyond the house's interior. The use of Kebony wood, known for its durability and maintenance-free aging process, ensures the structure gracefully weathers over time, further merging with its surroundings.



The Essence of Light and Space
A significant element of island retreat architecture is the manipulation of light and space to enhance the living experience. Atelier Oslo's design features a prefabricated timber structure covered by a light wood framework that filters sunlight, casting dynamic shadows and creating a tranquil atmosphere reminiscent of sitting beneath a tree canopy. This interplay between light and structure emphasizes the calm and introspective nature of island living.






A Benchmark in Island Retreat Architecture
The House on an Island by Atelier Oslo is more than just a residence; it's a landmark in island retreat architecture, representing a profound connection between human habitation and the wild, untamed beauty of nature. This project serves as a benchmark for architects and designers seeking to create spaces that offer retreat, inspiration, and a deep bond with the environment.


All photographs are work of Ivar Kvaal, Nils Vik/D2, Charlotte Thiis-Evensen
Popular Articles
Popular articles from the community
Split House: A Compact Urban Home Blending Privacy, Light, and Flexible Living in Japan
Compact Japanese home featuring DOMA space, flexible café potential, passive lighting, privacy zoning, and sustainable urban living design.
Filtering Space: A Gradual Spatial Experience
From urban intensity to spatial calm.
20 Most Popular Commercial Architecture Projects of 2025
From sustainable market concepts to heritage factories, the commercial buildings and proposals that drew the most attention on uni.xyz this year.
Similar Reads
You might also enjoy these articles
Filtering Space: A Gradual Spatial Experience
From urban intensity to spatial calm.
The Ken Roberts Memorial Delineation Competition (Krob)
As the most senior architectural drawing competition currently in operation anywhere in the world, it draws hundreds of entries each year, awarding the very best submissions in a series of medium-based categories.
Waterfront Redevelopment and Urban Revitalization in Mumbai: Forging a New Dawn for Darukhana
A transformative waterfront redevelopment project reimagining Darukhana’s shipbreaking heritage into an inclusive urban future.
OUT-OF-MAP: A Call for Postcards on Feminist Narratives of Public Space
Rhizoma Design and Research Lab invites artists, designers, architects, researchers, and students to reflect on how feminist perspectives can reshape public space. Selected works will be exhibited in Barcelona, October 2026. Submissions open until 15 April 2026.
Explore Architecture Competitions
Discover active competitions in this discipline
The International Standard for Design Portfolios
The Global Benchmark for Architecture Dissertation Awards
The Global Benchmark for Graduation Excellence
Challenge to reimagine the Iron Throne
Comments (0)
Please login or sign up to add comments
No comments yet. Be the first to comment!