Kiln Tower for the Brickworks Museum : Museum & Industrial Architecture by Boltshauser Architekten
An experimental prestressed rammed-earth tower in Cham reactivates brickmaking heritage while advancing sustainable construction and contemporary material research.
The Kiln Tower for the Brickworks Museum, designed by Boltshauser Architekten, stands as an experimental and didactic structure within one of Switzerland’s most significant industrial heritage sites. Located in Cham, the project extends the life of the country’s only intact handmade brickworks in the German-speaking region, while simultaneously advancing contemporary research into earth construction.


Rather than reproducing historical forms, the tower reinterprets the logic of brick production through material innovation, making the building itself an exhibit—one that bridges craft, engineering, and sustainability.

An Architectural Addition to a Historic Ensemble
The Brickworks Museum complex comprises a timber drying shed, a historic kiln no longer in operation, the biotope of a former clay pit, residential buildings, and a museum structure replacing a burned-down barn. Within this listed ensemble, the new kiln tower establishes a vertical landmark, carefully positioned to complement the existing fabric without overpowering it.

Originally conceived during a design studio at TU Munich, the project evolved from a full-scale mock-up developed at the Sitterwerk. The realized structure is the world’s first prestressed rammed-earth building, marking a decisive step forward in earthen construction.


Earth as Structure, Earth as Exhibit
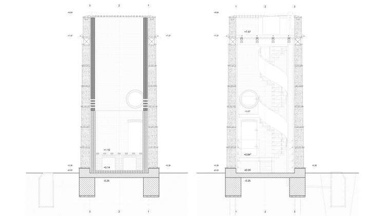
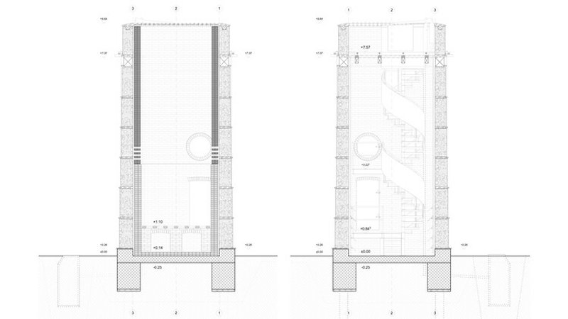
Unlike conventional brick architecture, the kiln tower presents clay in its unfired state, celebrating earth as a primary construction material. The rammed-earth walls are assembled from prefabricated elements, whose joints remain visible rather than concealed. These seams, crossed by exposed prestressing bars, become a defining architectural feature—revealing the building’s method of assembly and structural logic.

The result is a powerful contrast between the mass and solidity of earth and the lightness of tensile steel, transforming structural necessity into architectural expression.


Prestressing as Innovation
A key innovation of the project lies in its prestressing system, which dramatically increases the structural capacity of rammed earth. Earth excels under compression but performs poorly under tension; by introducing steel tension rods, the building achieves enhanced stability and resistance to seismic forces.

This hybrid system demonstrates how traditional materials can be reactivated through contemporary engineering. Timber base plates are integrated directly into the wall structure, protected by carefully detailed weather drips that prevent erosion while clearly articulating the joint between elements.


Spatial Experience and Program
Inside the tower, the exhibition room and kiln are capped by a solid timber ceiling, reinforcing the sense of weight and enclosure. Narrow light slits at the wall joints admit daylight, allowing visitors to perceive the full thickness and texture of the rammed-earth walls. Steel frames attached to the prestressing elements support exhibition panels, ensuring flexibility without additional structural intervention.

A steel spiral staircase leads upward to an approximately eight-meter-high viewing platform. From this elevated point, visitors gain a comprehensive overview of the historic brickworks landscape, reinforcing the educational mission of the museum.


Sustainability Through Material Research
Beyond its architectural presence, the kiln tower functions as a research prototype. The project is scientifically monitored to better understand the long-term behavior of prestressed rammed earth. This research addresses a critical environmental challenge: Switzerland excavates more than sixty million tons of earth annually, most of which is discarded.


By repurposing this abundant material for construction, projects like the kiln tower offer a viable alternative to energy-intensive materials such as concrete and fired brick. Compared to conventional building methods, rammed-earth construction can reduce embodied energy by up to forty percent, positioning earth as a key material in the transition toward more sustainable architecture.


A Contemporary Monument to Making
The Kiln Tower for the Brickworks Museum is both infrastructure and manifesto. It honors the site’s industrial heritage while pointing toward a future in which architecture reengages with local materials, visible construction processes, and ecological responsibility. In doing so, it transforms a modest 60-square-meter structure into a globally significant contribution to architectural discourse.


All the Photographs are works of Kuster Frey
Popular Articles
Popular articles from the community
Alton Cliff House: A Harmonious Retreat by f2a Architecture in Lake Country, Canada
Alton Cliff House blends corten steel, prefabrication, and sustainable design, creating a luxurious, energy-efficient retreat perched on Canadian cliffs.
Inverted Architecture Installation by Studio Link-Arc: Exploring the Intersection of Architecture and Living Organisms
Inverted Architecture Installation by Studio Link-Arc blends mycelium, sustainability, inverted design, ecological cycles, and urban adaptive architecture in Shenzhen.
Free Architecture Competitions You Can Enter Right Now
No entry fees, real prizes. Here are the best free architecture competitions open for submissions in 2026.
Similar Reads
You might also enjoy these articles
The Ken Roberts Memorial Delineation Competition (Krob)
As the most senior architectural drawing competition currently in operation anywhere in the world, it draws hundreds of entries each year, awarding the very best submissions in a series of medium-based categories.
Waterfront Redevelopment and Urban Revitalization in Mumbai: Forging a New Dawn for Darukhana
A transformative waterfront redevelopment project reimagining Darukhana’s shipbreaking heritage into an inclusive urban future.
OUT-OF-MAP: A Call for Postcards on Feminist Narratives of Public Space
Rhizoma Design and Research Lab invites artists, designers, architects, researchers, and students to reflect on how feminist perspectives can reshape public space. Selected works will be exhibited in Barcelona, October 2026. Submissions open until 15 April 2026.
Documentation Work on Buddhist Wooden Temple
Architectural syncretism and cultural hybridity: A comparative study of the Buddhist temples in Chattogram Hill tracks
Explore Architecture Competitions
Discover active competitions in this discipline
The International Standard for Design Portfolios
The Global Benchmark for Architecture Dissertation Awards
The Global Benchmark for Graduation Excellence
Challenge to reimagine the Iron Throne
Comments (0)
Please login or sign up to add comments
No comments yet. Be the first to comment!