Kirigami House Architecture: A Modern Fusion of Privacy, Light, and Nature
The article explores Kirigami House architecture, blending privacy, natural light, and innovative design inspired by Japanese kirigami art
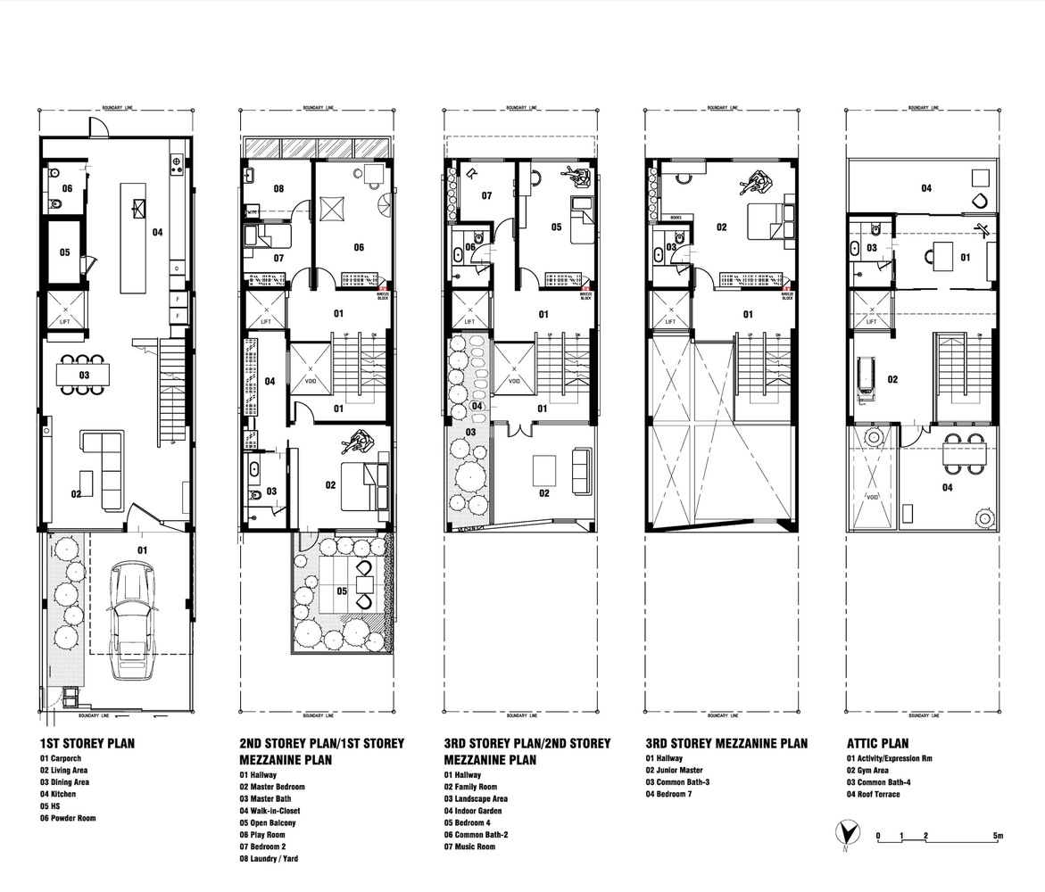
Kirigami House, designed by The Carpenter's Workshop in 2022, is a remarkable example of contemporary residential architecture that masterfully integrates natural light, ventilation, privacy, and aesthetic beauty. Drawing inspiration from the Japanese art of kirigami, which involves intricate paper-cut designs, the house features a unique façade and an innovative layout that caters to both functionality and visual appeal. This article explores the architectural features that make the Kirigami House an exemplary work of design.

The Concept Behind Kirigami House Architecture
The Art of Kirigami: A Design Inspiration
Kirigami, a variation of origami, involves cutting and folding paper to create three-dimensional shapes. The architects at The Carpenter's Workshop applied this concept to the building’s exterior, creating an angular, folded façade that mimics the delicate precision of kirigami art. The design serves multiple purposes: enhancing privacy, maximizing natural light, and allowing for effective ventilation. This is achieved by carefully placed openings and folds, which play a key role in the architectural concept.
Privacy Meets Light: The Facade Design
The façade of Kirigami House is a statement in itself. The folded, paper-like structure houses a long window on the right, which maximizes light and air circulation without compromising privacy. On the left side, a series of square openings of varying sizes allow for daylight during the day while transforming into an illuminated display at night. This combination of privacy and illumination is a perfect example of how modern architecture can blend aesthetic appeal with functional needs.


Interior Design: Expansive, Functional, and Stylish
High Ceilings and Spaciousness
Upon entering Kirigami House, visitors are greeted by high ceilings that give the space an expansive, airy feel. The use of large, congruent tiles in the living, dining, and kitchen areas enhances the visual flow, creating a seamless connection between spaces. The choice of textures, colors, and materials in the interior design adds to the home's sophisticated ambiance.
Contrasting Elements: Light and Dark in the Kitchen
One of the striking features of the interior design is the contrast between the living and kitchen areas. The kitchen is marked by a lowered wooden ceiling and dark-colored materials, creating a more intimate atmosphere. The textured granite used for the backsplash and kitchen island adds a tactile dimension, making the kitchen a central hub for family gatherings and entertaining guests.
The Role of Antique European Lights
A textured white wall near the entrance serves as a backdrop for a collection of antique European lights, creating a statement feature that draws attention. These lighting elements bring a touch of classic elegance to the otherwise contemporary design, bridging the gap between old and new.


The Role of Natural Ventilation and Airflow
Breeze Blocks: Enhancing Air Circulation
One of the standout features of Kirigami House is the emphasis on natural ventilation. The rear of the house incorporates breeze blocks, which are strategically placed to improve airflow throughout the home. This architectural detail not only serves a functional purpose but also adds a textural contrast to the smooth surfaces of the building’s façade and interiors.
The Master Bedroom: A Private Retreat
The master bedroom in Kirigami House opens onto a landscaped terrace that offers a private retreat, screened from the road. A horizontal window at bed height frames a beautiful garden view, allowing for both ventilation and privacy. The combination of natural materials and thoughtful window placement enhances the peaceful, serene environment of the bedroom.


Communal Spaces: A Fusion of Nature and Architecture
Indoor Garden and Family Room
On the third level, Kirigami House features an indoor garden that seamlessly integrates with the family room. Full glass panels on two sides of the room create a connection to the natural environment, allowing residents to enjoy the beauty of nature while inside. This fusion of indoor and outdoor spaces maximizes natural light and airflow, improving the overall living experience.
Kirigami-Inspired Staircase: Filtering Natural Light
The design of the staircase also draws inspiration from the kirigami concept. The staircase filters natural light between levels, enhancing the flow of light throughout the house and creating a visual connection between different areas. This thoughtful design element contributes to the home’s overall sense of openness and tranquility.


Balancing Privacy and Communal Spaces
Flexible Use of Airflow and Air Conditioning
Kirigami House is designed to offer a balance between private and communal spaces. To ensure comfort and flexibility, the design incorporates flip doors behind the breeze blocks in the bedrooms. These doors can be adjusted to control natural ventilation or air conditioning, providing optimal comfort in all seasons.


A Harmonious Blend of Tradition and Modernity
Kirigami House represents a perfect marriage of traditional Japanese art and modern architectural design. The careful consideration of natural light, ventilation, privacy, and communal spaces makes this house not just a living space, but a work of art. With its unique façade, thoughtful use of materials, and innovative design solutions, Kirigami House is a standout example of how architecture can respond to both functional needs and aesthetic desires.
By embracing both the philosophical principles of kirigami and cutting-edge design techniques, The Carpenter's Workshop has created a home that is as beautiful as it is functional, proving that modern architecture can be both sustainable and inspiring.

All photographs are work of The Carpenter's Workshop
Popular Articles
Popular articles from the community
A Park Building That Wants to Be a Landscape
Omrania's Operations & Maintenance Building at King Salman Park dissolves industrial program into Riyadh's largest green infrastructure.
Bood Design Bureau Splits a Gilan Residence in Two to Let the Forest In
Double Side House negotiates privacy and openness through interlocking concrete volumes and planted courtyards in northern Iran's humid Caspian lowlands.
20 Most Popular Commercial Architecture Projects of 2025
From sustainable market concepts to heritage factories, the commercial buildings and proposals that drew the most attention on uni.xyz this year.
Filtering Space: A Gradual Spatial Experience
From urban intensity to spatial calm.
Similar Reads
You might also enjoy these articles
Filtering Space: A Gradual Spatial Experience
From urban intensity to spatial calm.
The Ken Roberts Memorial Delineation Competition (Krob)
As the most senior architectural drawing competition currently in operation anywhere in the world, it draws hundreds of entries each year, awarding the very best submissions in a series of medium-based categories.
Waterfront Redevelopment and Urban Revitalization in Mumbai: Forging a New Dawn for Darukhana
A transformative waterfront redevelopment project reimagining Darukhana’s shipbreaking heritage into an inclusive urban future.
OUT-OF-MAP: A Call for Postcards on Feminist Narratives of Public Space
Rhizoma Design and Research Lab invites artists, designers, architects, researchers, and students to reflect on how feminist perspectives can reshape public space. Selected works will be exhibited in Barcelona, October 2026. Submissions open until 15 April 2026.
Explore Architecture Competitions
Discover active competitions in this discipline
The International Standard for Design Portfolios
The Global Benchmark for Architecture Dissertation Awards
The Global Benchmark for Graduation Excellence
Challenge to reimagine the Iron Throne
Comments (0)
Please login or sign up to add comments
No comments yet. Be the first to comment!