KITO Yamanashi Head Office: Architecture Rooted in Landscape, Climate, and Energy Cycles By Takenaka Corporation
A zero-energy headquarters in Yamanashi inspired by grape trellises, integrating groundwater, sunlight, and climate-responsive design into a sustainable workplace.
Nestled within the expansive inland basin of Yamanashi Prefecture, the KITO Yamanashi Head Office represents a synthesis of regional landscape, environmental intelligence, and contemporary workplace architecture. Designed by Takenaka Corporation, the new headquarters for KITO—a global leader in material handling equipment such as hoists and chain hoists—serves not only as an administrative and showroom hub, but also as a demonstrative model of how architecture can actively generate energy, visualize environmental processes, and remain deeply rooted in local context.

Completed in 2023, the 2,435-square-meter building draws conceptual and technical inspiration from one of Yamanashi’s most defining cultural landscapes: grapevine trellises. These structures, woven across the region’s fields for centuries, are not merely agricultural devices but sophisticated environmental systems that regulate sunlight, airflow, and humidity. By translating this vernacular logic into architectural form, the project reimagines the workplace as a living system responsive to climate, water, and energy.


Landscape as Architectural Generator
Yamanashi is surrounded by iconic mountains, including Mount Fuji, and is characterized by long hours of sunshine, low annual rainfall, significant diurnal temperature differences, and abundant groundwater flowing from surrounding highlands. These conditions have shaped both agriculture and settlement patterns for generations. Rather than resisting these environmental forces, the KITO headquarters embraces them as design drivers.

The building’s low-rise form sits calmly within its mountainous setting, avoiding visual dominance while framing views of the surrounding landscape. From the outset, the architecture was conceived not as an isolated object, but as a continuation of Yamanashi’s ecological systems—air, water, sunlight, and terrain.


The Grape Trellis as Spatial and Environmental Concept
At the heart of the design lies the metaphor of the grape trellis, reinterpreted through structure, envelope, and spatial organization. In traditional vineyards, trellises lift grapevines off the ground, allowing air to circulate, sunlight to filter through, and moisture to dissipate—creating ideal growing conditions. These same principles guide the headquarters’ environmental strategy.

An expanded metal ceiling system, visible both inside and out, functions as a contemporary trellis. It provides solar shading, encourages natural ventilation, and creates visual continuity between interior and exterior spaces. Light filters through this semi-transparent layer, producing dynamic patterns that shift throughout the day and seasons, reinforcing a constant awareness of time and climate within the workplace.

Architecture That Generates Energy
Beyond responding to the environment, the building is designed to produce more energy than it consumes, achieving the status of a zero-energy building (ZEB). This ambition is realized through a combination of passive design strategies and renewable energy systems carefully adapted to local conditions.

Solar radiation is controlled by deep eaves and the expanded metal screens, reducing heat gain during summer while allowing lower winter sun to penetrate the interiors. Photovoltaic systems harness Yamanashi’s abundant daylight, generating electricity that offsets operational energy demands.
The building’s energy systems are not concealed but deliberately expressed. By visualizing energy generation and consumption, the architecture becomes an educational tool—raising environmental awareness among employees and visitors alike, and reinforcing KITO’s commitment to sustainability and innovation.


Groundwater and the Local Water Cycle
Water plays a central role in both the region’s ecology and the building’s environmental systems. Yamanashi’s groundwater, fed by surrounding mountains, has long supported agriculture, industry, and daily life. The headquarters integrates itself into this local water cycle, adopting a philosophy of “local production for local consumption.”


Groundwater is drawn from on-site wells and used as the primary medium for radiant air-conditioning, leveraging the stable temperatures of subterranean water for efficient heating and cooling. After serving this function, the water is reused in a cascading system for evaporative cooling, indoor environmental enhancement, and light modulation through reflective basins.


Only after these multiple uses is the water returned to the nearby river, ensuring minimal waste and maximum ecological integration. This cascading approach mirrors natural hydrological cycles, allowing the building to function as an active participant in the regional water system rather than a passive consumer.


Interior Spaces and Workplace Culture
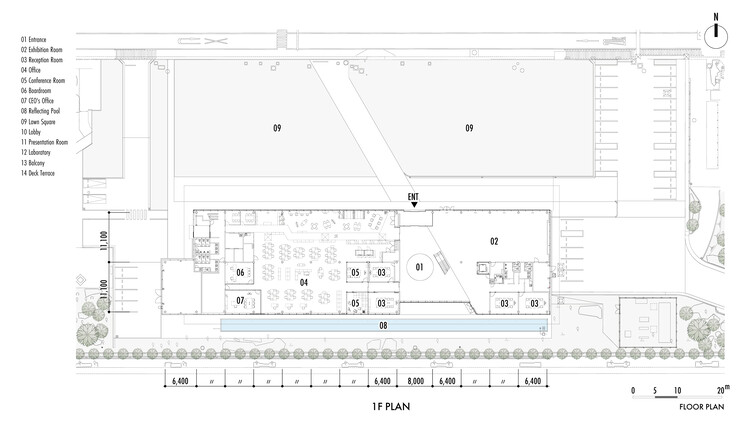
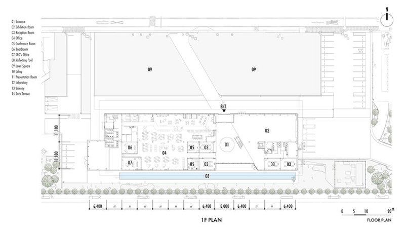
As the core facility of KITO’s factory site, the headquarters accommodates administrative offices, collaborative workspaces, and a showroom that welcomes visitors from within and beyond the company. The interior architecture prioritizes openness, communication, and environmental comfort.


Ceiling heights, material transparency, and filtered daylight contribute to a workspace that feels both expansive and human-scaled. The expanded metal ceiling extends indoors, reinforcing continuity between exterior climate and interior activity. Natural ventilation is regulated by environmental sensors that respond to temperature, humidity, and airflow—ensuring comfort while minimizing mechanical intervention.
Shared spaces are positioned to encourage informal interaction, while visual connections across floors and zones foster a sense of collective identity. The building thus supports not only operational efficiency but also a workplace culture rooted in openness, environmental consciousness, and connection to place.


Environmental Architecture as Cultural Expression
What distinguishes the KITO Yamanashi Head Office is its ability to transform regional wisdom into architectural performance. The grape trellis—an everyday agricultural structure—is elevated into a conceptual framework that informs spatial experience, structural logic, and environmental strategy.

This approach reflects a broader philosophy of Japanese environmental architecture, where technological innovation and vernacular knowledge coexist rather than compete. By grounding advanced systems in familiar local references, the building feels intuitive and accessible, even as it operates at a high level of technical sophistication.

A Building Embedded in Natural Systems
Ultimately, the headquarters is not designed as a closed, self-contained object but as an open system embedded within natural cycles. Air moves through it, water passes through it, light shapes it, and energy flows in and out of it. The architecture makes these processes visible, reminding occupants that buildings are inseparable from the environments they inhabit.
In doing so, the KITO Yamanashi Head Office offers a compelling model for future industrial and office architecture—one where sustainability is not an added feature, but the organizing principle; where regional identity informs global innovation; and where architecture actively participates in the ecological life of its site.
All the Photographs are works of Blue Hours_Hiroyuki Oki
Popular Articles
Popular articles from the community
Free Architecture Competitions You Can Enter Right Now
No entry fees, real prizes. Here are the best free architecture competitions open for submissions in 2026.
Solar Steam: A Climate-Responsive Architecture That Redefines the Monument
A climate-responsive memorial architecture that transforms heat, decay, and time into a living system reflecting humanity’s ecological impact.
The Ken Roberts Memorial Delineation Competition (Krob)
As the most senior architectural drawing competition currently in operation anywhere in the world, it draws hundreds of entries each year, awarding the very best submissions in a series of medium-based categories.
Split House: A Compact Urban Home Blending Privacy, Light, and Flexible Living in Japan
Compact Japanese home featuring DOMA space, flexible café potential, passive lighting, privacy zoning, and sustainable urban living design.
Similar Reads
You might also enjoy these articles
The Ken Roberts Memorial Delineation Competition (Krob)
As the most senior architectural drawing competition currently in operation anywhere in the world, it draws hundreds of entries each year, awarding the very best submissions in a series of medium-based categories.
Waterfront Redevelopment and Urban Revitalization in Mumbai: Forging a New Dawn for Darukhana
A transformative waterfront redevelopment project reimagining Darukhana’s shipbreaking heritage into an inclusive urban future.
OUT-OF-MAP: A Call for Postcards on Feminist Narratives of Public Space
Rhizoma Design and Research Lab invites artists, designers, architects, researchers, and students to reflect on how feminist perspectives can reshape public space. Selected works will be exhibited in Barcelona, October 2026. Submissions open until 15 April 2026.
Documentation Work on Buddhist Wooden Temple
Architectural syncretism and cultural hybridity: A comparative study of the Buddhist temples in Chattogram Hill tracks
Explore Office Building Competitions
Discover active competitions in this discipline
The International Standard for Design Portfolios
The Global Benchmark for Architecture Dissertation Awards
The Global Benchmark for Graduation Excellence
Challenge to reimagine the Iron Throne
Comments (0)
Please login or sign up to add comments
No comments yet. Be the first to comment!