Kushtia Neighborhood Mosque: A Model of Sustainable Mosque Architecture by Ahsan Habib + Chinton Architects
This article explores the Kushtia Neighborhood Mosque’s sustainable design, showcasing its climate-responsive features and community-driven approach to religious architecture.
Integrating Tradition and Sustainability in Mosque Architecture
The Kushtia Neighborhood Mosque, designed by Ahsan Habib + Chinton Architects, stands as a testament to sustainable mosque architecture. Located in Kushtia, Bangladesh, this 5,200-square-foot mosque is deeply rooted in the region’s cultural and environmental context. Designed with climate-conscious strategies, locally sourced materials, and an emphasis on functional simplicity, the mosque redefines how architecture can serve both spiritual and ecological needs. By integrating traditional craftsmanship with modern sustainability practices, the architects have created a space that embodies peace, comfort, and connection to nature.




The Role of Landscape in Mosque Architecture
In Bangladesh, the landscape is inseparably linked with architectural identity. The region’s alluvial soil, lush vegetation, and river networks have historically influenced built structures. This mosque follows a design philosophy where the land dictates the form rather than imposing rigid structures upon it. Instead of standing apart from its surroundings, the mosque emerges organically from the terrain, embracing a harmony between the built environment and nature.



The connection to the land is further reinforced through the use of local materials and construction techniques. In contrast to grandiose architectural traditions, the Kushtia Neighborhood Mosque maintains a humble presence, prioritizing environmental sensitivity over ornamentation. This approach ensures that the structure remains in dialogue with its surroundings, blending seamlessly into the natural and cultural fabric of the area.



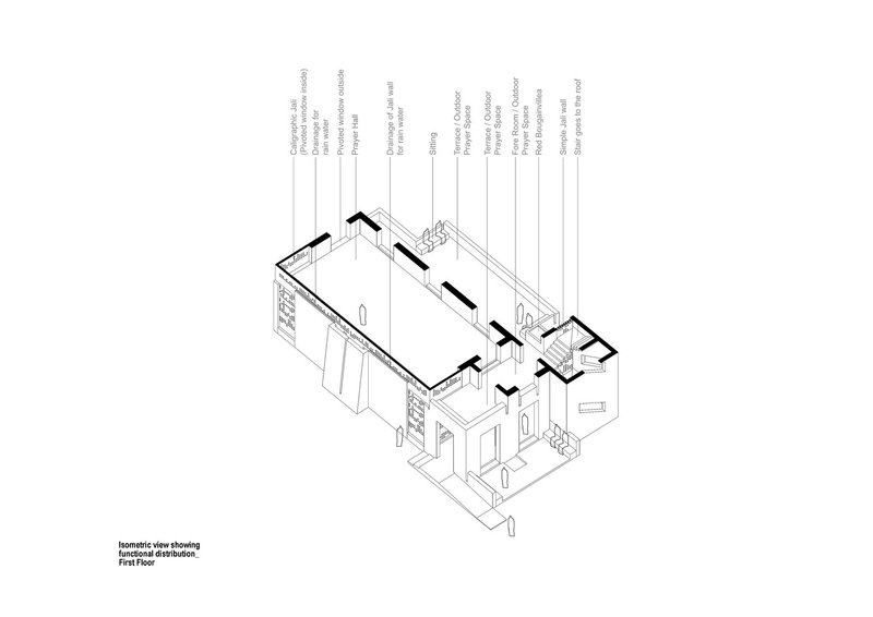
The "Between Space": A Sanctuary of Reflection
One of the defining elements of this mosque’s architecture is the "between space"—an area that functions as both a threshold and a retreat. This shaded sanctuary serves as a space for worshippers to rest, reflect, and engage in quiet conversations. Designed to be naturally ventilated and responsive to seasonal changes, the between space fosters a serene atmosphere where spirituality and community coexist.


During the summer, the shaded area provides respite from the heat, while in winter, the soft morning light gently illuminates the space. This transitional area exemplifies how sustainable mosque architecture can enhance the spiritual experience while maintaining climatic comfort.


Climate-Conscious Architectural Strategies
In an era where climate change poses significant challenges, the Kushtia Neighborhood Mosque stands as an example of architecture that aligns human activity with ecological balance. The facade serves as a large ventilator, allowing natural airflow to regulate indoor temperatures. This passive cooling system reduces the need for mechanical ventilation, lowering energy consumption and creating a healthier environment for worshippers.



Strategic placement of perforations in the building envelope allows dappled light to filter in, casting delicate patterns on the floor while minimizing heat gain. The cavity wall construction enhances thermal insulation, keeping the mosque cool in summer and warm in winter. These features demonstrate how architectural design can respond to environmental challenges without compromising functionality or aesthetic appeal.



Material Selection: Blurring the Boundary Between Indoors and Outdoors
The choice of materials reflects a deep commitment to sustainability. Locally sourced brick, reinforced concrete (RCC), mahogany wood, and glass form the primary structural elements. The use of a cavity wall system enhances thermal efficiency, reducing reliance on artificial heating and cooling.


This mosque’s architecture blurs the line between indoor and outdoor spaces, allowing worshippers to feel connected to nature even when inside. The incorporation of natural ventilation, sunlight modulation, and indigenous materials creates a seamless transition between the built environment and the surrounding landscape.

Cost-Effective and Community-Centered Construction
Budgetary constraints played a significant role in shaping the project’s approach. With limited funds available, the architects prioritized cost-efficient solutions that maintained the integrity of the design. All materials were procured from local markets, reducing transportation costs and supporting the regional economy. Additionally, construction workers were hired from the local community, ensuring that the mosque was built with a deep understanding of traditional craftsmanship and cultural nuances.


This emphasis on affordability without compromising design quality makes the Kushtia Neighborhood Mosque a model for sustainable mosque architecture in developing regions. By maximizing local resources and labor, the project demonstrates how low-cost construction can still achieve high architectural and environmental standards.


Creating an Atmosphere of Peace and Spirituality
Beyond its technical aspects, the mosque’s architecture embodies a sense of peace. Thoughtful design choices, such as the play of light and shadow, natural airflow, and open communal spaces, contribute to an environment that fosters contemplation and unity. The architecture does not merely provide a place for prayer; it creates an immersive experience that connects individuals with their faith, their community, and the natural world.


A Future-Oriented Approach to Mosque Architecture
The Kushtia Neighborhood Mosque reimagines how religious architecture can integrate sustainability, climate responsiveness, and cultural relevance. By blending traditional values with contemporary environmental strategies, Ahsan Habib + Chinton Architects have created a mosque that serves as both a spiritual and ecological sanctuary. This project stands as a powerful example of how architecture can honor tradition while embracing a future-oriented approach to sustainability.



All Photographs are works of Asif Salman, Shakil Ibne Hai
Popular Articles
Popular articles from the community
The Ken Roberts Memorial Delineation Competition (Krob)
As the most senior architectural drawing competition currently in operation anywhere in the world, it draws hundreds of entries each year, awarding the very best submissions in a series of medium-based categories.
Alton Cliff House: A Harmonious Retreat by f2a Architecture in Lake Country, Canada
Alton Cliff House blends corten steel, prefabrication, and sustainable design, creating a luxurious, energy-efficient retreat perched on Canadian cliffs.
Split House: A Compact Urban Home Blending Privacy, Light, and Flexible Living in Japan
Compact Japanese home featuring DOMA space, flexible café potential, passive lighting, privacy zoning, and sustainable urban living design.
Free Architecture Competitions You Can Enter Right Now
No entry fees, real prizes. Here are the best free architecture competitions open for submissions in 2026.
Similar Reads
You might also enjoy these articles
The Ken Roberts Memorial Delineation Competition (Krob)
As the most senior architectural drawing competition currently in operation anywhere in the world, it draws hundreds of entries each year, awarding the very best submissions in a series of medium-based categories.
Waterfront Redevelopment and Urban Revitalization in Mumbai: Forging a New Dawn for Darukhana
A transformative waterfront redevelopment project reimagining Darukhana’s shipbreaking heritage into an inclusive urban future.
OUT-OF-MAP: A Call for Postcards on Feminist Narratives of Public Space
Rhizoma Design and Research Lab invites artists, designers, architects, researchers, and students to reflect on how feminist perspectives can reshape public space. Selected works will be exhibited in Barcelona, October 2026. Submissions open until 15 April 2026.
Documentation Work on Buddhist Wooden Temple
Architectural syncretism and cultural hybridity: A comparative study of the Buddhist temples in Chattogram Hill tracks
Explore Architecture Competitions
Discover active competitions in this discipline
The International Standard for Design Portfolios
The Global Benchmark for Architecture Dissertation Awards
The Global Benchmark for Graduation Excellence
Challenge to reimagine the Iron Throne
Comments (0)
Please login or sign up to add comments
No comments yet. Be the first to comment!