Kyoto Machiya Renovation: House Mokusei by Atelier Yoo
A century-old Kyoto machiya transformed into a guesthouse by Atelier Yoo, blending historical typology with modern comfort and hospitality.
Reviving a Century-Old Kyo-Machiya
House Mokusei by Atelier Yoo is a striking example of Kyoto machiya renovation, breathing new life into a century-old townhouse in Kyoto’s Shimogyo Ward. Once a fragmented and altered space, the project restores the architectural integrity of the traditional Kyo-machiya while adapting it for modern hospitality use.
Historical Roots of the Kyo-Machiya
Kyoto’s machiya heritage dates back over 1,200 years, shaped by the jōbō grid system imported from Tang dynasty China. By the Edo period, the machiya—defined by narrow street frontage and elongated interiors—had become the city’s signature housing type. Known as “eel’s beds” (unagi no nedoko) for their slim proportions, these townhouses followed a distinctive spatial flow from public to private, with the doma (earthen passage), hibukuro (smoke chimney void), and sequential tatami rooms defining daily life.


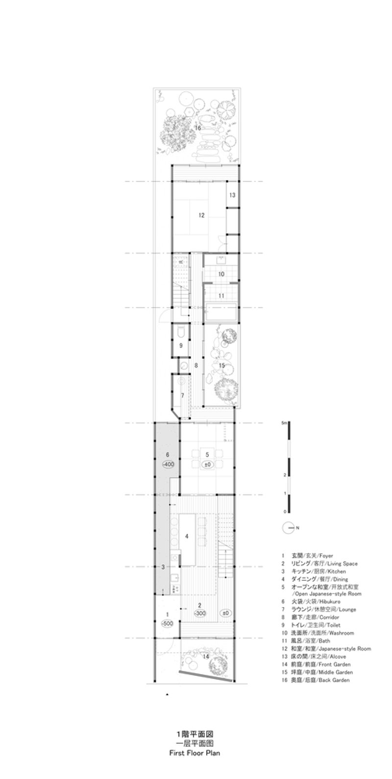
Restoring Order and Flow
Before renovation, House Mokusei had lost much of its original spatial logic. The façade and street-facing mise space were gone, the doma was disrupted by a raised kitchen platform, and the hibukuro void was closed off. Atelier Yoo’s design unfolded in two stages: reestablishing the typology’s spatial order and integrating modern functions for a lodging facility.


Key moves included pulling the façade back to its original position to create a front garden, removing the raised doma platform to restore a longitudinal flow, and combining the mise and daidoko into an open-plan living space with adjusted floor heights. A central “device” incorporating the kitchen stove, dining table, and utilities was positioned between the doma and living area, enhancing the spatial transition.
Bringing Light, Air, and Continuity
The restoration of the hibukuro as a light and ventilation source was central to the renovation’s success. All wiring, ducts, and exhausts were intentionally exposed within this vertical shaft, honoring the functional honesty of the traditional structure. The result is a renewed permeability, connecting nature and architecture, past and present.


Blending Tradition with Modern Hospitality
House Mokusei now serves as a lodging space, offering four distinct room types: traditional washitsu, modern washitsu, Western-style, and suite. The washitsu rooms retain tatami flooring for flexible sleeping arrangements, while the Western and suite rooms cater to guests preferring beds and contemporary furniture.




A Lesson in Typology and Cultural Value
The renovation is a testament to how typological study can guide sensitive design. By understanding the original Kyo-machiya logic, Atelier Yoo balanced preservation with adaptation, creating a space that resonates with Kyoto’s cultural identity while meeting modern needs. As Aldo Rossi observed, the city’s physical form expresses enduring values—House Mokusei embodies this principle in architectural form.




All photographs are works of Kazuoki Yasugi, Song Gao
Popular Articles
Popular articles from the community
Fifth NRE Jazz Club – De Bever Architecten: Eindhoven’s Revitalized Cultural Hub
Historic gas factory transformed into Fifth NRE Jazz Club blending modern sustainability, jazz culture, dining, and heritage architecture seamlessly.
Free Architecture Competitions You Can Enter Right Now
No entry fees, real prizes. Here are the best free architecture competitions open for submissions in 2026.
Gads Hill Early Learning Center by JGMA: Adaptive Reuse Shaping Community-Focused Educational Architecture
Adaptive reuse transforms fragmented structure into vibrant early learning center with playful façade, natural light, and community-focused sustainable design.
The Ken Roberts Memorial Delineation Competition (Krob)
As the most senior architectural drawing competition currently in operation anywhere in the world, it draws hundreds of entries each year, awarding the very best submissions in a series of medium-based categories.
Similar Reads
You might also enjoy these articles
Free Architecture Competitions You Can Enter Right Now
No entry fees, real prizes. Here are the best free architecture competitions open for submissions in 2026.
Top 15 Architecture Competitions to Enter in 2026
From student-friendly idea competitions to prestigious international awards, here are the best architecture competitions open for entries in 2026. Updated regularly.
DIY & Engineering in Computational Design : Enter the BeeGraphy Design Awards
Showcase Your Creativity with Computational Design and Open Source Projects

Innovative Design Solutions: Award-Winning Projects from Recent Architecture Competitions
Exploring award-winning architectural projects shaping the future of design, sustainability, and community.
Explore Architecture Competitions
Discover active competitions in this discipline
The International Standard for Design Portfolios
The Global Benchmark for Architecture Dissertation Awards
The Global Benchmark for Graduation Excellence
Challenge to reimagine the Iron Throne
Comments (0)
Please login or sign up to add comments
No comments yet. Be the first to comment!