La Sirène Pavilion and Madeleine Pelletier Youth Residence: A Landmark in Mixed-Use Architecture in Paris
A landmark mixed-use architecture project in Paris, combining cultural heritage, sustainable design, and youth housing by Avenier Cornejo.
Introduction to the Project’s Vision
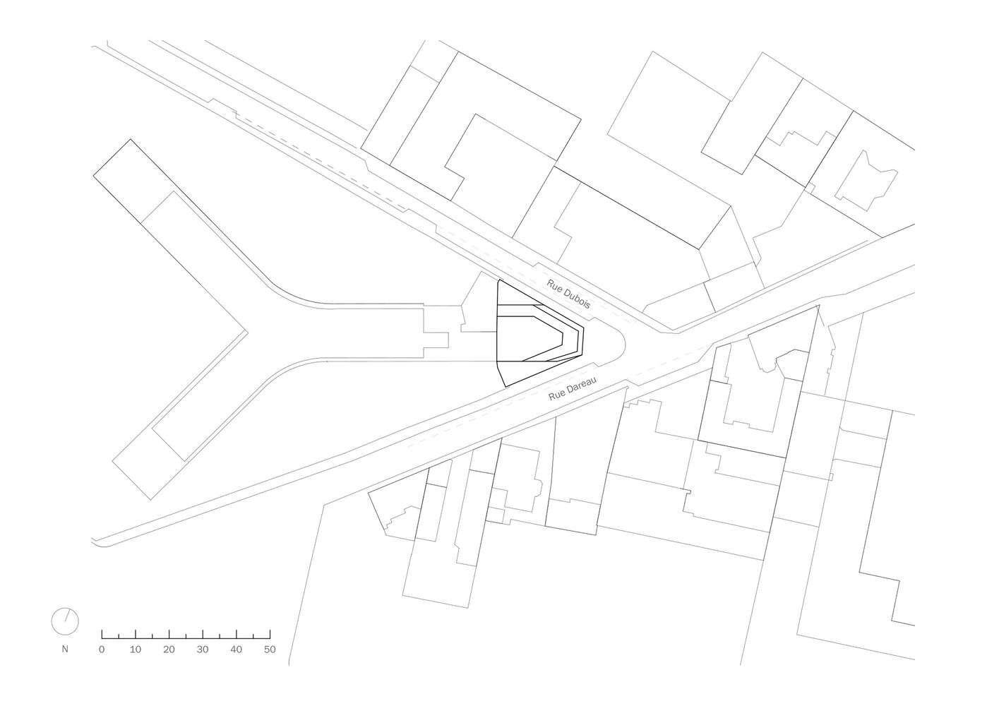
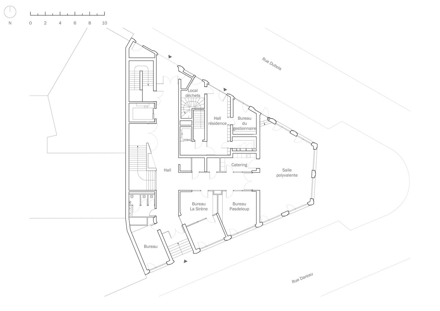
The La Sirène Pavilion and Madeleine Pelletier Youth Residence by Avenier Cornejo Architectes stands as a striking example of mixed-use architecture in Paris, blending cultural heritage with contemporary living. Located at the intersection of Rue Dareau and Rue Émile Dubois, the project revitalizes one of France’s oldest independent amateur orchestras, La Sirène de Paris, by integrating it into a vibrant new building. This innovative structure not only preserves a cultural institution but also provides affordable housing for students and young professionals, ensuring that the project enriches the local urban landscape both socially and architecturally.




Architectural Context and Integration
Anchored in a neighborhood marked by architectural diversity—where Haussmannian façades meet modernist and contemporary lines—the project harmoniously inserts itself into the existing urban fabric. Drawing inspiration from the horizontal balconies and Y-shaped footprint of the nearby 1968 Le Méridien residential complex, the design extends the local architectural language. The stepped volumetry and horizontal terraces echo the area’s Art Deco and modernist features while introducing new green spaces that promote biodiversity and enhance the neighborhood’s visual identity.




Sustainable Materials and Exposed Concrete
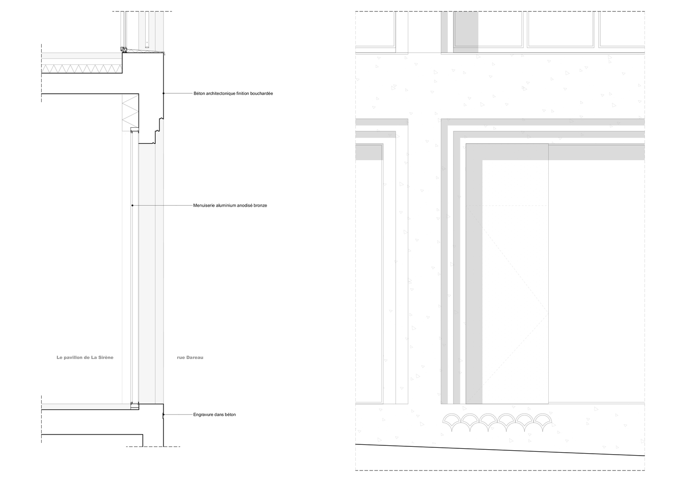
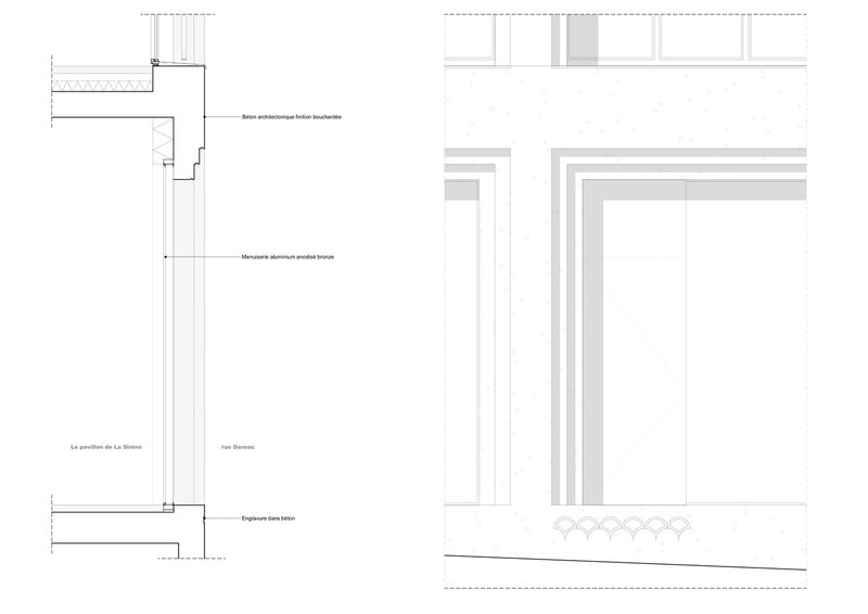
Central to the design philosophy is sustainability. The project is certified E3C1 and BBC Effinergie 2017, reflecting its advanced environmental performance. One key decision was to expose the reinforced concrete structure, minimizing cladding and reducing material consumption. The architects used a mix of bouchardé, matricé, and smooth finishes on the concrete surfaces, adding texture and depth while preserving the raw beauty of the material. This choice not only extends the lifespan of the building but also strengthens its architectural expression.





Innovative Auditorium Design
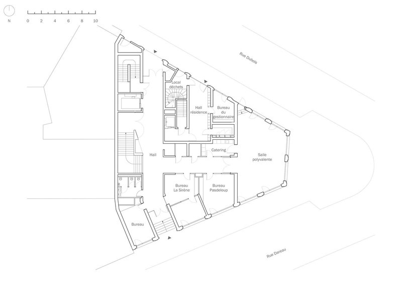
At the heart of the La Sirène Pavilion is a 6-meter-high auditorium, a column-free space achieved through sophisticated load transfer engineering. This hall provides an acoustically optimized environment for music rehearsals and performances, ensuring that the cultural mission of La Sirène de Paris thrives in a setting designed for excellence. The entrance to the auditorium, framed by Art Deco-inspired motifs and a grand staircase, sets the tone for a high-quality cultural experience that resonates with both tradition and modernity.



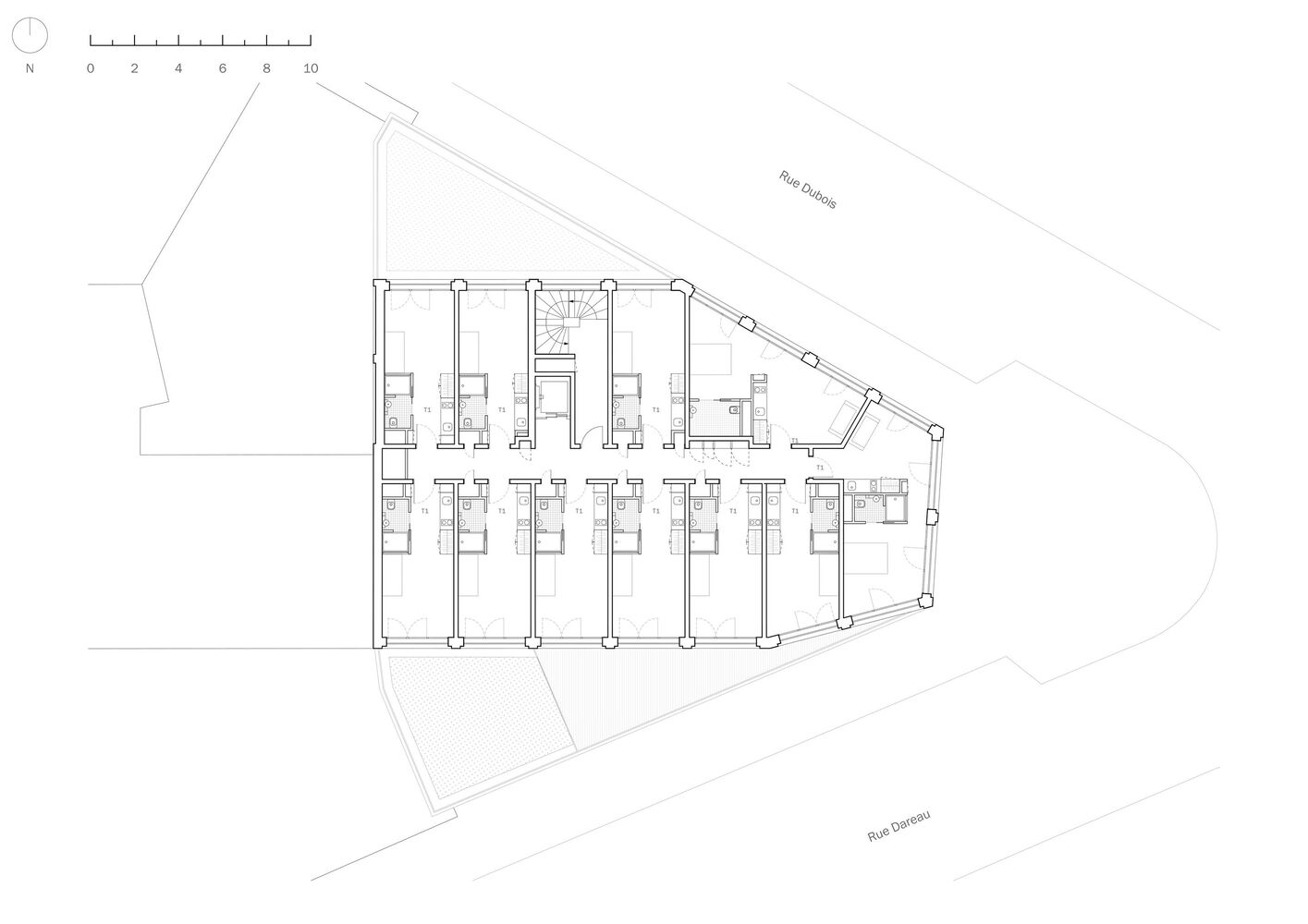
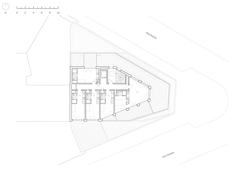
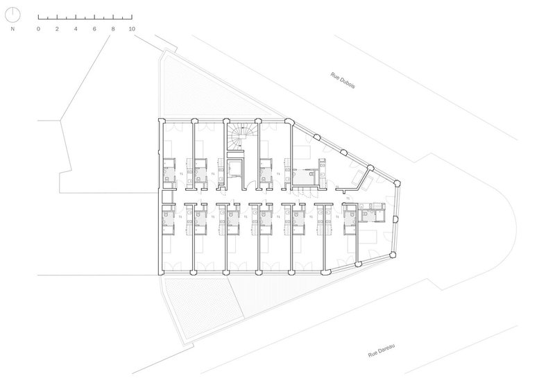
Youth Housing for a Vibrant Urban Community
Above the cultural spaces, the Madeleine Pelletier Youth Residence offers 51 thoughtfully designed studios. Each unit is equipped with large bay windows that flood interiors with natural light, and modular furniture that maximizes flexibility and personalization. Shared dining rooms, a gym, and rooftop terraces foster a sense of community among the residents, who are primarily students and young workers. These spaces not only enhance daily living but also reinforce social ties, making the building a dynamic hub within the city.




Bioclimatic Strategies and Urban Sustainability
The project integrates advanced bioclimatic strategies, including brise-soleil elements that provide sun control, extensive natural lighting through large window openings, and energy-efficient insulation systems. Green terraces serve multiple purposes: they improve thermal insulation, reduce the urban heat island effect, and support local biodiversity. By combining these environmental strategies with high-performance architecture, the project minimizes its ecological footprint while enhancing the comfort and wellbeing of its users.




A Model for Mixed-Use Architecture in Paris
The La Sirène Pavilion and Madeleine Pelletier Youth Residence is more than just a building; it is a model for mixed-use architecture in Paris that seamlessly integrates cultural, residential, and environmental functions. Through its sensitive urban integration, robust material palette, and commitment to sustainability, the project reinforces the identity of its neighborhood while addressing contemporary challenges of urban living. It stands as a testament to how architecture can bridge history and innovation, fostering vibrant communities and enriching the cultural fabric of the city.




All Photographs are works of Maxime Delvaux, Simone Bossi