LAB Store: A Harmonious Approach to Contemporary Retail Architecture in Fukushima
LAB Store in Fukushima redefines contemporary retail architecture, seamlessly integrating spatial efficiency, natural materials, and urban connectivity for an inviting experience.
Integrating Retail Spaces with Architectural Harmony
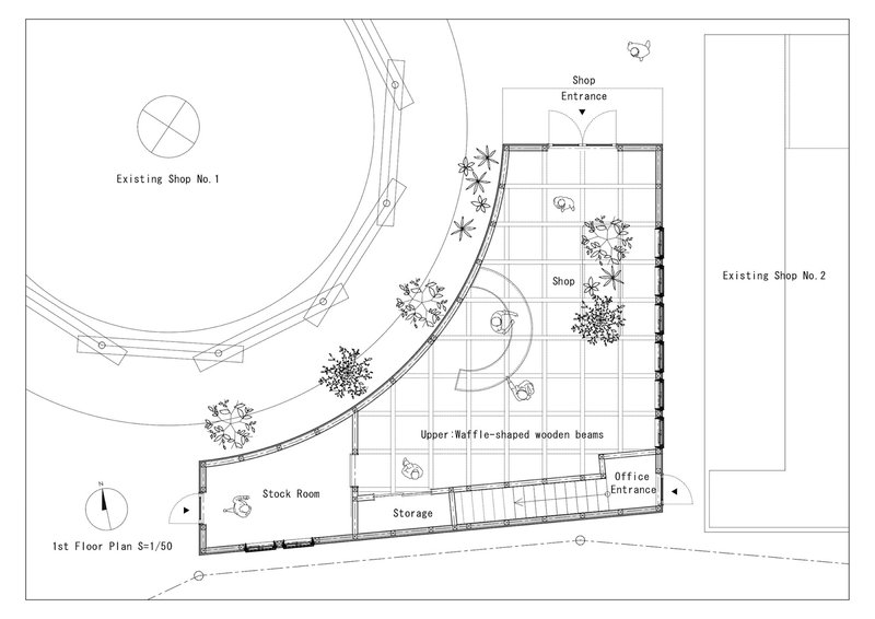
Located in the heart of Fukushima City, the LAB Store by Architrip Inc. redefines contemporary retail architecture by seamlessly integrating with its surroundings. Designed as the third addition to an existing retail complex, the project balances architectural contrasts by creating a unified yet distinctive presence. Positioned between two pre-existing shops—one with an organic form and the other with a simple, linear structure—LAB Store serves as a visual and functional bridge between them.



Maximizing Limited Space Through Thoughtful Design
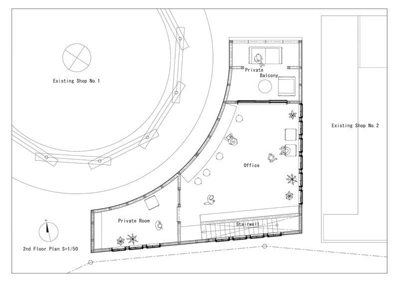
With a compact footprint of 72 square meters, the LAB Store optimizes spatial efficiency by dedicating the first floor to retail and the second floor to office space. The receding outline of the new building subtly respects the boundaries of the existing structures while introducing a unique architectural identity. To maintain continuity, the design incorporates a semi-exterior space, a common element in both neighboring shops, allowing for a fluid connection between the three structures.


A Seamless Flow Between Interior and Exterior
The entrance is thoughtfully recessed beneath the second floor, creating an inviting transition between indoor and outdoor spaces. Once inside, visitors are welcomed by an open retail environment characterized by exposed waffle-shaped wooden beams and a lofty 3.5-meter-high ceiling. High-side windows flood the space with natural light, enhancing the warm, organic atmosphere. This interplay between light, materiality, and spatial openness reinforces the sense of continuity between the built environment and its urban context.


Materiality and Texture in Modern Retail Spaces
The store's exterior features a striking curved wall clad in 300mm-wide vertical siding, adding both depth and softness to the façade. Internally, walls finished with diatomaceous earth create a textured, natural aesthetic that complements the warm tones of the exposed wood structure. The curved wall acts as a focal point, guiding visitors through the space while offering a visual break from conventional retail layouts.




Creating a Cohesive Architectural Identity
Viewed collectively, the three buildings stand as distinct yet harmonious elements, much like siblings with individual personalities yet shared traits. Despite their different architectural expressions, they form a cohesive streetscape through deliberate material choices and shared design principles. The private balcony on the second floor provides a vantage point overlooking the entire retail complex, further reinforcing the store's connection to its surroundings.



Shaping the Future of Retail Architecture
The LAB Store exemplifies how contemporary retail architecture can blend aesthetic appeal with functional urban integration. By carefully responding to existing site conditions and architectural diversity, the project establishes a retail environment that is both inviting and dynamic. More than just a commercial space, it enhances the city’s architectural fabric, encouraging interaction and contributing to Fukushima’s urban vibrancy.



All photographs are works of Yoshiki Yokoyama
Popular Articles
Popular articles from the community
20 Most Popular Commercial Architecture Projects of 2025
From sustainable market concepts to heritage factories, the commercial buildings and proposals that drew the most attention on uni.xyz this year.
MAKER architecten Rewire a 1972 Brutalist Dormitory on the VUB Campus as a Living Lab
A modular renovation strategy in Belgium breathes new life into Willy Van Der Meeren's modernist student housing without erasing its concrete bones.
Gunawarman 35: Jakarta's Corner of Quiet Complexity
WOFF's mixed-use building in Jakarta pairs translucent glass block walls with a buff brick cylinder to hold coffee, wellness, and work under one roof.
A Park Building That Wants to Be a Landscape
Omrania's Operations & Maintenance Building at King Salman Park dissolves industrial program into Riyadh's largest green infrastructure.
Similar Reads
You might also enjoy these articles
Filtering Space: A Gradual Spatial Experience
From urban intensity to spatial calm.
The Ken Roberts Memorial Delineation Competition (Krob)
As the most senior architectural drawing competition currently in operation anywhere in the world, it draws hundreds of entries each year, awarding the very best submissions in a series of medium-based categories.
Waterfront Redevelopment and Urban Revitalization in Mumbai: Forging a New Dawn for Darukhana
A transformative waterfront redevelopment project reimagining Darukhana’s shipbreaking heritage into an inclusive urban future.
OUT-OF-MAP: A Call for Postcards on Feminist Narratives of Public Space
Rhizoma Design and Research Lab invites artists, designers, architects, researchers, and students to reflect on how feminist perspectives can reshape public space. Selected works will be exhibited in Barcelona, October 2026. Submissions open until 15 April 2026.
Explore Architecture Competitions
Discover active competitions in this discipline
The International Standard for Design Portfolios
The Global Benchmark for Architecture Dissertation Awards
The Global Benchmark for Graduation Excellence
Challenge to reimagine the Iron Throne
Comments (0)
Please login or sign up to add comments
No comments yet. Be the first to comment!