Joseph Mills Architects Restores a London Townhouse with Arched Openings and a Brick Courtyard
A careful renovation in London layers arched windows, buff brickwork, and mature garden views into a narrow Georgian plan.
There is a particular discipline required when renovating a London townhouse. The proportions are already decided, the plot is narrow, and the neighbors are close. Every move either respects the inherited logic of the building or fights it. At the Laurie House, Joseph Mills Architects chose respect, but not the deferential kind. The firm introduced a series of arched openings along the rear facade that rhyme with the Georgian streetscape without copying it, turning what was once a sealed back wall into a permeable boundary between domestic life and a generous courtyard garden.
What makes the project worth studying is the consistency of its architectural language. The arch appears everywhere: in full-height glazed doors, in tall windows with deep reveals, in the brick voussoirs that crown each opening. It becomes a motif rather than a gimmick, repeated at different scales and in different materials until the house reads as a single composition rather than an old structure with a new extension bolted on. The palette of buff brick, timber, walnut veneer, and grey stone is restrained enough to let light and foliage do the decorative work.
A Rear Facade That Earns the Garden



The garden elevation is the project's signature move. Buff brick rises to meet a rhythm of arched openings, their proportions tall enough to flood the interior with light yet narrow enough to maintain the wall's solidity. The brickwork is laid with precision, and the voussoirs above each arch give structural expression to what could have been a flat lintel. Viewed from the lawn, the facade sits comfortably beneath mature trees, the copper beech and willow providing a canopy that softens the geometry.
At night, the effect reverses. The arches become illuminated frames, glowing warmly and revealing the domestic life within. It is a simple trick, but it works because the proportions are right and the glazing bars are slender enough to disappear.
The Arch as Organizing Device



Zoom in on any single opening and the detailing holds up. Brick voussoirs are laid with tight joints, meeting a recessed timber frame that reads as a separate layer within the wall's depth. The reveal is generous, so each window creates a small threshold between inside and outside, a zone of shadow and warmth that shifts with the sun's angle. Afternoon light casts long diagonal shadows across the pale plaster walls, turning the arch into a sundial.
The timber and bronze framing of the glazed doors adds a tactile richness without competing with the brickwork. When the doors swing open, the arch becomes a portal rather than a window, collapsing the distinction between room and garden entirely.
Living Rooms Framed by Foliage



The living spaces on the ground floor are oriented entirely toward the garden. A row of three arched doors functions as an adjustable wall: closed, they offer framed views of greenery; open, they dissolve the room's edge. The interior is deliberately neutral, with white walls and pale stone floors that refuse to compete with the foliage outside. A rectangular skylight above the seating area adds a second source of natural light, preventing the deep plan from becoming gloomy.
The restraint here is key. There is no feature wall, no statement pendant, no accent color. The architecture does the work, and the garden provides the decoration. In autumn, when the copper beech turns, the entire room shifts in tone.
Kitchen and Dining as a Single Sequence



The open-plan kitchen and dining area runs the width of the house, anchored by a long timber table that seats eight. Walnut veneer cabinetry wraps the kitchen wall, its warm tone a deliberate counterpoint to the grey veined marble that lines the backsplash and worktops. The material pairing is not novel, but the execution is precise: flush joints, integrated handles, no visible appliances.
Full-height windows at the dining end pull the garden into the room once more, so the sequence from cooking to eating to looking out unfolds along a single axis. Stone tile flooring runs continuously from kitchen to threshold, reinforcing the sense that the interior and courtyard are one space divided only by glass.
Dining with the Garden in View



Two views of the dining table tell the same story from different angles: wherever you sit, you face greenery. The glazed doors frame the courtyard like a painting that changes with the seasons, and the wishbone chairs are light enough to keep the composition open. Through the doorway to the kitchen, the walnut cabinetry and marble backsplash are visible but recessed, maintaining a clear hierarchy between social space and service space.
Courtyard and Circulation



The courtyard is more than a visual amenity. A curved stone staircase climbs the boundary wall, connecting levels and creating a secondary circulation route that bypasses the interior. Brick stairs, a metal balustrade, and planted beds lining the base of the wall give the outdoor space an architectural presence that matches the building itself. The overhanging willow tree softens the geometry, turning what could be a stark urban yard into something almost romantic.
A hallway on the interior side frames the courtyard through an arched window at its terminus, pulling the eye along the narrow plan and rewarding the journey with a view of the terrace, a single chair, and a potted plant. It is a composed moment, the kind of careful alignment that separates considered renovation from simple refurbishment.
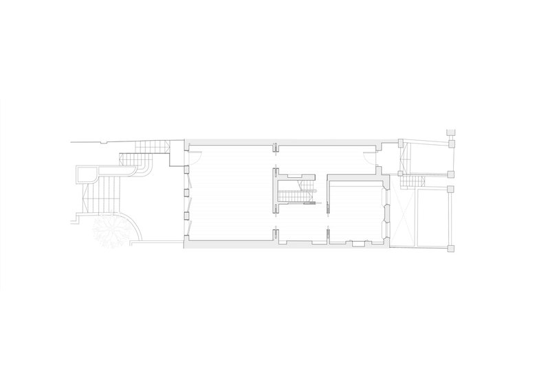
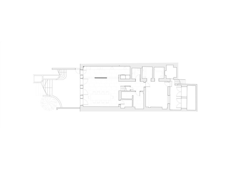
Plans and Drawings



The floor plans reveal the narrowness of the site and the logic of the layout. The ground floor stretches linearly from front to back, with the curved staircase acting as a hinge at one end. The upper level mirrors this organization, with rooms flanking both sides of a central stairwell. The elevation drawing confirms the rhythm of the arched openings and shows how the new facade relates to the adjacent buildings on the street. Four arches span the width, their proportions consistent and their heads aligned, creating a composed public face that integrates cleanly with the existing urban fabric.
Why This Project Matters
London's residential renovation market is saturated with projects that treat the rear extension as a license to break free from context. Glass boxes, Corten steel frames, and industrial skylights have become defaults, producing houses that are half Georgian and half something else entirely. Laurie House resists that temptation. Its arched openings are historically literate without being pastiche, and its material palette is warm without being nostalgic. The result is a house that feels like one building, not two eras stapled together.
Joseph Mills Architects demonstrates that restraint and ambition are not opposites. The firm found a single motif, the arch, and deployed it rigorously across scales and materials until it became the house's identity. That kind of commitment to a governing idea is rare in residential work, where client preferences and planning constraints often dilute the design intent. Here, the idea survived intact, and the house is better for it.
Laurie House Renovation by Joseph Mills Architects. Location: London, United Kingdom. Photography as credited.
About the Studio
Share Your Own Work on uni.xyz
If projects like this are the kind of work you want to make, uni.xyz is a place to publish your own, find collaborators, and enter design competitions.
Popular Articles
Popular articles from the community
20 Most Popular Commercial Architecture Projects of 2025
From sustainable market concepts to heritage factories, the commercial buildings and proposals that drew the most attention on uni.xyz this year.
Filtering Space: A Gradual Spatial Experience
From urban intensity to spatial calm.
Magic Box Office Barcelona Innovative Sustainable Workplace Design
Innovative sustainable office design featuring triangular form, ceramic façade, flexible interiors, natural light optimization, and creative workspace for modern work culture.
Free Architecture Competitions You Can Enter Right Now
No entry fees, real prizes. Here are the best free architecture competitions open for submissions in 2026.
Similar Reads
You might also enjoy these articles
Filtering Space: A Gradual Spatial Experience
From urban intensity to spatial calm.
The Ken Roberts Memorial Delineation Competition (Krob)
As the most senior architectural drawing competition currently in operation anywhere in the world, it draws hundreds of entries each year, awarding the very best submissions in a series of medium-based categories.
Waterfront Redevelopment and Urban Revitalization in Mumbai: Forging a New Dawn for Darukhana
A transformative waterfront redevelopment project reimagining Darukhana’s shipbreaking heritage into an inclusive urban future.
OUT-OF-MAP: A Call for Postcards on Feminist Narratives of Public Space
Rhizoma Design and Research Lab invites artists, designers, architects, researchers, and students to reflect on how feminist perspectives can reshape public space. Selected works will be exhibited in Barcelona, October 2026. Submissions open until 15 April 2026.
Explore Architecture Competitions
Discover active competitions in this discipline
The International Standard for Design Portfolios
The Global Benchmark for Architecture Dissertation Awards
The Global Benchmark for Graduation Excellence
Challenge to reimagine the Iron Throne
Comments (0)
Please login or sign up to add comments
No comments yet. Be the first to comment!