Lee Terrace Home: A Sustainable Mews House Design in London
Lee Terrace Home redefines sustainable mews house design in London, integrating contemporary living with heritage conservation and energy-efficient architecture.
Lee Terrace Home by Mailen Design is a contemporary mews-style house that exemplifies sustainable mews house design in London. Nestled in Blackheath's historic conservation area, this newly built residence transforms a former garage infill plot into a highly efficient and thoughtfully designed family home. Blending seamlessly with its Victorian surroundings, the project balances historical sensitivity with modern sustainability, showcasing how new architecture can harmonize with its context while setting a benchmark for urban living.



A Contemporary Interpretation of Mews House Architecture
Inspired by traditional mews houses, Lee Terrace Home reinterprets this typology with a modern approach. Positioned at the rear of a historic plot, the house respects the architectural rhythm of the neighborhood by recessing its upper floors to align with adjacent terraces. London stock brick and pre-cast stone define its façade, incorporating subtle detailing that reflects the character of the surrounding Victorian properties.


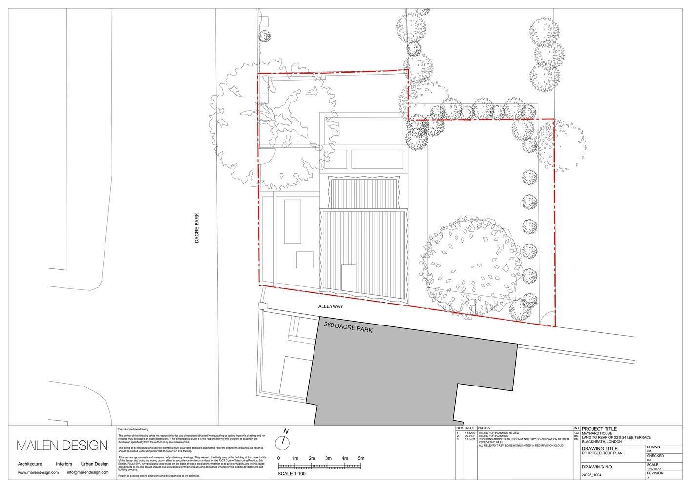
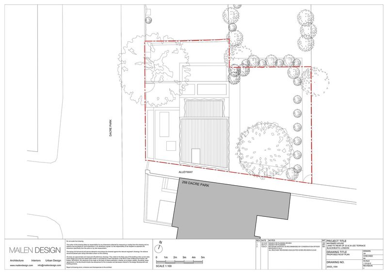
A distinctive bronze-finished aluminum volume crowns the structure, offering a contemporary contrast while maintaining a refined presence. This material choice allows the house to integrate seamlessly into the conservation area without overshadowing its historical context. Through careful planning and material selection, the design achieves a balance between modernity and heritage, exemplifying how mews houses can be adapted for contemporary living.


Maximizing Natural Light and Spatial Efficiency
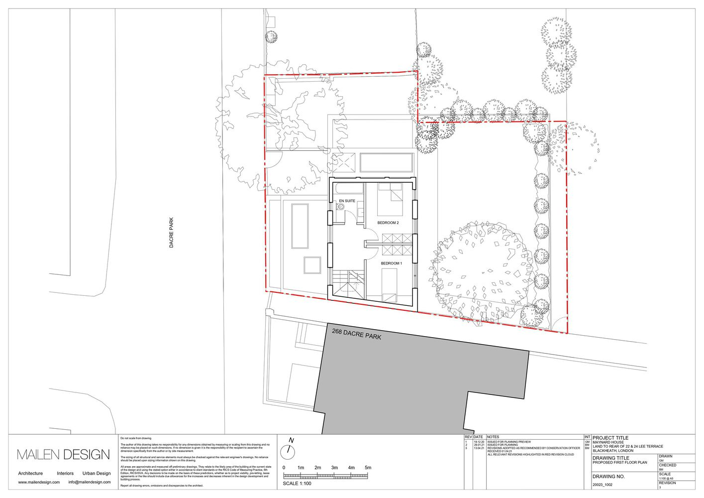
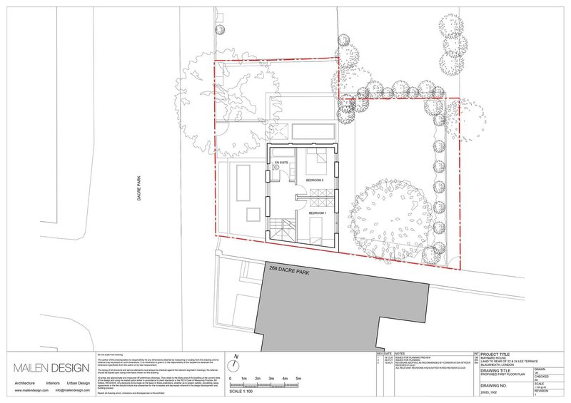
The architectural strategy behind Lee Terrace Home prioritizes openness and light, essential elements in sustainable mews house design. The ground floor is intentionally set back behind an extended garden wall, creating a private entryway that conceals the interior from the street. A black timber door leads to a compact courtyard, where large ceramic tiles and soft landscaping introduce a sense of arrival.



Inside, the residence unfolds with a series of bright, open spaces designed for fluid indoor-outdoor living. Expansive floor-to-ceiling glazing at the rear elevation visually extends the interior into the garden, blurring the boundary between inside and outside. A skylight above the entrance draws in daylight, illuminating the exposed concrete ceilings and oak joinery that define the home’s material palette.



The open-plan living, dining, and kitchen area creates a seamless flow between spaces, with a tiered rear garden acting as a natural extension of the home. A sliding glass door opens onto a sunken patio, designed for both privacy and entertainment. Thoughtful positioning of glazing throughout the house ensures a continuous dialogue with the outdoors, enhancing the sense of space within the compact footprint.



Sustainable Materials and Energy Efficiency
Sustainability is at the core of Lee Terrace Home, both in its construction and operational performance. The project repurposes a previously underutilized brownfield site, demonstrating how urban infill developments can contribute to sustainable city growth. High levels of insulation and air-tightness reduce energy demand, while an air-source heat pump efficiently provides heating and hot water.




Material choices reinforce the home’s environmental commitment. Exposed concrete surfaces contribute to thermal mass, regulating indoor temperatures by absorbing and slowly releasing heat. Oak joinery introduces warmth, complementing the raw textures of concrete and brick. The herringbone parquet flooring contrasts with the industrial aesthetic, adding a tactile quality to the interiors.



Externally, the carefully considered landscape preserves and enhances the existing greenery. Working closely with arboricultural specialists, the design team ensured that two mature trees on and adjacent to the site remained undisturbed. The front courtyard’s recessed design leaves ample space for the branches of a neighboring lime tree, reinforcing the home’s connection to its natural surroundings.


A New Benchmark for Sustainable Mews House Design in London
Lee Terrace Home sets a precedent for sustainable mews house design in London by combining architectural ingenuity with environmental responsibility. Its ability to integrate into a historically sensitive context while prioritizing sustainability demonstrates a forward-thinking approach to urban living.






By carefully balancing materiality, energy efficiency, and spatial optimization, the residence provides a model for how new infill developments can contribute to both heritage conservation and modern sustainability goals. Through its seamless connection to nature, well-lit interiors, and refined use of raw materials, Lee Terrace Home stands as an exemplar of contemporary mews-style architecture adapted for the future of London’s urban fabric.





All photographs are works of Alex Dormon Photography
Popular Articles
Popular articles from the community
Solar Steam: A Climate-Responsive Architecture That Redefines the Monument
A climate-responsive memorial architecture that transforms heat, decay, and time into a living system reflecting humanity’s ecological impact.
Alton Cliff House: A Harmonious Retreat by f2a Architecture in Lake Country, Canada
Alton Cliff House blends corten steel, prefabrication, and sustainable design, creating a luxurious, energy-efficient retreat perched on Canadian cliffs.
Split House: A Compact Urban Home Blending Privacy, Light, and Flexible Living in Japan
Compact Japanese home featuring DOMA space, flexible café potential, passive lighting, privacy zoning, and sustainable urban living design.
Similar Reads
You might also enjoy these articles
Bamboo Housing Challenge 2026: Design Affordable, Sustainable Homes Using Bamboo
An international design competition by Bamboo U and IBUKU inviting architects and designers to reimagine affordable housing using bamboo — with the winning design built full-scale in Bali.
Computational Design & Education: Beegraphy Design Awards Introduces 7th Category (Featuring Jiyun's Innovative Approach)
Dive into Beegraphy’s 7th Design Awards category, where computational design meets education to create immersive, interactive learning tools, inspired by Jiyun’s work.
From Parametric Lighting to Urban Furniture: Join the 2nd Workshop in Beegraphy’s Computational Design Series
Dive into Cutting-Edge Design Techniques and Practical Applications with Industry Experts
Explore Architecture Competitions
Discover active competitions in this discipline
The International Standard for Design Portfolios
The Global Benchmark for Architecture Dissertation Awards
The Global Benchmark for Graduation Excellence
Challenge to reimagine the Iron Throne
Comments (0)
Please login or sign up to add comments
No comments yet. Be the first to comment!