Les Coteaux Fleuris School: A Modern Echo of Normandy's Heritage
Exploring the sustainable and heritage-inspired design of Les Coteaux Fleuris School in Heudebouville, France, by HEMAA Architectes and Hesters Oyon.
Nestled in the picturesque Seine Valley, the Les Coteaux Fleuris School in Heudebouville, France, stands as a testament to the harmonious blend of local heritage and contemporary design. Spearheaded by HEMAA Architectes and Hesters Oyon, this educational facility not only respects its Norman roots but also sets new standards in sustainable architecture. The keyword capturing the essence of this project is "sustainable school architecture."




Design Philosophy
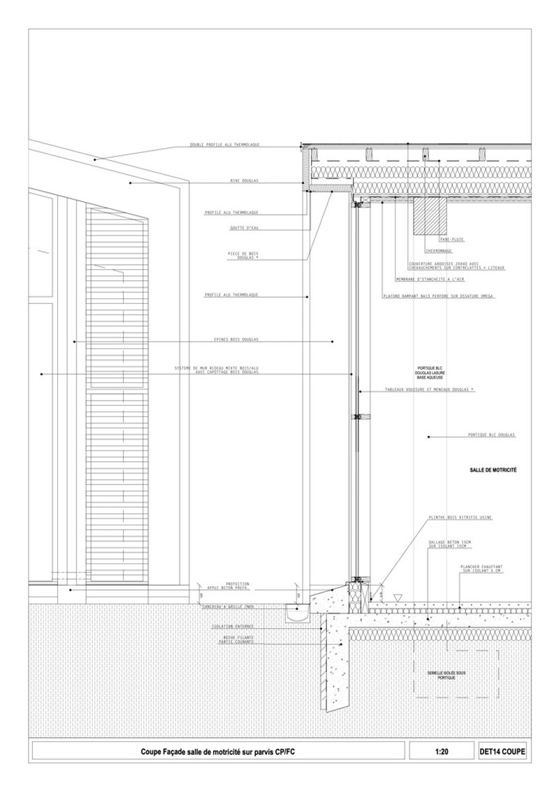
Drawing inspiration from the region's traditional half-timbered houses and slate-covered edifices, the school reinterprets these elements into a modern educational landscape. The design employs wood for glazed frames and frameworks and slate for cladding, paying homage to Heudebouville's architectural lineage while addressing contemporary needs.





Sustainable Integration
The school's design is deeply integrated with the natural contours of the land, following the site's geography to delineate play areas, orchards, and water collection systems. This thoughtful placement respects the natural soil and landscape, ensuring that the school not only blends with its environment but also enhances it.










Future-Ready Architecture
With an eye towards the village's potential growth, the school's layout is designed for flexibility and expansion. The use of porticos and modular construction allows for future additions without disrupting the original design, ensuring that the school can grow alongside the community.

Sustainability at Its Core
The Les Coteaux Fleuris School exemplifies sustainability through its construction and operation. Employing wood and slate reduces the carbon footprint, while the integration of photovoltaic panels and the elimination of fossil fuel consumption for heating align with ambitious E3C2 and BEPOS energy standards. The project champions the use of local materials and labor, reinforcing its commitment to environmental stewardship and community support.
The Les Coteaux Fleuris School by HEMAA Architectes and Hesters Oyon is more than just an educational facility; it's a bridge between the past and the future. It reflects a profound respect for local heritage through its materiality and design while embracing sustainability and adaptability. This project not only serves the immediate needs of its students but also positions itself as a model for future school architecture, proving that tradition and innovation can coexist harmoniously in the landscape of modern education.











All photographs are work of Sergio Grazia
Popular Articles
Popular articles from the community
On the Brooks House by Monsoon Collective – A Contemporary Kerala Home Rooted in Tradition
Kerala home blending tradition and modernity with water-inspired design, brick architecture, courtyard planning, and sustainable rainwater harvesting strategies.
An Miên Lumière Cafe by xưởng xép, Ho Chi Minh City, Vietnam
An industrial-inspired café where layered steel and warm light create a dynamic, immersive environment shaped by reflection, depth, and perception.
Treehouse Apartment: A Warm Timber Interior Blending Craft, Play, and Contemporary Living
Warm timber apartment with integrated treehouse, combining natural materials, craftsmanship, and playful design to create a flexible, family-oriented living environment.
Louis Malle Cinema: A Limestone Cultural Landmark Revitalizing Community Life in Prayssac
Limestone cinema extension with public forecourt, blending heritage and modern design to create flexible cultural spaces and strengthen community interaction.
Similar Reads
You might also enjoy these articles
The Ken Roberts Memorial Delineation Competition (Krob)
As the most senior architectural drawing competition currently in operation anywhere in the world, it draws hundreds of entries each year, awarding the very best submissions in a series of medium-based categories.
Waterfront Redevelopment and Urban Revitalization in Mumbai: Forging a New Dawn for Darukhana
A transformative waterfront redevelopment project reimagining Darukhana’s shipbreaking heritage into an inclusive urban future.
OUT-OF-MAP: A Call for Postcards on Feminist Narratives of Public Space
Rhizoma Design and Research Lab invites artists, designers, architects, researchers, and students to reflect on how feminist perspectives can reshape public space. Selected works will be exhibited in Barcelona, October 2026. Submissions open until 15 April 2026.
Documentation Work on Buddhist Wooden Temple
Architectural syncretism and cultural hybridity: A comparative study of the Buddhist temples in Chattogram Hill tracks
Explore Architecture Competitions
Discover active competitions in this discipline
The International Standard for Design Portfolios
The Global Benchmark for Architecture Dissertation Awards
The Global Benchmark for Graduation Excellence
Challenge to reimagine the Iron Throne
Comments (0)
Please login or sign up to add comments
No comments yet. Be the first to comment!