Locomotive Workshop Revitalization by Sissons Architecture: A Fusion of Heritage and Innovation
The Locomotive Workshop revitalization by Sissons Architecture blends industrial heritage with modern functionality, fostering innovation and community engagement.
Located in Eveleigh, Australia, the Locomotive Workshop by Sissons Architecture is a groundbreaking project that revitalizes a historical site, seamlessly blending industrial heritage with modern functionality. Completed in 2023, the redevelopment honors the site's rich history while transforming it into a thriving hub for innovation, culture, and community engagement. This renovation ensures the long-term economic viability of the site, while preserving the architectural and cultural significance of the Locomotive Workshops.


Historical Significance and Site Context:
The original Eveleigh Locomotive Workshops were inaugurated in 1871 to service and manufacture locomotives, supporting the rapid expansion of Australia's railway network. At its peak in 1952, the site was a bustling industrial epicenter, employing over 10,000 people. However, following its closure in 1988, the site transformed into the Australian Technology Park (ATP)—an attempt to create a technology-focused business park. Unfortunately, this development left the area disconnected from the local community, resulting in a lack of engagement with its surroundings.


Revitalization Vision:
Mirvac’s revitalization of the Locomotive Workshop precinct sought to reverse this trend by reintroducing the site to its community. The design intent was clear: remove barriers, open doors, and reintegrate the space into the surrounding neighborhood. By shedding the unsympathetic elements, the architects were able to preserve and highlight the building’s industrial heritage, showcasing the original fabric alongside contemporary interventions.


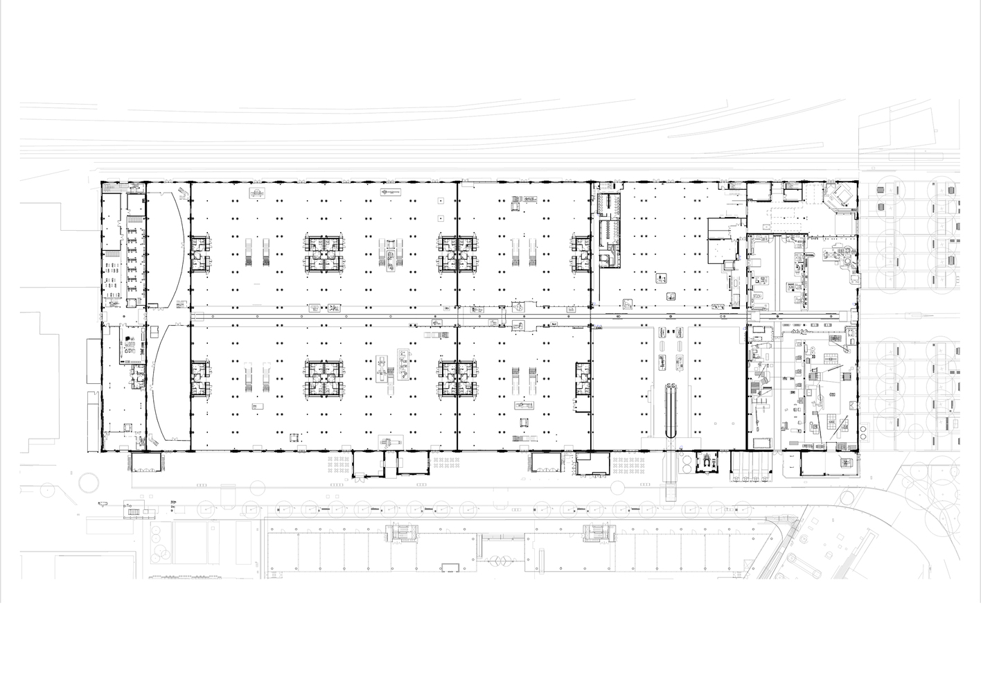
Key Design Features and Heritage Integration:
The project maintains the site's industrial aesthetic while creating functional spaces that meet modern needs. Heritage elements such as cast iron columns, roof trusses, steel girders, and overhead cranes remain prominent throughout the design. A key feature of the project is the careful preservation of the original structure, ensuring that its patina—etched by over a century of history—remains visible.
New additions are designed with a light touch, utilizing steel frames to ensure reversibility and differentiation between the heritage fabric and modern interventions. These new elements are predominantly finished in black, allowing them to distinguish from the original structure, while complementing its industrial essence. The new mezzanine level, open to the heritage roof structure, maintains the building’s original volume and spatial relationships.


Functional and Cultural Spaces: The redevelopment includes a variety of new spaces that support the site's activation and long-term sustainability:
- Blacksmith Workshop and Heritage Interpretation: The continuation of the Blacksmith Workshop preserves the area’s 130-year-old blacksmithing tradition, while a Heritage Interpretation restaurant provides visitors with a deeper understanding of the site's history and origins.
- Retail and Commercial Spaces: Bays 3-4a have been repurposed into vibrant retail spaces, including an event space, coffee roastery, and food market, all contributing to the dynamic atmosphere of the precinct.
- Grade-A Workspaces: Bays 4-15 now house modern office spaces, catering to the needs of businesses in a creative and flexible environment.
- End-of-trip Facilities: The final bay includes much-needed end-of-trip facilities, promoting sustainability and active transportation.

Preserving Industrial Heritage in a Modern Context:
The design philosophy of Sessions Architecture emphasizes a light, structural approach to intervention within the building’s envelope. The modern additions are carefully integrated with the heritage elements, maintaining the integrity of the space. By preserving, accentuating, and interpreting the building's exceptional heritage, this redevelopment bridges the past and present, creating a dynamic cultural and commercial precinct.
The project successfully brings new life to the Eveleigh Locomotive Workshops, ensuring that it remains an important part of Sydney's urban fabric, all while celebrating its industrial heritage. The Locomotive Workshop is now a place where history and innovation coexist, providing a versatile and vibrant space for both work and leisure.
All Photographs are works of Simon Whitbread
Popular Articles
Popular articles from the community
On the Brooks House by Monsoon Collective – A Contemporary Kerala Home Rooted in Tradition
Kerala home blending tradition and modernity with water-inspired design, brick architecture, courtyard planning, and sustainable rainwater harvesting strategies.
Louis Malle Cinema: A Limestone Cultural Landmark Revitalizing Community Life in Prayssac
Limestone cinema extension with public forecourt, blending heritage and modern design to create flexible cultural spaces and strengthen community interaction.
Flamboyant House by Juliana Camargo + Prumo Projetos
Modern Brazilian house integrating existing tree, pool, and volumes with glass, wood, and transitional spaces blending interior, exterior, and landscape seamlessly.
Treehouse Apartment: A Warm Timber Interior Blending Craft, Play, and Contemporary Living
Warm timber apartment with integrated treehouse, combining natural materials, craftsmanship, and playful design to create a flexible, family-oriented living environment.
Similar Reads
You might also enjoy these articles
The Ken Roberts Memorial Delineation Competition (Krob)
As the most senior architectural drawing competition currently in operation anywhere in the world, it draws hundreds of entries each year, awarding the very best submissions in a series of medium-based categories.
Waterfront Redevelopment and Urban Revitalization in Mumbai: Forging a New Dawn for Darukhana
A transformative waterfront redevelopment project reimagining Darukhana’s shipbreaking heritage into an inclusive urban future.
OUT-OF-MAP: A Call for Postcards on Feminist Narratives of Public Space
Rhizoma Design and Research Lab invites artists, designers, architects, researchers, and students to reflect on how feminist perspectives can reshape public space. Selected works will be exhibited in Barcelona, October 2026. Submissions open until 15 April 2026.
Documentation Work on Buddhist Wooden Temple
Architectural syncretism and cultural hybridity: A comparative study of the Buddhist temples in Chattogram Hill tracks
Explore Office Building Competitions
Discover active competitions in this discipline
The International Standard for Design Portfolios
The Global Benchmark for Architecture Dissertation Awards
The Global Benchmark for Graduation Excellence
Challenge to reimagine the Iron Throne
Comments (0)
Please login or sign up to add comments
No comments yet. Be the first to comment!