Middle School by Artico Fracassi + Marco Zito: A Beacon of Innovative School Architecture
This article explores the innovative design and educational impact of the Middle School by Artico Fracassi and Marco Zito in Udine.
In the heart of Buttrio, Udine, a groundbreaking educational structure emerges, redefining the boundaries of innovative school architecture. Designed by the renowned architectural duo Artico Fracassi and Marco Zito, this middle school stands as a testament to modern educational design, seamlessly integrating with its natural surroundings while fostering a dynamic learning environment.


Location and Context
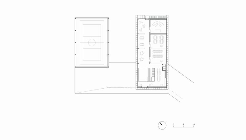
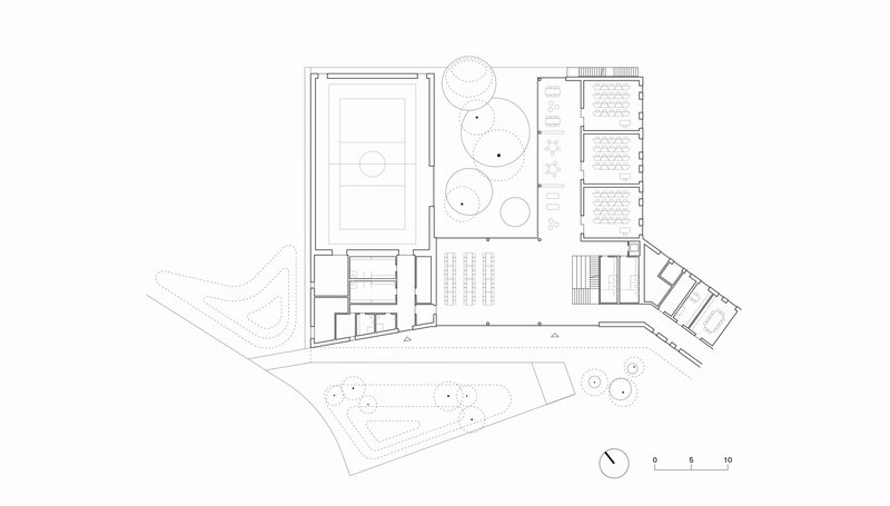
Nestled near poplar woods and a serene river, the Middle School in Buttrio is strategically positioned to bridge the gap between nature and urban development. As the final piece of a comprehensive educational masterplan that includes a nursery, kindergarten, and primary school, this institution caters to students in grades 11-13 and features an expansive sports hall.



Architectural Design and Philosophy
The architectural approach to this middle school is deeply rooted in the principles of innovative school architecture. The building acts as a mediator between the natural landscape and the more structured, mineral surfaces of the school grounds. This concept is vividly brought to life through the design of the double-height atrium, which serves as a central hub for interaction and collaboration.



Flexible Learning Spaces
Central to the design philosophy is the idea of flexibility and adaptability. The circulation system, which includes corridors, staircases, and open spaces, is designed to encourage movement and interaction, transforming these areas into active learning zones. Classrooms and laboratories are seamlessly connected to this system, promoting an innovative and dynamic approach to education where students can engage and work in various settings.



Interior and Exterior Integration
A hallmark of this school's design is the fluid integration of interior and exterior spaces. The ground floor features extensive transparency, allowing unobstructed views of the surrounding landscape and creating a sense of continuity between indoor and outdoor environments. This design choice not only enhances the aesthetic appeal but also supports an immersive learning experience.


Sunlight and Energy Efficiency
On the first floor, a double-skin façade plays a crucial role in managing sunlight. This layer filters the sun's rays, providing optimal protection while maintaining a visual connection to the outdoors. The differentiated stretch of this façade ensures that the interior spaces remain well-lit and comfortable, reflecting the principles of sustainable and innovative school architecture.


Community and Educational Impact
The design of the Middle School by Artico Fracassi and Marco Zito goes beyond aesthetics and functionality. It embodies a forward-thinking approach to education, where architecture plays a pivotal role in shaping the learning experience. By fostering interaction, collaboration, and a connection to nature, this school creates an environment conducive to holistic student development.


A Model for Future Schools
This project serves as a model for future educational institutions, showcasing how innovative school architecture can enhance the educational journey. It highlights the importance of designing spaces that are not only functional but also inspiring and adaptable to the evolving needs of students and educators.

The Middle School in Buttrio is more than just an educational facility; it is a beacon of innovative school architecture. Through thoughtful design and strategic integration with its natural surroundings, Artico Fracassi and Marco Zito have created a space that redefines traditional educational environments. This project stands as a testament to the power of architecture in shaping the future of education.

Popular Articles
Popular articles from the community
The Ken Roberts Memorial Delineation Competition (Krob)
As the most senior architectural drawing competition currently in operation anywhere in the world, it draws hundreds of entries each year, awarding the very best submissions in a series of medium-based categories.
Inverted Architecture Installation by Studio Link-Arc: Exploring the Intersection of Architecture and Living Organisms
Inverted Architecture Installation by Studio Link-Arc blends mycelium, sustainability, inverted design, ecological cycles, and urban adaptive architecture in Shenzhen.
Free Architecture Competitions You Can Enter Right Now
No entry fees, real prizes. Here are the best free architecture competitions open for submissions in 2026.
Solar Steam: A Climate-Responsive Architecture That Redefines the Monument
A climate-responsive memorial architecture that transforms heat, decay, and time into a living system reflecting humanity’s ecological impact.
Similar Reads
You might also enjoy these articles
The Ken Roberts Memorial Delineation Competition (Krob)
As the most senior architectural drawing competition currently in operation anywhere in the world, it draws hundreds of entries each year, awarding the very best submissions in a series of medium-based categories.
Waterfront Redevelopment and Urban Revitalization in Mumbai: Forging a New Dawn for Darukhana
A transformative waterfront redevelopment project reimagining Darukhana’s shipbreaking heritage into an inclusive urban future.
OUT-OF-MAP: A Call for Postcards on Feminist Narratives of Public Space
Rhizoma Design and Research Lab invites artists, designers, architects, researchers, and students to reflect on how feminist perspectives can reshape public space. Selected works will be exhibited in Barcelona, October 2026. Submissions open until 15 April 2026.
Documentation Work on Buddhist Wooden Temple
Architectural syncretism and cultural hybridity: A comparative study of the Buddhist temples in Chattogram Hill tracks
Explore Architecture Competitions
Discover active competitions in this discipline
The International Standard for Design Portfolios
The Global Benchmark for Architecture Dissertation Awards
The Global Benchmark for Graduation Excellence
Challenge to design public laboratory
Comments (0)
Please login or sign up to add comments
No comments yet. Be the first to comment!