Minimalist Retail Design in Seongsu-dong: Flat Point Seongsu Store by stof
Exploring minimalist retail design in Seongsu-dong, blending industrial history with modern aesthetics in Flat Point's showroom.
Flat Point, a renowned living design brand, has elevated its presence in South Korea’s Seongsu-dong district with a thoughtfully designed showroom. Created by design studio stof, the showroom seamlessly integrates the area's industrial history with the brand's minimalist ethos. Spanning approximately 680 square meters, the two-story L-shaped building reimagines two former factory spaces to deliver a unique blend of raw industrial character and modern retail sophistication.





A New Space Rooted in Seongsu-dong’s Identity
The Flat Point showroom moves away from its original location in Samseong-dong, opting for the slower, reflective vibe of Seongsu-dong. Known for its transformation from an industrial zone into a vibrant hub of creativity, Seongsu-dong offers a fitting backdrop for Flat Point’s contemporary design philosophy. The showroom’s facade embodies this duality, juxtaposing rough finishes and white tiles with STO textures, reflecting the contrast between Seongsu’s industrial past and its modern revival.
The building’s set-back placement from the bustling main street creates an inviting ambiance, encouraging visitors to explore the design slowly. The outdoor staircase leading to the rooftop adds a dynamic architectural element while preserving the industrial essence of the location.





Contrasts in Time and Space
The design by stof emphasizes the "contrast of time," layering Seongsu-dong's rawness with Flat Point’s sleek identity. This temporal narrative unfolds through contrasting materials and finishes. The rough exterior of the facade contrasts sharply with the clean, minimalist interior, providing a striking visual interplay.
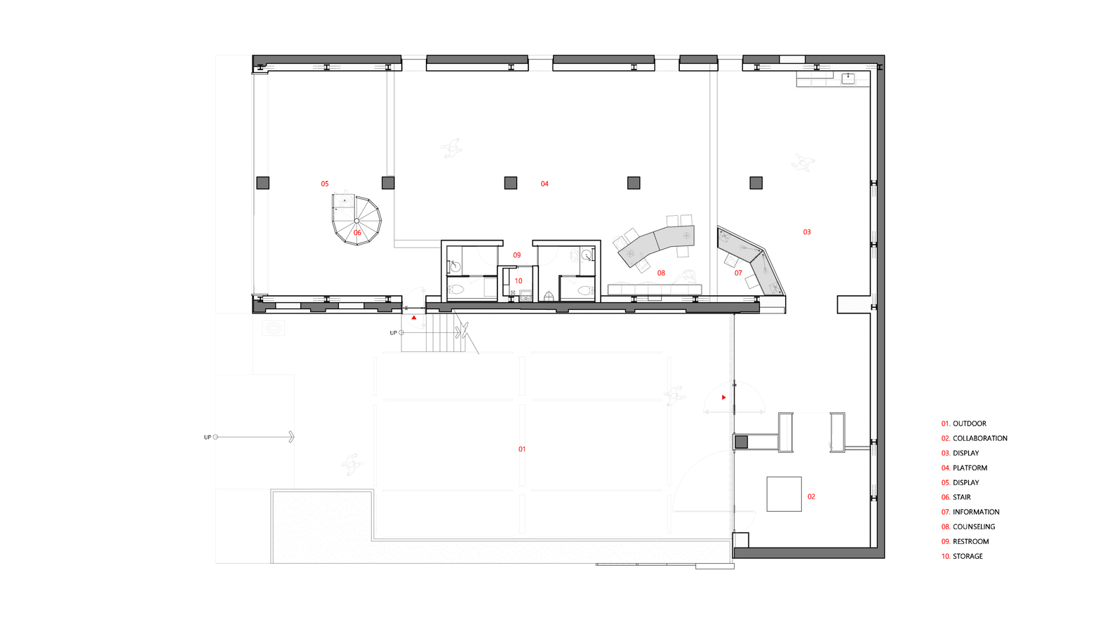
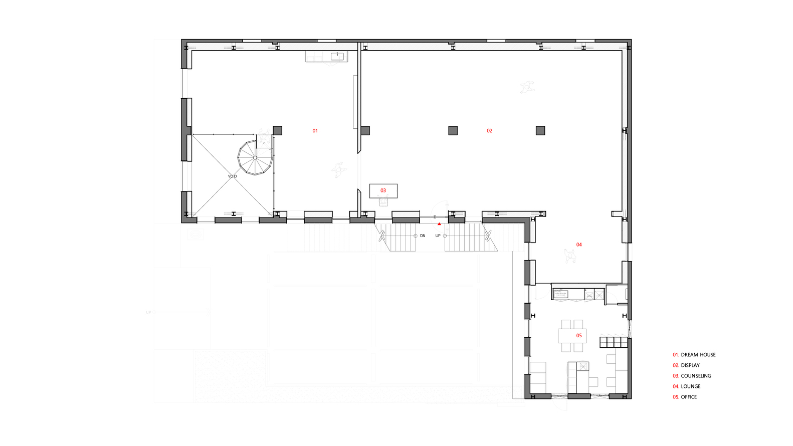
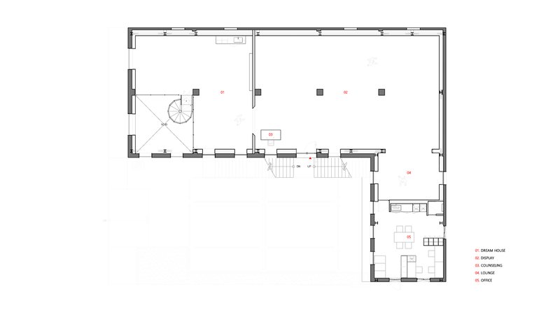
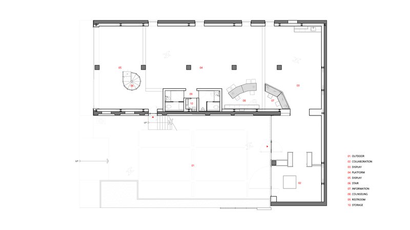
Inside, the circular staircase becomes a defining element, visible from the outside and serving as a structural anchor. It connects the two floors seamlessly while offering a sculptural quality that enhances the space’s visual depth. The staircase also functions as a platform for height transitions, creating varied perspectives for displaying products.




Multi-layered Spatial Experience
The Flat Point Seongsu Store is not just a showroom but a layered journey of design exploration. The ground floor serves as an introduction, with its minimalistic palette and seamless integration of materials across walls, floors, and staircases. The second floor, known as the "Dream House," introduces a darker wooden ceiling, shifting the mood and inviting customers to interact with the products in a more intimate setting.
These contrasting levels are unified by a shared design language, with thin layers of metal and wood creating depth and texture. The intentional use of uniform materials emphasizes Flat Point’s minimalist philosophy while adding subtle sophistication to the space.




Integration of Function and Aesthetics
Every aspect of the showroom is meticulously designed to balance function and aesthetics. The minimalistic surfaces create a continuous visual flow between interior and exterior spaces, while contrasting textures and materials add complexity to the design. The showroom becomes more than a retail space; it is a canvas for inspiration and contemplation, reflecting the values of Flat Point and its users.






A Testament to Modern Retail Design
Flat Point Seongsu Store by stof exemplifies the potential of minimalist retail design to create meaningful spaces. By blending Seongsu-dong’s industrial heritage with the brand’s modern identity, the showroom offers a timeless retail experience that transcends its function. It captures the essence of Seongsu-dong’s evolution, becoming a space for both inspiration and discovery.



All Photographs are work of Donggyu Kim
Popular Articles
Popular articles from the community
Free Architecture Competitions You Can Enter Right Now
No entry fees, real prizes. Here are the best free architecture competitions open for submissions in 2026.
Solar Steam: A Climate-Responsive Architecture That Redefines the Monument
A climate-responsive memorial architecture that transforms heat, decay, and time into a living system reflecting humanity’s ecological impact.
Alton Cliff House: A Harmonious Retreat by f2a Architecture in Lake Country, Canada
Alton Cliff House blends corten steel, prefabrication, and sustainable design, creating a luxurious, energy-efficient retreat perched on Canadian cliffs.
Atelier Macri Concept Store Interior Design by CASE-REAL
Atelier Macri store features a "ko" counter, walnut wood details, cork displays, blending retail, gallery, and seamless customer experiences.
Similar Reads
You might also enjoy these articles
The Ken Roberts Memorial Delineation Competition (Krob)
As the most senior architectural drawing competition currently in operation anywhere in the world, it draws hundreds of entries each year, awarding the very best submissions in a series of medium-based categories.
Waterfront Redevelopment and Urban Revitalization in Mumbai: Forging a New Dawn for Darukhana
A transformative waterfront redevelopment project reimagining Darukhana’s shipbreaking heritage into an inclusive urban future.
OUT-OF-MAP: A Call for Postcards on Feminist Narratives of Public Space
Rhizoma Design and Research Lab invites artists, designers, architects, researchers, and students to reflect on how feminist perspectives can reshape public space. Selected works will be exhibited in Barcelona, October 2026. Submissions open until 15 April 2026.
Documentation Work on Buddhist Wooden Temple
Architectural syncretism and cultural hybridity: A comparative study of the Buddhist temples in Chattogram Hill tracks
Explore Architecture Competitions
Discover active competitions in this discipline
The International Standard for Design Portfolios
The Global Benchmark for Architecture Dissertation Awards
The Global Benchmark for Graduation Excellence
Challenge to reimagine the Iron Throne
Comments (0)
Please login or sign up to add comments
No comments yet. Be the first to comment!