Minimalist Sustainable Houses in Germany: Set Houses with One Pillar by Buero Wagner
Two minimalist sustainable homes in Germany unite family living, eco-conscious design, and spatial innovation near Lake Starnberg by Buero Wagner.
In the foothills of the Bavarian Alps, just 20 kilometers from Munich, Buero Wagner has redefined the concept of minimalist sustainable houses in Germany with the Set Houses with One Pillar. Located in Söcking, near Lake Starnberg, these two homes exemplify a bold architectural strategy that balances minimal environmental impact, smart urban densification, and aesthetic clarity.




Urban Redensification Through Thoughtful Demolition
Originally, the plot housed a single, low-quality 1950s dwelling. As part of the "Vision Starnberg 2025" initiative, the plan aimed to densify existing plots rather than expand into undeveloped land. Though the broader urban strategy was halted in 2021, the architects at Buero Wagner embraced the spirit of redensification. Instead of refurbishing the structurally and materially weak original house, they opted for demolition. The building materials were carefully processed into recyclables on-site, supporting a circular construction approach.




Dual Homes with Distinct Interiors and Shared DNA
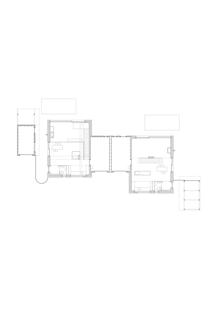
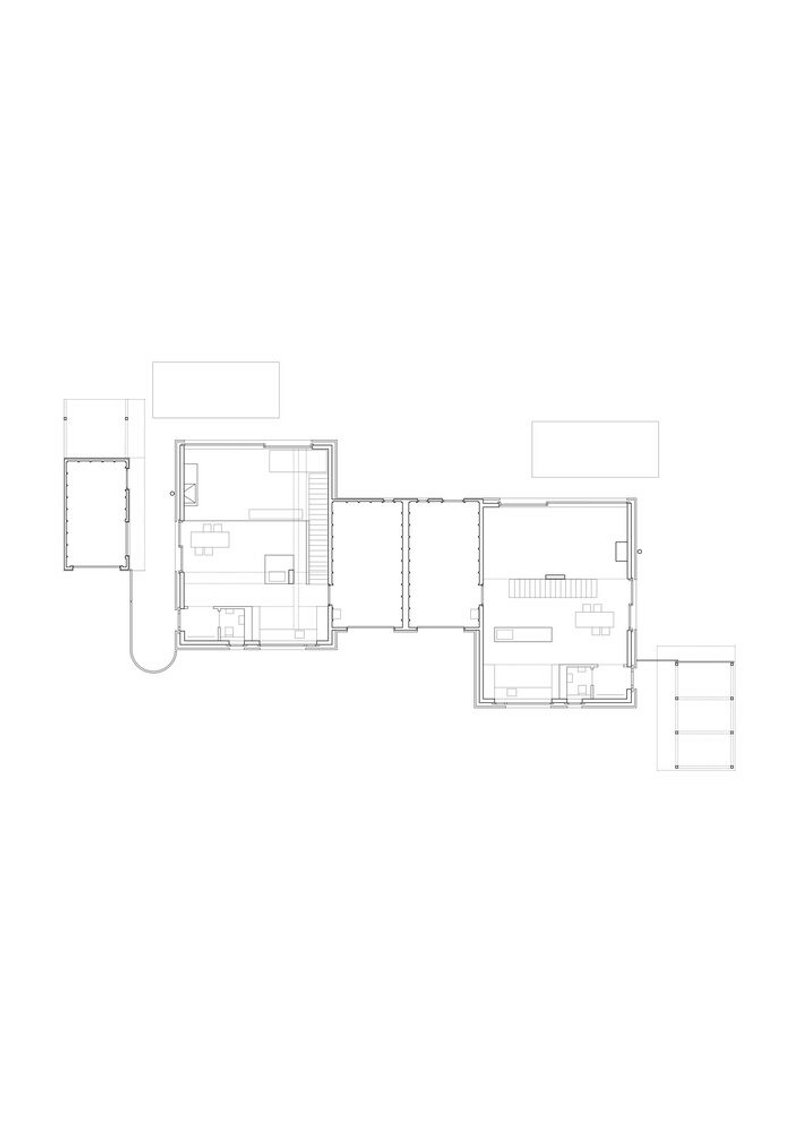
The two houses were designed for a multigenerational family: one for the father, the other for his son and family. Though visually similar from the outside, the interiors are uniquely tailored to the needs of each occupant. Aligned along the street and slightly recessed to allow for green front gardens, the houses open socially toward the street with kitchens positioned upfront, while living areas and private gardens nestle in the rear.





Designing from the Structure Inward
Each house measures just 90 square meters per floor, promoting compact living without compromise. The spatial heart of each home is the first floor: a singular open volume supported by one central column. There are no interior walls—only subtle level shifts in floors and ceilings that define zones for cooking, dining, and lounging. A custom oak box houses the kitchen, WC, and entry area, integrating built-in furniture like wardrobes and worktops directly into the architectural form.




Material Honesty and Structural Efficiency
The lower floors are constructed in sandblasted concrete, offering both robustness and tactile softness. The upper floors, made of solid wood, reference traditional regional construction and generate intimate, warm atmospheres. Materials remain exposed wherever possible: concrete walls are left bare, floors are monolithic, and oak elements double as functional fixtures. Steel is used selectively, crafted into railings, stair details, and fireplaces.



Sustainability Through Simplicity and Innovation
True to its ethos as a minimalist sustainable house, the project employs bio-based insulation and charred wood cladding that eliminates the need for chemical preservatives. The charred timber not only echoes the visual language of local barns but provides natural resistance to weather and pests. Energy efficiency is prioritized through air-source heat pumps, photovoltaic panels, and concrete core activation for radiant heating. With minimal cladding, no superfluous layers, and energy systems built into the structure, the architecture manifests a quiet yet powerful sustainability.




Architecture that Merges Heritage, Modernity, and Ecology
Buero Wagner’s Set Houses with One Pillar demonstrate how modern architecture in Germany can simultaneously honor tradition, push spatial boundaries, and serve future-forward ecological goals. By merging minimalist design principles with rigorous sustainability strategies and contextual sensitivity, these homes offer a blueprint for what minimalist sustainable housing in Germany can achieve—intimate, thoughtful, and resilient.



All Photographs are works of Kim Fohmann
Popular Articles
Popular articles from the community
1-1 Architects Builds a Nagoya House and Office from Decades of Stockpiled Timber
A 69-square-meter tower in dense residential Nagoya transforms surplus lumber into a home and workplace for a construction company.
boq architekti Fits a Gabled Family House onto a Tiny Moravian Hillside Plot with No Room for a Garden
A 115 square meter home in South Moravia trades a garden for a rooftop terrace and a fully glazed facade facing the village below.
20 Most Popular Furniture Design Projects of 2025
Modular street systems, parametric benches, and insect hotels: the furniture design projects that captivated architects on uni.xyz in 2025.
BICA Arquitectos Buries a Coastal Home in a Man-Made Dune on Portugal's Tróia Peninsula
A 300-square-meter house of timber, sand mortar, and travertine dissolves into the dune landscape it helped regenerate on the Alentejo coast.
Similar Reads
You might also enjoy these articles
BICA Arquitectos Buries a Coastal Home in a Man-Made Dune on Portugal's Tróia Peninsula
A 300-square-meter house of timber, sand mortar, and travertine dissolves into the dune landscape it helped regenerate on the Alentejo coast.
The Ranch Mine Runs a White Pavilion Parallel to a 1970s House in Paradise Valley
A hemlock-lined addition reframes desert living by pulling light, views, and a courtyard pool from an outdated Arizona home.
Architects Group RAUM Stacks Offset White Volumes into a Compact Office Tower in Busan
A 524-square-meter building on a tight corner lot in Haeundae plays with sunlight rights and shifting floor plates to create generous terraces.
Studio Gram Unfurls a Concrete Curve Through an Adelaide Queen Anne Villa
In Rose Park, a billowing concrete threshold stitches a century-old house to a sun-chasing pavilion organized around an existing pool.
Explore Architecture Competitions
Discover active competitions in this discipline
The International Standard for Design Portfolios
The Global Benchmark for Architecture Dissertation Awards
The Global Benchmark for Graduation Excellence
Challenge to reimagine the Iron Throne
Comments (0)
Please login or sign up to add comments
No comments yet. Be the first to comment!