Modern Alpine Houses in Liechtenstein: Blending Tradition with Contemporary Design
Modern Alpine houses in Liechtenstein by Sandro Durrer blend traditional mountain architecture with contemporary design and natural materials.
Introduction to Modern Alpine Houses in Liechtenstein
Nestled against the steep slopes of Malbun, Liechtenstein, the Malbun Houses designed by Sandro Durrer offer a masterful blend of traditional Alpine architecture and modern interior design. Completed in 2023, these three homes harmoniously interact with the rugged mountain landscape while creating warm, contemporary living spaces. The project exemplifies how modern Alpine houses in Liechtenstein can embrace local building traditions while elevating the residential experience through thoughtful craftsmanship and natural materials.



Traditional Alpine Inspiration with a Modern Twist
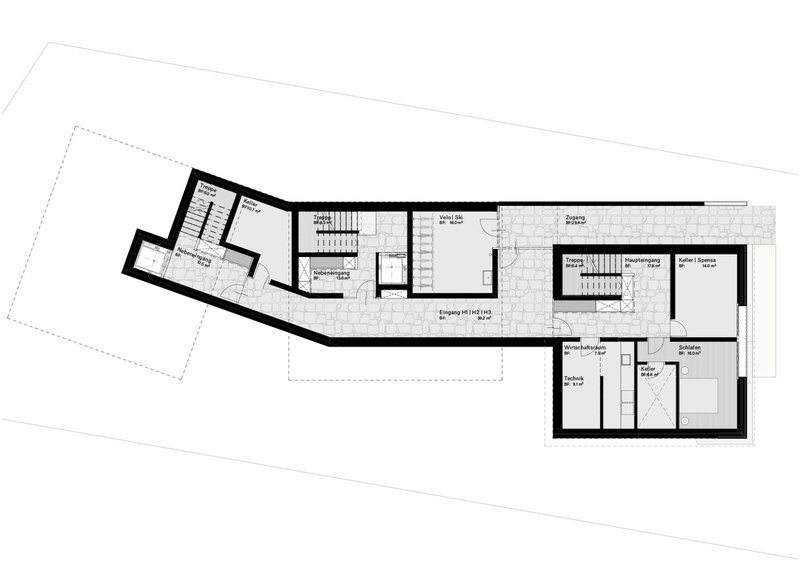
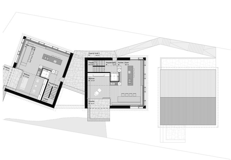
The exterior design of the Malbun Houses is deeply rooted in the traditional Maiensäss style. Historically, these modest wooden structures served as seasonal homes for farmers during the summer months in the Alps. Durrer’s approach preserves this rustic character while introducing refined architectural details that align with modern sensibilities.


The houses are clad in timber, with facades that reflect the simplicity and functionality of Alpine dwellings. Despite their shared design language, each house stands independently, with subtle variations in placement and form that respond to the natural contours of the steep terrain. This careful adaptation ensures that the homes integrate seamlessly into the mountainous landscape, enhancing the overall visual harmony.


Interior Design: A Celebration of Natural Materials
Inside the Malbun Houses, the restrained exterior aesthetic transitions into an atmosphere of contemporary comfort and warmth. Natural materials, carefully selected for their quality and texture, dominate the interior palette. Pale oak flooring extends throughout the spaces, providing a soft, light base that complements the rugged surroundings. Oak wall paneling further enhances the organic ambiance, creating a seamless connection between the built environment and nature.


The kitchen is a focal point, featuring a green slate countertop that introduces a subtle contrast to the wood-dominated interiors. The tactile quality of the stone complements the timber, reflecting the project’s commitment to craftsmanship and attention to detail. Every element, from the custom cabinetry to the hand-finished joinery, underscores the importance of precision and quality in the realization of modern Alpine houses in Liechtenstein.


Natural Light and Architectural Transparency
One of the most striking features of the Malbun Houses is the thoughtful use of natural light. A wide strip of windows runs along the living spaces, allowing sunlight to flood the interiors and offering uninterrupted views of the Alpine landscape. This generous glazing is partially concealed behind a wooden slat façade, acting as a delicate filter that creates an ever-changing interplay of light and shadow.

The dynamic relationship between interior and exterior is further emphasized by the seasonal shifts in light. During spring, the sunlight casts crisp shadows, while in winter, it bathes the interiors in a softer, diffused glow. This responsive design approach ensures that the homes not only embrace their surroundings but also evolve with the natural rhythms of the environment.

Craftsmanship and Architectural Harmony
The architectural cohesion between the three houses is a defining characteristic of the project. While each residence stands independently, their design language is unified through material consistency and structural alignment. The houses form a subtle ensemble that respects both the individuality of each home and the collective identity of the site.

Handcrafted details play a central role in maintaining this balance. From exposed timber beams to finely crafted doors and built-in furnishings, every element reflects the precision and care associated with traditional Alpine craftsmanship. This dedication to materiality and detailing elevates the Malbun Houses beyond standard residential architecture, positioning them as exemplary modern Alpine houses in Liechtenstein.

Living Experience in a Modern Alpine Environment
The Malbun Houses were not merely designed as architectural statements but as homes that promote well-being and a connection to nature. The spatial arrangement fosters a sense of calm and balance, encouraging residents to engage with their surroundings while enjoying the comforts of modern living. Each house offers an intimate retreat where light, material, and landscape converge to create an environment conducive to both relaxation and personal growth.


This holistic design philosophy extends beyond aesthetics, shaping the daily experience of residents. Large windows frame panoramic mountain views, while natural ventilation and passive solar design ensure optimal indoor comfort throughout the year. The result is a living environment that aligns with the principles of sustainable architecture while celebrating the timeless beauty of the Alpine region.

Redefining Modern Alpine Houses in Liechtenstein
The Malbun Houses by Sandro Durrer represent a contemporary interpretation of Alpine architecture that respects tradition while embracing modernity. By seamlessly integrating natural materials, craftsmanship, and light, the project redefines the concept of modern Alpine houses in Liechtenstein. These homes stand as a testament to the enduring relevance of vernacular architecture when combined with innovative design principles. As the demand for contextually sensitive and sustainable mountain dwellings grows, the Malbun Houses offer a compelling blueprint for future residential developments in Alpine regions.





All photographs are works of Samuel Holzner
Popular Articles
Popular articles from the community
Solar Steam: A Climate-Responsive Architecture That Redefines the Monument
A climate-responsive memorial architecture that transforms heat, decay, and time into a living system reflecting humanity’s ecological impact.
Inverted Architecture Installation by Studio Link-Arc: Exploring the Intersection of Architecture and Living Organisms
Inverted Architecture Installation by Studio Link-Arc blends mycelium, sustainability, inverted design, ecological cycles, and urban adaptive architecture in Shenzhen.
The Ken Roberts Memorial Delineation Competition (Krob)
As the most senior architectural drawing competition currently in operation anywhere in the world, it draws hundreds of entries each year, awarding the very best submissions in a series of medium-based categories.
Atelier Macri Concept Store Interior Design by CASE-REAL
Atelier Macri store features a "ko" counter, walnut wood details, cork displays, blending retail, gallery, and seamless customer experiences.
Similar Reads
You might also enjoy these articles
Bamboo Housing Challenge 2026: Design Affordable, Sustainable Homes Using Bamboo
An international design competition by Bamboo U and IBUKU inviting architects and designers to reimagine affordable housing using bamboo — with the winning design built full-scale in Bali.
Computational Design & Education: Beegraphy Design Awards Introduces 7th Category (Featuring Jiyun's Innovative Approach)
Dive into Beegraphy’s 7th Design Awards category, where computational design meets education to create immersive, interactive learning tools, inspired by Jiyun’s work.
From Parametric Lighting to Urban Furniture: Join the 2nd Workshop in Beegraphy’s Computational Design Series
Dive into Cutting-Edge Design Techniques and Practical Applications with Industry Experts
Explore Architecture Competitions
Discover active competitions in this discipline
The International Standard for Design Portfolios
The Global Benchmark for Architecture Dissertation Awards
The Global Benchmark for Graduation Excellence
Challenge to reimagine the Iron Throne
Comments (0)
Please login or sign up to add comments
No comments yet. Be the first to comment!