Modern Architectural Renovation in Ljubljana: The Ring House by OFIS Architects
This article delves into the Ring House project in Ljubljana, showcasing OFIS Architects' blend of historic charm with modern renovation.
Nestled in the historic suburbs of Ljubljana, Slovenia, the Ring House stands as a testament to the innovative spirit of modern architectural renovation. Spearheaded by the renowned OFIS Architects, this project seamlessly blends early 20th-century modernism with contemporary design, creating a unique hybrid that revitalizes its surroundings.





The Original Structure: A Blend of History and Modernity
Embracing Early Modernism
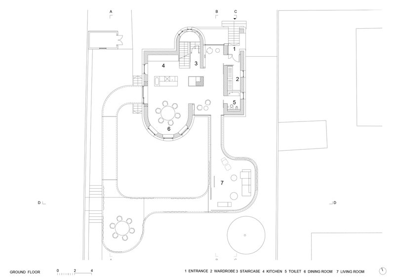
The original structure, a cubic volume typical of the 1930s' early modernist era, presented a unique challenge and opportunity for renovation. Its semicircular extensions and minimalistic details hinted at a former elegance, overshadowed by later alterations. The task was to restore its original charm while introducing a modern twist.




The Renovation: Restoring Elegance and Adding Innovation
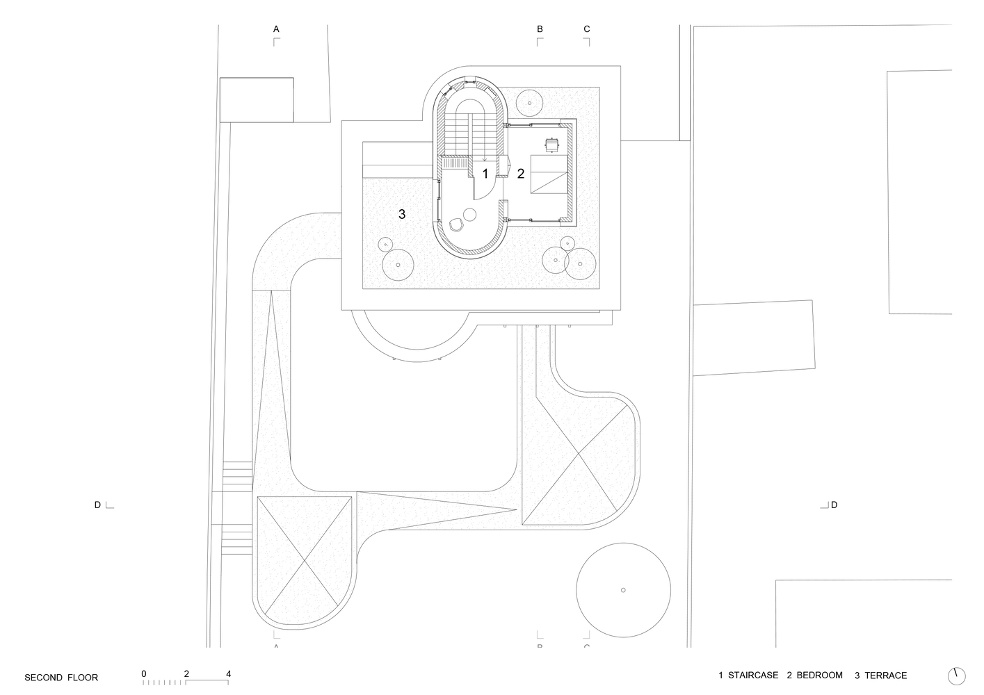
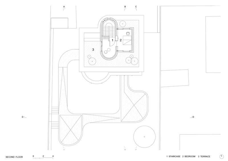
Reimagining the Roof and Terraces
The first phase of renovation focused on peeling back the layers of past modifications, particularly the 1980s addition of a classic slanted roof. The restoration sought to reclaim the house's former aesthetic, replacing the roof with a smaller terrace that complemented the existing volume gracefully.





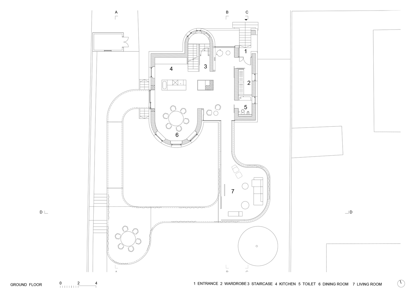
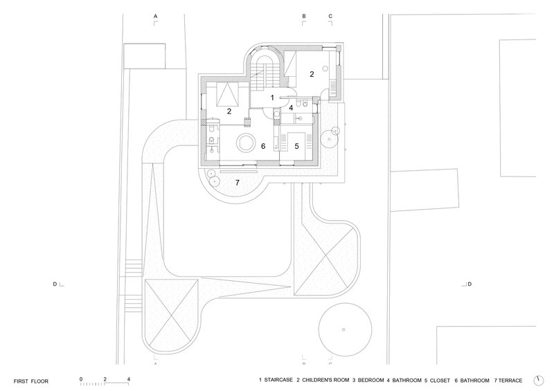
The Architectural Challenge: Connecting House and Garden
A central aspect of the Ring House's transformation was reestablishing a functional connection between the living spaces and the expansive garden. OFIS Architects devised a novel solution—a columnar loop extension acting as a bridge between the indoors and the lush outdoors.





The Extension: A Cruciform Corridor as a Garden Pavilion
Creating Inner and Outer Dialogues
The extension, a cruciform corridor, encloses a serene "Zen" atrium while gently descending to merge the villa's interior with the garden. This design move not only enhances the property's spatial experience but also segments the garden into intimate, interactive spaces.






Architectural Promenade and Transparency
Embracing classic modernist themes, the extension introduces an architectural promenade that encourages movement and exploration. The incorporation of ramps, transparency, and a free floor plan invites light and nature into the home, creating a seamless flow between different spaces.





A Dialogue Between Eras
The Ring House by OFIS Architects is more than a renovation; it's a dialogue between architectural eras. Through an eight-year journey, the project has emerged as a coherent composition that respects the site's history while boldly stepping into modernity. It stands as a beacon of modern architectural renovation in Ljubljana, showcasing the potential to breathe new life into historical structures.



All the photographs are work of Janez Martinčič, Tomaž Gregorič
Popular Articles
Popular articles from the community
Atelier Macri Concept Store Interior Design by CASE-REAL
Atelier Macri store features a "ko" counter, walnut wood details, cork displays, blending retail, gallery, and seamless customer experiences.
An Miên Lumière Cafe by xưởng xép, Ho Chi Minh City, Vietnam
An industrial-inspired café where layered steel and warm light create a dynamic, immersive environment shaped by reflection, depth, and perception.
The Ken Roberts Memorial Delineation Competition (Krob)
As the most senior architectural drawing competition currently in operation anywhere in the world, it draws hundreds of entries each year, awarding the very best submissions in a series of medium-based categories.
Treehouse Apartment: A Warm Timber Interior Blending Craft, Play, and Contemporary Living
Warm timber apartment with integrated treehouse, combining natural materials, craftsmanship, and playful design to create a flexible, family-oriented living environment.
Similar Reads
You might also enjoy these articles
The Ken Roberts Memorial Delineation Competition (Krob)
As the most senior architectural drawing competition currently in operation anywhere in the world, it draws hundreds of entries each year, awarding the very best submissions in a series of medium-based categories.
Waterfront Redevelopment and Urban Revitalization in Mumbai: Forging a New Dawn for Darukhana
A transformative waterfront redevelopment project reimagining Darukhana’s shipbreaking heritage into an inclusive urban future.
OUT-OF-MAP: A Call for Postcards on Feminist Narratives of Public Space
Rhizoma Design and Research Lab invites artists, designers, architects, researchers, and students to reflect on how feminist perspectives can reshape public space. Selected works will be exhibited in Barcelona, October 2026. Submissions open until 15 April 2026.
Documentation Work on Buddhist Wooden Temple
Architectural syncretism and cultural hybridity: A comparative study of the Buddhist temples in Chattogram Hill tracks
Explore Architecture Competitions
Discover active competitions in this discipline
The International Standard for Design Portfolios
The Global Benchmark for Architecture Dissertation Awards
The Global Benchmark for Graduation Excellence
Challenge to reimagine the Iron Throne
Comments (0)
Please login or sign up to add comments
No comments yet. Be the first to comment!