Modern Architecture in Urban Homes
Explore the innovative design of Warmblack House in Bangkok by Greenbox Design, focusing on modern architecture, privacy, and functionality.
The Concept of Modern Architecture in Urban Homes
Redefining Urban Space Through Innovative Design
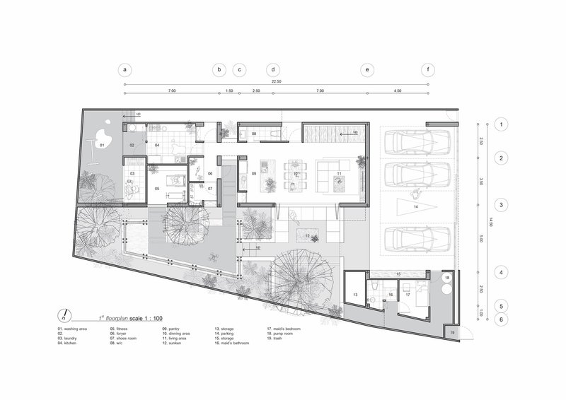
The Warmblack House is a testament to the adaptability and creativity necessary in today's urban landscapes. Surat Pongsupan & Panapong Seetao, the lead architects, have masterfully crafted an L-shaped layout to enhance privacy while allowing ample natural sunlight. The division of the structure into three parts optimizes air ventilation and creates communal and private spaces that coexist harmoniously.


Integrating Nature with Modern Architecture
One of the standout features of the Warmblack House is its strategic orientation. The backyard, facing southwest, leverages natural elements to improve living conditions. The design takes into account the local wind patterns and the shading provided by neighboring buildings, which is especially beneficial for children's outdoor activities and reducing heat inside the home during the sunnier months.


Interior Design and Functionality
Creating a Cohesive Aesthetic with Personal Touches
The interior of Warmblack House reflects a blend of contemporary and comforting elements, mirroring the personalities of its inhabitants—a trendy, modern man and a gentle, sweet woman. The use of dark grey materials such as wood and stone for the exterior is balanced with warm interior tones, establishing an elegant yet welcoming atmosphere.



Practical and Stylish Living Spaces
Every area within the Warmblack House is designed with functionality and style in mind. From the kitchen’s white-cream-colored tiles that amplify light and space to the dining area’s detailed marble, each choice is both aesthetic and practical. The furniture is versatile, catering to both family gatherings and social events without sacrificing comfort or style.



Sustainable Features and Outdoor Integration
Emphasizing Sustainability and Outdoor Living
The landscape design of Warmblack House does not adhere strictly to Western or Eastern styles but instead creates a hybrid that enhances the approach to the main living areas. The use of bushes and willows adds depth and a sense of continuity from the indoor spaces to the outdoors, reinforcing the home’s connection to its natural surroundings.



Architectural Innovation at Warmblack House
The Warmblack House by Greenbox Design is a pioneering project in modern architecture, showcasing how homes can be both private sanctuaries and fully integrated into their urban environments. Its design is a forward-thinking response to the challenges of contemporary urban living, making it a landmark project in Bangkok's architectural landscape.



All photographs are work of Panoramic Studio
Popular Articles
Popular articles from the community
Atelier Macri Concept Store Interior Design by CASE-REAL
Atelier Macri store features a "ko" counter, walnut wood details, cork displays, blending retail, gallery, and seamless customer experiences.
Inverted Architecture Installation by Studio Link-Arc: Exploring the Intersection of Architecture and Living Organisms
Inverted Architecture Installation by Studio Link-Arc blends mycelium, sustainability, inverted design, ecological cycles, and urban adaptive architecture in Shenzhen.
Split House: A Compact Urban Home Blending Privacy, Light, and Flexible Living in Japan
Compact Japanese home featuring DOMA space, flexible café potential, passive lighting, privacy zoning, and sustainable urban living design.
Solar Steam: A Climate-Responsive Architecture That Redefines the Monument
A climate-responsive memorial architecture that transforms heat, decay, and time into a living system reflecting humanity’s ecological impact.
Similar Reads
You might also enjoy these articles
Architectural Competition: Create a Luxury Waterfront Community in the UAE!
Mira Developments announces an open competition for the pre-concept design of Mira Coral Bay in Ras Al Khaimah, UAE
Parametric Design: What Can You Learn from the 1st Workshop of Beegraphy?
Discover the Fundamentals and Advanced Techniques of Parametric Design
Feast of flight factory
A new ecological order with sustainable food resources-insects
Beyond Blueprints : How Architecture Presentation Boards Define The Design Narratives?
Unveiling the Art and Strategy Behind Architectural Storytelling
Explore Architecture Competitions
Discover active competitions in this discipline
The International Standard for Design Portfolios
The Global Benchmark for Architecture Dissertation Awards
The Global Benchmark for Graduation Excellence
Challenge to reimagine the Iron Throne
Comments (0)
Please login or sign up to add comments
No comments yet. Be the first to comment!