Modern Brazilian Architecture: A Deep Dive into A2 House by Caracho Arquitetos
Explore A2 House in Bauru by Caracho Arquitetos, a masterpiece of modern Brazilian architecture blending natural elements with contemporary design.
Brazil has long been a hotspot for architectural innovation, and A2 House in Bauru stands as a testament to this modern movement. Designed by Caracho Arquitetos and completed in 2018, this residence exemplifies how contemporary design techniques can be harmoniously integrated with natural elements.


The Architectural Design of A2 House
Exterior Features and Facade
The facade of A2 House is a marvel of modern Brazilian architecture. It features two striking concrete gables supported by robust concrete pillars. These structural elements are not only functional but also contribute to the aesthetic, framing the house beautifully against the Bauru skyline. The use of large glass panels and charred wood panels further enhances the connection between the interior and the lush surroundings, emphasizing the transparency and openness that are hallmarks of contemporary Brazilian design.


Interior Layout and Design Elements
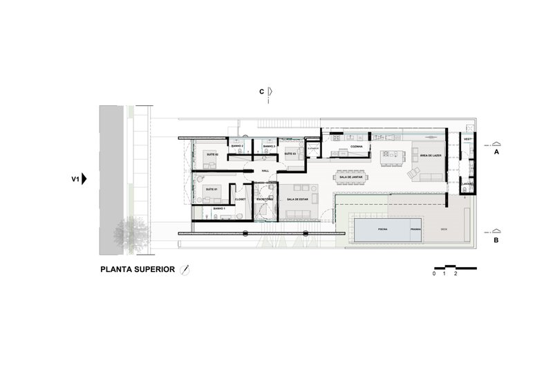
Internally, A2 House continues to showcase the best of modern Brazilian architecture with its open floor plans and seamless integration of different spaces. The main entrance, accessible via a concrete staircase, leads to a multifunctional area that currently serves as an office. This space connects internally to various parts of the house, promoting a fluid living environment.
The living areas are characterized by wooden flooring, which extends out to an external deck, providing a smooth transition between indoor and outdoor spaces. The kitchen features modern amenities and stylish countertops, complemented by sleek glass detailing.




Highlighting Brazilian Artistry in Interior Design
One of the most distinctive aspects of A2 House is its interior furnishings, which include pieces by renowned Brazilian artists like Sérgio Rodrigues and Marcel Breuer. These pieces are not merely functional but are curated carefully to reflect the artistic sensibility and cultural richness of Brazil.




Sustainable Elements in Modern Brazilian Architecture
Sustainability is a key component of modern Brazilian architecture, and A2 House incorporates several eco-friendly practices. The use of natural materials like wood and stone not only enhances the aesthetic appeal but also ensures that the house remains environmentally integrated and sustainable.




A2 House by Caracho Arquitetos is a prime example of modern Brazilian architecture. It beautifully balances design innovation with functional practicality, all while respecting the natural environment. This residence not only serves as a comfortable living space but also as a beacon of architectural inspiration in Brazil.






All photographs are work of Daniel Santo