Modern Brazilian House Design: RA House by Fernandes Atem Arquitetos
RA House in Brazil by Fernandes Atem Arquitetos exemplifies modern Brazilian house design, blending climate adaptation, material honesty, and family-centered living.
The RA House by Fernandes Atem Arquitetos is a remarkable example of modern Brazilian house design, where simplicity, climate adaptation, and natural integration define the architectural language. Completed in 2022, this 377 m² residence responds to the needs of a couple seeking a permanent home away from the urban center, while still creating a welcoming place for family gatherings.
A Home Rooted in Family and Memory
The design concept of the RA House revolves around the idea of memory and domestic life. The kitchen, the heart of the home, serves as the primary gathering space where family traditions continue. Beyond functionality, the architects sought to recreate the atmosphere of warm Brazilian homes where interior life naturally blends with the outdoors, making the house both practical for everyday living and expansive for social occasions.


Climate-Responsive Architecture in Brazil
The house demonstrates how modern Brazilian house design harmonizes with its environment. Situated on a west-facing site, the design strategically positions social and private spaces toward the north, opening onto generous terraces along the south side to capture natural ventilation. Service areas and the vehicle shelter are located in the front, buffering the living spaces from direct sun exposure and ensuring privacy. The architectural response highlights natural light, cross ventilation, and shading as essential elements of tropical modernism.




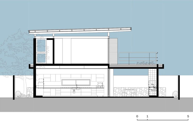
Pavilion-Like Layout and Structural Logic
The RA House adopts a pavilion-inspired configuration, with distinct but fluid zones. The ground floor integrates living, dining, and kitchen spaces, while the upper level provides private bedrooms with a more intimate atmosphere. The structure is defined by reinforced concrete pillars and inverted beams, arranged in a modular grid of 4.80m x 6.00m for the main spans and 4.80m x 4.80m for the lateral spans. This geometric rigor provides both order and flexibility, allowing for open, adaptable interiors.




Materiality: Concrete, Wood, and Stone
Materiality plays a central role in shaping the tactile experience of the RA House. On the ground floor, exposed concrete defines the structural character, complemented by natural stone, gray quartzite, and hydraulic tiles manufactured locally. These robust materials are balanced by warm wooden ceilings, which create intimacy and comfort. Upstairs, the atmosphere shifts toward lighter tones: wooden floors and ceilings bring warmth to the private areas, while neutral masonry walls and abundant natural light enhance serenity.



Roof Design and Lightness
The most striking architectural gesture is the floating roof, supported by a network of wooden beams and topped with a double-tile aluminum system, including thermal and acoustic insulation. This expressive roofline hovers above the upper walls, filtering natural light and emphasizing the airy quality of the interiors. The floating roof not only defines the silhouette of the house but also strengthens its modern Brazilian identity.




Indoor-Outdoor Integration
One of the defining qualities of modern Brazilian house design is the seamless relationship between architecture and landscape. At RA House, terraces and wooden decks expand the living spaces outward. The south terrace, built with wooden slats, allows for rainwater infiltration, blending ecological sensibility with spatial beauty. Lush vegetation frames the house, reinforcing the tactile presence of natural materials and strengthening the dialogue between the built and natural environment.


A Synthesis of Tradition and Modernity
The RA House balances contemporary structural solutions with traditional Brazilian values of hospitality, climate adaptation, and material honesty. Its austere geometry, tactile richness, and pavilion-like layout make it not just a house but an exploration of spatiality and tectonics that reflects the legacy of Brazilian modernism.




Fernandes Atem Arquitetos’ RA House stands as a model of modern Brazilian house design—a home that blends practicality with poetic design, structural rigor with warmth, and modern simplicity with the memories of family life. It is a house deeply rooted in place, memory, and the timeless values of Brazilian architecture.




Popular Articles
Popular articles from the community
On the Brooks House by Monsoon Collective – A Contemporary Kerala Home Rooted in Tradition
Kerala home blending tradition and modernity with water-inspired design, brick architecture, courtyard planning, and sustainable rainwater harvesting strategies.
Louis Malle Cinema: A Limestone Cultural Landmark Revitalizing Community Life in Prayssac
Limestone cinema extension with public forecourt, blending heritage and modern design to create flexible cultural spaces and strengthen community interaction.
The Ken Roberts Memorial Delineation Competition (Krob)
As the most senior architectural drawing competition currently in operation anywhere in the world, it draws hundreds of entries each year, awarding the very best submissions in a series of medium-based categories.
Inverted Architecture Installation by Studio Link-Arc: Exploring the Intersection of Architecture and Living Organisms
Inverted Architecture Installation by Studio Link-Arc blends mycelium, sustainability, inverted design, ecological cycles, and urban adaptive architecture in Shenzhen.
Similar Reads
You might also enjoy these articles
Bamboo Housing Challenge 2026: Design Affordable, Sustainable Homes Using Bamboo
An international design competition by Bamboo U and IBUKU inviting architects and designers to reimagine affordable housing using bamboo — with the winning design built full-scale in Bali.
Computational Design & Education: Beegraphy Design Awards Introduces 7th Category (Featuring Jiyun's Innovative Approach)
Dive into Beegraphy’s 7th Design Awards category, where computational design meets education to create immersive, interactive learning tools, inspired by Jiyun’s work.
From Parametric Lighting to Urban Furniture: Join the 2nd Workshop in Beegraphy’s Computational Design Series
Dive into Cutting-Edge Design Techniques and Practical Applications with Industry Experts
Introducing Sphere by UNI: Pioneering a New Era in AEC Industry
Unlocking Global Potential with BIM and Agile Management
Explore Architecture Competitions
Discover active competitions in this discipline
The International Standard for Design Portfolios
The Global Benchmark for Architecture Dissertation Awards
The Global Benchmark for Graduation Excellence
Challenge to reimagine the Iron Throne
Comments (0)
Please login or sign up to add comments
No comments yet. Be the first to comment!