Modern Brazilian House Design: São Carlos Residence by Gui Mattos
The São Carlos Residence showcases modern Brazilian house design with an L-shaped layout, minimalist materials, and seamless indoor-outdoor integration.
A Discreet Facade Hiding Architectural Elegance
The São Carlos Residence, designed by Gui Mattos and situated in São Carlos, Brazil, is a masterful example of modern Brazilian house design. From the outside, the home presents a solid, almost hermetic facade, marked by minimalism and discretion. The primary entrance, a recessed wooden door, provides an understated invitation into a home that surprises with its light-filled and expansive interiors.



The facade is composed of three defining materials: the ground floor in exposed concrete, the first floor in white-painted masonry, and the warm use of wood. These materials are harmonized in both function and form, with wood serving as doors, slats, and panels. This layered design aesthetic emphasizes the residence’s modern yet grounded architectural character.



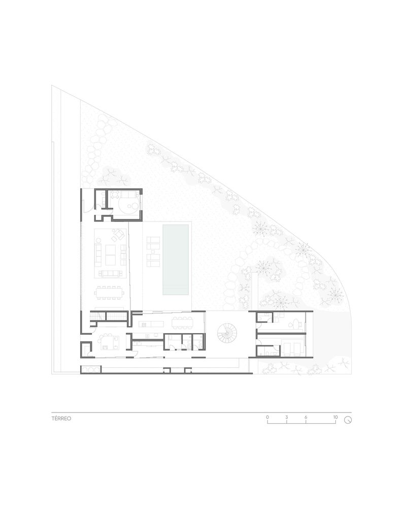
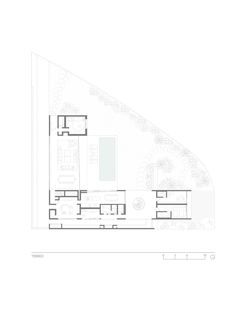
An L-Shaped Design Maximizing Space and Views
Situated on a corner lot, the São Carlos Residence takes on an L-shaped layout, opening up to a sprawling private garden. This design not only maximizes the use of space but also takes full advantage of the natural beauty surrounding the property. Residents enjoy an unhindered view of distant hills and breathtaking sunsets, a feature that defines the essence of modern Brazilian architecture’s connection to nature.


The layout creates an intimate balance between privacy and openness. While the facade shields the home from the public view, the inner areas are designed to foster a seamless relationship between indoor and outdoor spaces.


A Spacious and Integrated Interior
Upon entering, visitors are greeted by a spacious and luminous living area that integrates seamlessly with the dining room and outdoor spaces. Glass panels blur the boundaries between these areas, creating a harmonious flow between the interior and the garden, which features a pool and a gourmet area. These spaces are arranged in a way that allows natural light to flood every corner, enhancing the residence’s warm and welcoming atmosphere.


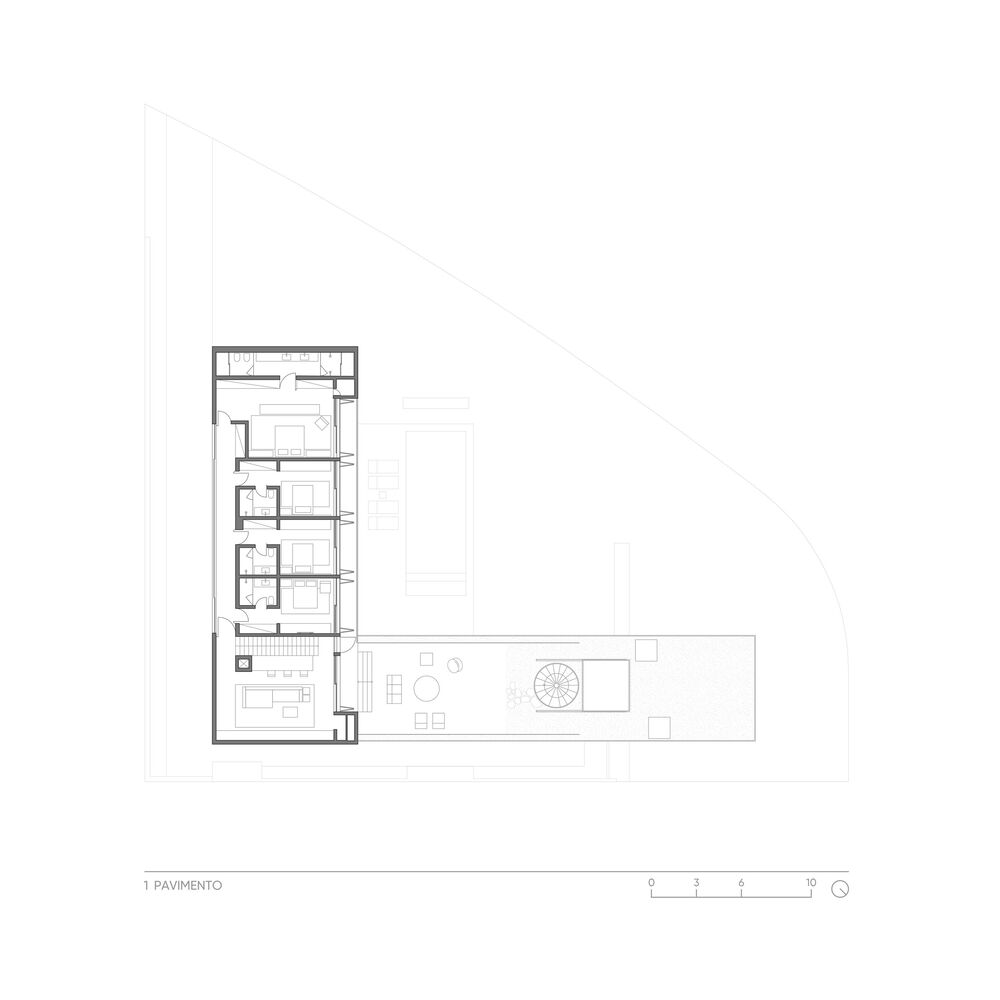
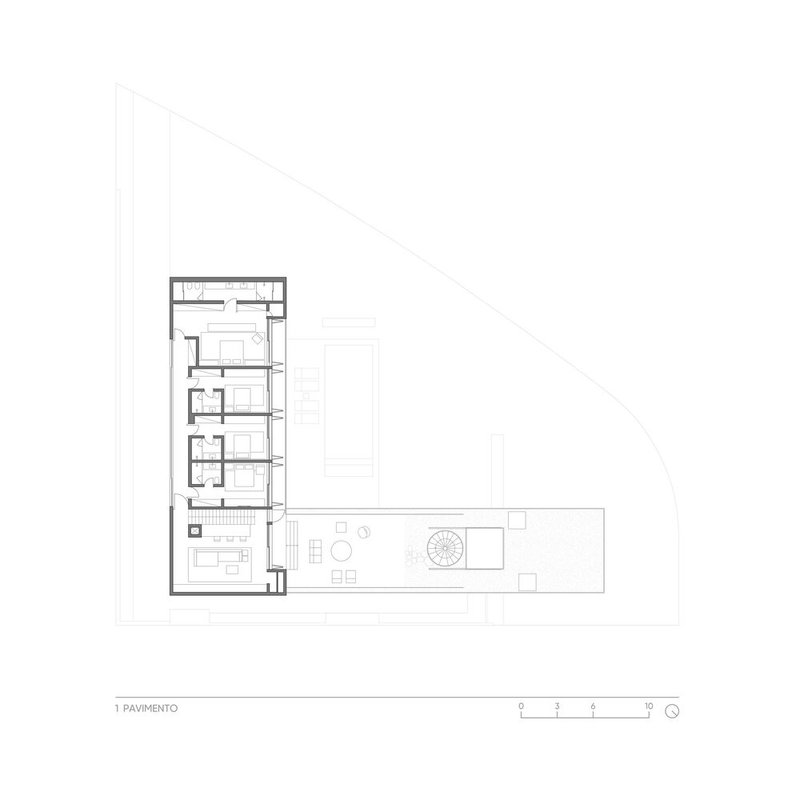
The private quarters, including the bedrooms, are located on the first floor. This strategic design ensures privacy for the residents while offering elevated views of the surrounding landscape. The upper-level windows frame the hills and sunsets, turning nature into a living artwork visible from within the home.


Sculptural Staircase and Concrete Overhang
One of the most striking architectural elements of the São Carlos Residence is its sculptural concrete staircase. This staircase serves not only as a functional feature connecting the three floors but also as a symbolic centerpiece that defines the home’s contemporary aesthetic.



The staircase is paired with a dramatic concrete overhang that extends outward, providing a covered area for the garage. This design detail demonstrates the creative use of structural elements to enhance both form and function, a hallmark of Gui Mattos’ architectural vision.


The Balance Between Modernity and Tradition
The São Carlos Residence captures the essence of modern Brazilian house design by blending contemporary materials with traditional architectural principles. The use of concrete, masonry, and wood reflects a thoughtful approach to materiality, while the integration of natural light and open spaces emphasizes the importance of connecting with the environment.




This residence is more than just a house; it is a celebration of balance—between privacy and openness, between minimalism and warmth, and between modernity and tradition.







The São Carlos Residence by Gui Mattos exemplifies the best of modern Brazilian house design. With its discreet facade, innovative layout, and seamless integration of indoor and outdoor spaces, it redefines the relationship between architecture and the natural world. The house is a true testament to the power of thoughtful design in creating spaces that are both functional and beautiful.




All Photographs are work of Carolina Lacaz
Popular Articles
Popular articles from the community
The Ken Roberts Memorial Delineation Competition (Krob)
As the most senior architectural drawing competition currently in operation anywhere in the world, it draws hundreds of entries each year, awarding the very best submissions in a series of medium-based categories.
Free Architecture Competitions You Can Enter Right Now
No entry fees, real prizes. Here are the best free architecture competitions open for submissions in 2026.
Fifth NRE Jazz Club – De Bever Architecten: Eindhoven’s Revitalized Cultural Hub
Historic gas factory transformed into Fifth NRE Jazz Club blending modern sustainability, jazz culture, dining, and heritage architecture seamlessly.
Solar Steam: A Climate-Responsive Architecture That Redefines the Monument
A climate-responsive memorial architecture that transforms heat, decay, and time into a living system reflecting humanity’s ecological impact.
Similar Reads
You might also enjoy these articles
The Ken Roberts Memorial Delineation Competition (Krob)
As the most senior architectural drawing competition currently in operation anywhere in the world, it draws hundreds of entries each year, awarding the very best submissions in a series of medium-based categories.
Waterfront Redevelopment and Urban Revitalization in Mumbai: Forging a New Dawn for Darukhana
A transformative waterfront redevelopment project reimagining Darukhana’s shipbreaking heritage into an inclusive urban future.
OUT-OF-MAP: A Call for Postcards on Feminist Narratives of Public Space
Rhizoma Design and Research Lab invites artists, designers, architects, researchers, and students to reflect on how feminist perspectives can reshape public space. Selected works will be exhibited in Barcelona, October 2026. Submissions open until 15 April 2026.
Documentation Work on Buddhist Wooden Temple
Architectural syncretism and cultural hybridity: A comparative study of the Buddhist temples in Chattogram Hill tracks
Explore Architecture Competitions
Discover active competitions in this discipline
The International Standard for Design Portfolios
The Global Benchmark for Architecture Dissertation Awards
The Global Benchmark for Graduation Excellence
Challenge to reimagine the Iron Throne
Comments (0)
Please login or sign up to add comments
No comments yet. Be the first to comment!