Modern Brewery Architecture: The Innovative Design of Lindemans Brewery by A2D Architects
Lindemans Brewery showcases modern brewery architecture, combining industrial functionality with innovative design by A2D Architects in Belgium.
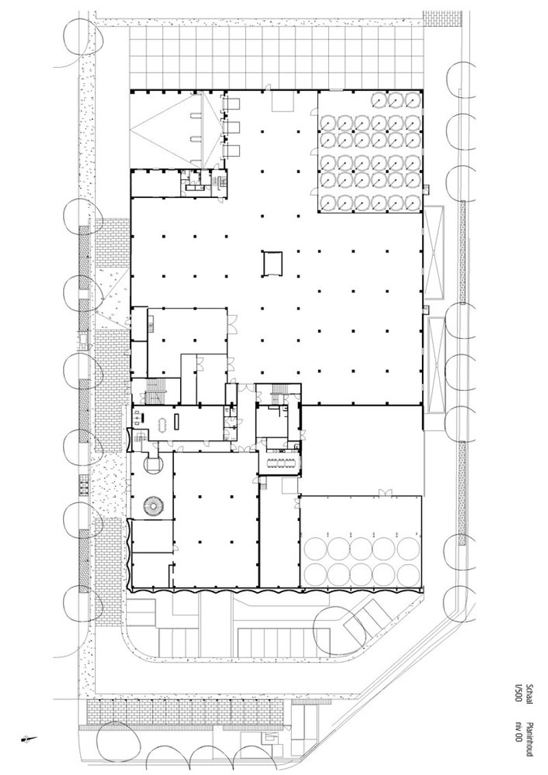
The Lindemans Brewery, designed by A2D Architects, stands as a striking example of modern brewery architecture that masterfully blends industrial functionality with contemporary design. Completed in 2022, this 15,220 m² brewery is located in the industrial district of Ruisbroek, within the Sint-Pieters-Leeuw municipality in Belgium. It represents the first phase of a satellite brewery expansion, demonstrating how industrial buildings can merge operational efficiency with architectural elegance.




Integrating Form and Function in Modern Brewery Architecture
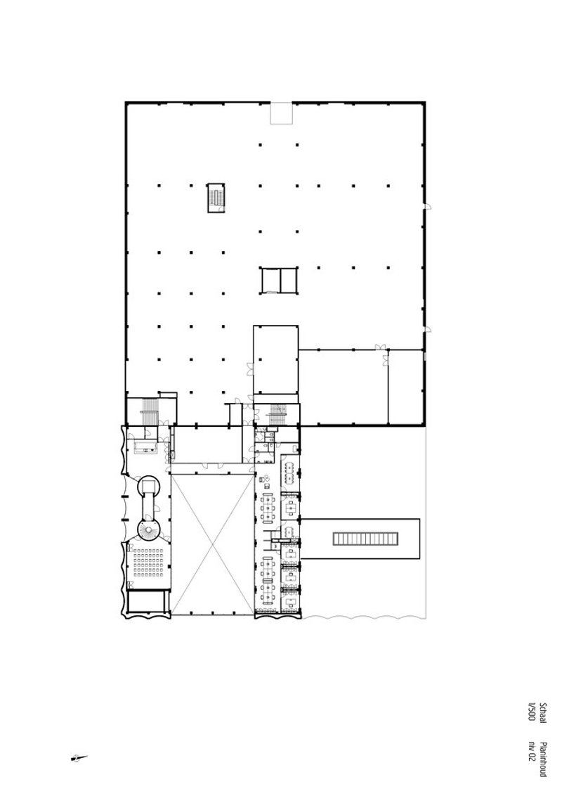
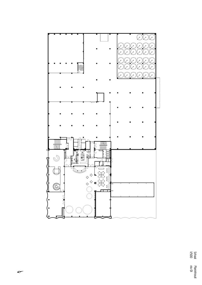
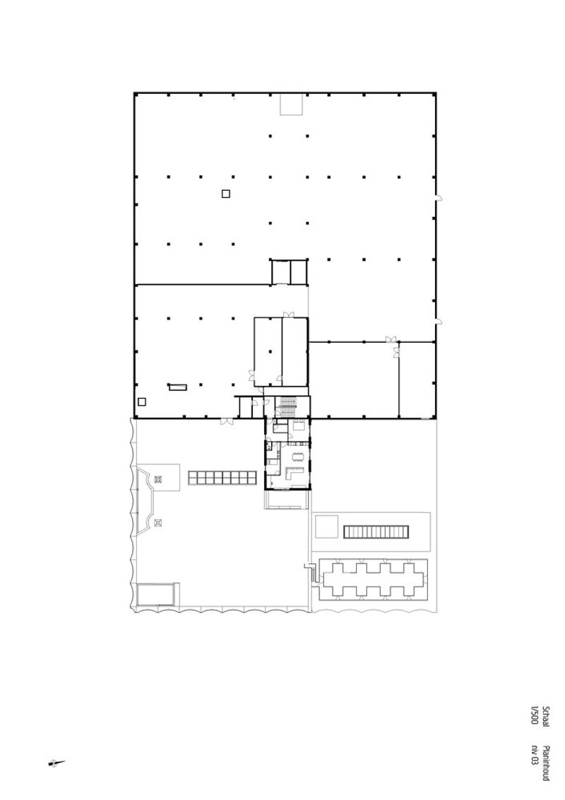
The design of Lindemans Brewery consists of two primary volumes: a production hall and a publicly accessible office building that houses a brewing hall and event spaces. This layout reflects the evolving demands of modern brewery architecture, where production facilities are no longer hidden but showcased as part of the brand experience. The office building serves as a dynamic hub for visitors, featuring a large event space, retail areas, conference rooms, and a terrace designed for public gatherings.



The Iconic Façade Defining Modern Brewery Architecture
The brewing hall is the architectural centerpiece of the brewery. Its façade is inspired by the cylindrical forms of the beer silos used in production. The design features vertical concave brick elements that create a rhythmic pattern across the exterior, punctuated by large openings that function as windows or terraces. This visual playfulness is anchored by a concrete plinth, giving the structure both elegance and stability.



The red and brown brick façade pays homage to the 19th-century breweries that once dominated Belgium’s industrial landscape. The combination of traditional materials with innovative geometry gives the building a timeless aesthetic, representing the fusion of heritage and modern brewery architecture.


The Production Hall: A Subdued Complement to the Brewing Hall
While the brewing hall commands attention, the adjacent production hall adopts a more restrained architectural language. Constructed using prefabricated concrete sandwich panels, its neutral appearance allows it to act as a supportive backdrop to the brewery’s main architectural statement. The simplicity of the production hall emphasizes the brewing hall's expressive façade, reinforcing the narrative balance between functionality and design innovation.



Architectural Detailing in Modern Brewery Design
Material selection is a defining aspect of Lindemans Brewery. The brewing hall relies on brick for its exterior, with architectural concrete forming the base, window caps, and sills. The railings, executed in lacquered aluminum or steel, contribute to the industrial aesthetic while ensuring durability.


An enclosing wall around the silo and tank area seamlessly integrates into the architectural vocabulary of the brewing hall. This wall extends the façade’s concave brick pattern, resting on a concrete base, creating visual continuity. The tanks, visible behind the wall, are crafted from polished stainless steel, enhancing their industrial appeal and emphasizing their role as both functional and aesthetic elements.


Interior Design Language Inspired by Cylindrical Forms
Inside the brewery, the architectural language established by the exterior is carried into the interior spaces. Cylindrical forms dominate the design, with a sculptural spiral staircase, a cylindrical elevator shaft, and a spacious entrance lobby that echoes the curvature of the brewing silos. This consistency in geometric expression defines the brewery’s interior experience, creating a cohesive architectural narrative.


The Future of Modern Brewery Architecture
Lindemans Brewery exemplifies the future of modern brewery architecture, where production spaces become public-facing landmarks. The brewery is not merely a facility for beer production but a destination that invites visitors to engage with the brewing process. The successful integration of industrial elements with bold architectural forms demonstrates that breweries can be both efficient and visually compelling.



The Lindemans Brewery by A2D Architects redefines what a modern industrial building can achieve. Through careful attention to materials, form, and spatial relationships, the project transforms an industrial brewery into an architectural landmark, symbolizing the evolution of modern brewery architecture in contemporary industrial design.


All Photographs are works of Alex Verhalle and Jelle Van Seghbroeck
Popular Articles
Popular articles from the community
Inverted Architecture Installation by Studio Link-Arc: Exploring the Intersection of Architecture and Living Organisms
Inverted Architecture Installation by Studio Link-Arc blends mycelium, sustainability, inverted design, ecological cycles, and urban adaptive architecture in Shenzhen.
Alton Cliff House: A Harmonious Retreat by f2a Architecture in Lake Country, Canada
Alton Cliff House blends corten steel, prefabrication, and sustainable design, creating a luxurious, energy-efficient retreat perched on Canadian cliffs.
Free Architecture Competitions You Can Enter Right Now
No entry fees, real prizes. Here are the best free architecture competitions open for submissions in 2026.
Similar Reads
You might also enjoy these articles
The Ken Roberts Memorial Delineation Competition (Krob)
As the most senior architectural drawing competition currently in operation anywhere in the world, it draws hundreds of entries each year, awarding the very best submissions in a series of medium-based categories.
Waterfront Redevelopment and Urban Revitalization in Mumbai: Forging a New Dawn for Darukhana
A transformative waterfront redevelopment project reimagining Darukhana’s shipbreaking heritage into an inclusive urban future.
OUT-OF-MAP: A Call for Postcards on Feminist Narratives of Public Space
Rhizoma Design and Research Lab invites artists, designers, architects, researchers, and students to reflect on how feminist perspectives can reshape public space. Selected works will be exhibited in Barcelona, October 2026. Submissions open until 15 April 2026.
Documentation Work on Buddhist Wooden Temple
Architectural syncretism and cultural hybridity: A comparative study of the Buddhist temples in Chattogram Hill tracks
Explore Architecture Competitions
Discover active competitions in this discipline
The International Standard for Design Portfolios
The Global Benchmark for Architecture Dissertation Awards
The Global Benchmark for Graduation Excellence
Challenge to reimagine the Iron Throne
Comments (0)
Please login or sign up to add comments
No comments yet. Be the first to comment!