Modern Church Architecture with Multi-functional Design: Köln-Weidenpesch Church
This article explores the innovative design of Köln-Weidenpesch Church, blending sacred architecture with multifunctional community-focused spaces.
The Köln-Weidenpesch Church, designed by Harris + Kurrle Architekten BDA, represents a groundbreaking approach to modern church architecture. This project harmoniously integrates sacred and secular spaces, redefining the role of religious buildings in urban communities.

A Multifunctional Vision for Worship and Community
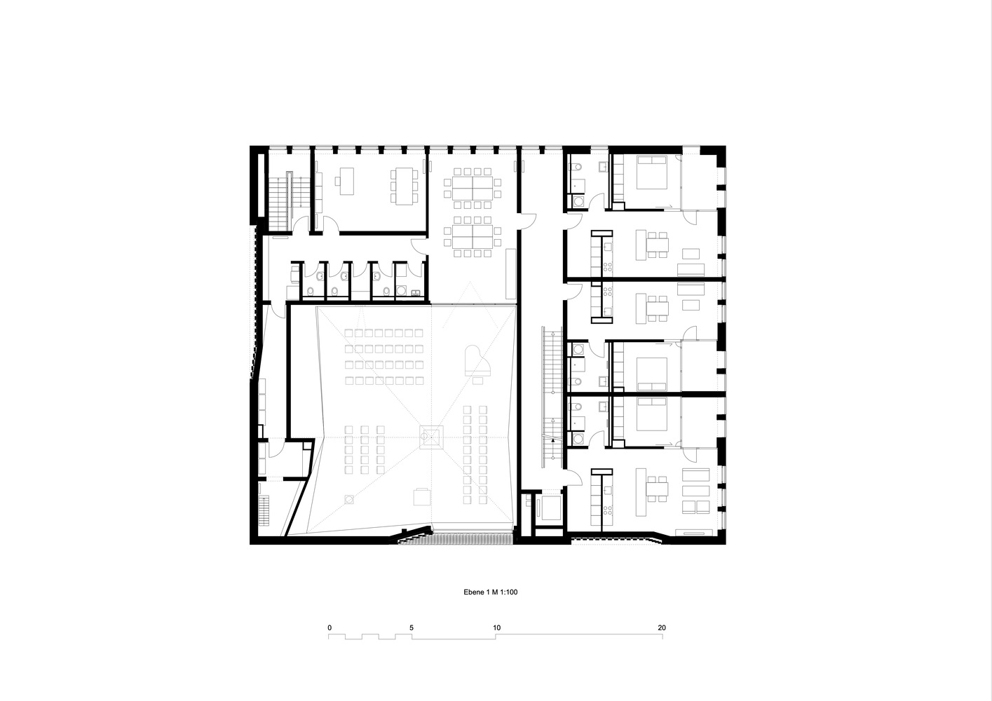
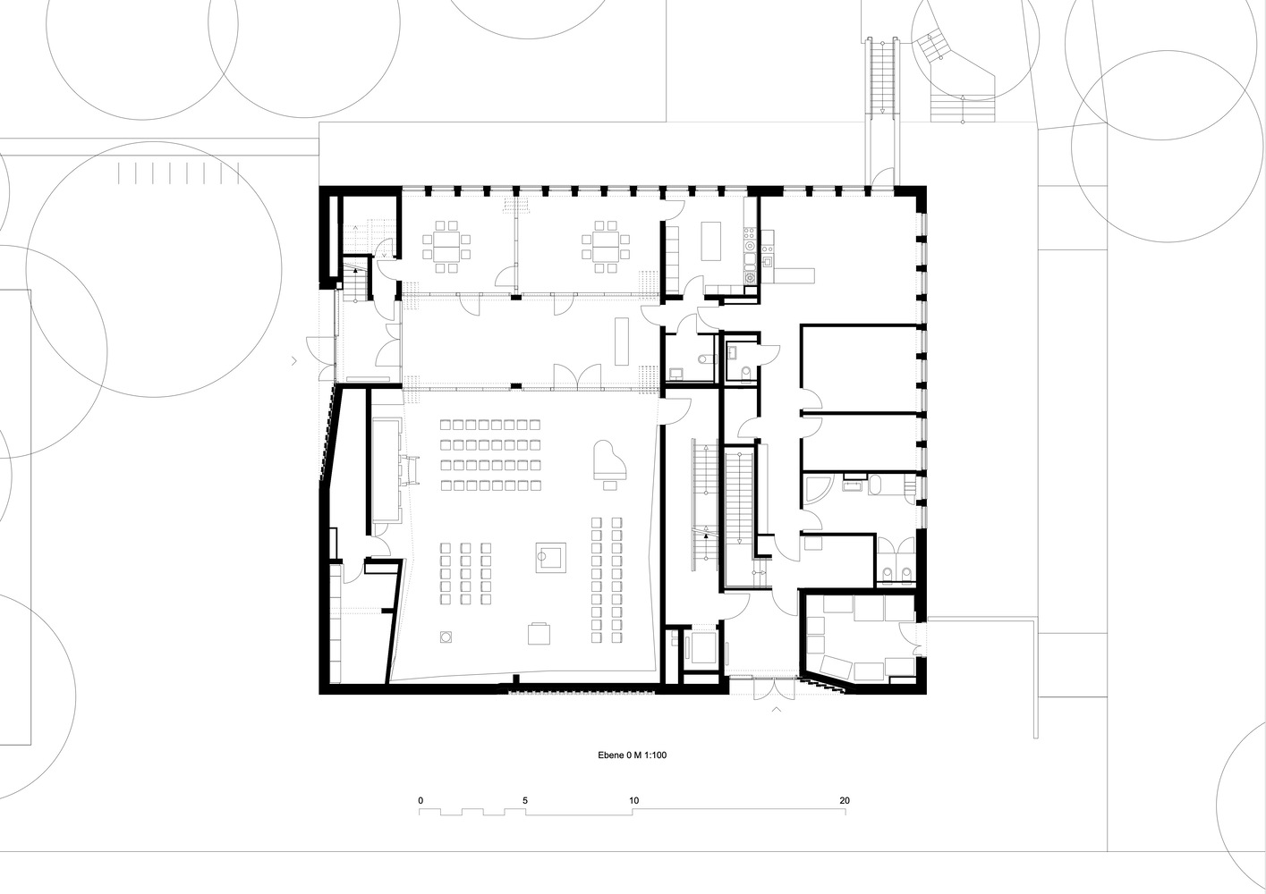
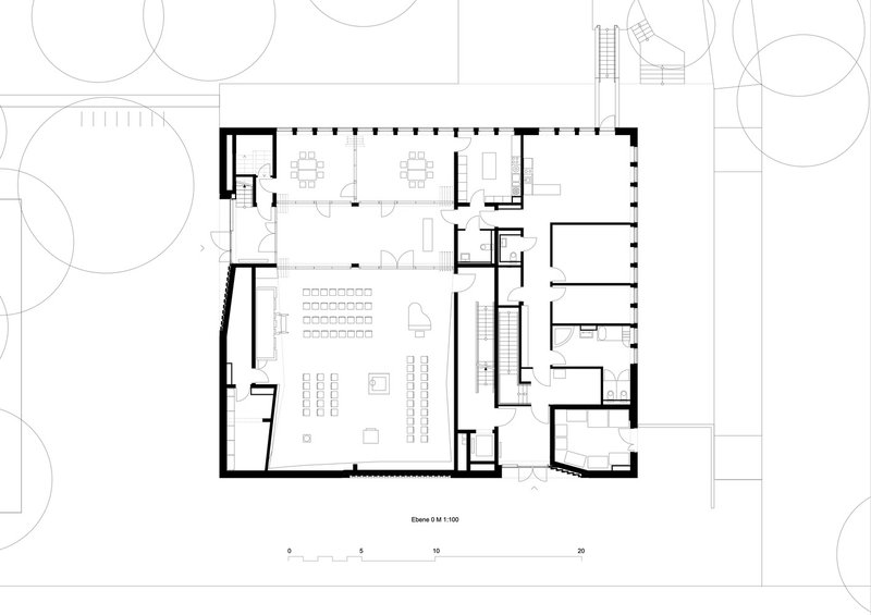
The project was born from a practical yet innovative vision. It consolidated two 1960s church sites into a single multifunctional structure, featuring a worship area, community center, day-care facilities, residential flats, and offices. This hybrid development emphasizes functionality without compromising the spiritual atmosphere.
The architectural competition held in 2015 was won by Harris + Kurrle Architekten, who proposed a design that embodies inclusivity, utility, and elegance.


Compact Design for Urban Integration
The building's compactness balances its height, ensuring it does not overpower its surroundings while creating a defined and inviting church square. The façade, constructed from sand-colored clinker bricks, establishes an aesthetic uniformity, while ornamental brickwork highlights sacred elements like the church windows, bell tower, and entrance portals.
This seamless blend of modern design principles and traditional materials helps the church convey a sense of sacredness and openness to the urban landscape.


Architectural Features and Design Highlights
1. Exterior Design: Enclosing Sacred and Secular Life
The exterior treatment symbolizes the coexistence of sacred and profane functions.
- Worship space façade: Predominantly closed, with purposefully placed windows to accentuate the sanctity.
- Community functions façade: Structured by a uniform grid of windows, reflecting everyday activities.
These distinct façades, unified by the brick material, highlight the building's multifunctional purpose.

2. Interior Design: Illuminated by Natural Light
Natural light plays a central role in shaping the church's serene interior. Key lighting features include:
- South-facing artist-designed window: Created by Gabriele Wilpers, offering direct sunlight.
- Zenithal lighting: Above the cross area, symbolizing divine connection.
The white walls and ceilings emphasize the varying light effects, enhancing the contemplative atmosphere and complementing religious artifacts.

3. Adaptive Spaces for Community Needs
The building’s adaptability is one of its strongest features:
- Movable partition walls allow the group rooms and lobby to merge with the worship area for larger gatherings.
- Day-care facilities include a garden-level play area and multi-purpose rooms, integrating children into the community.
- Residential flats: Nine units are designed on upper floors, contributing to urban housing solutions.

Sustainable and Inclusive Urban Design
The church square acts as a welcoming public space with long benches under mature trees, encouraging interaction and reflection. The garden, primarily serving the daycare center, includes a terrace for community celebrations and a natural adventure area for children.
This integration of open spaces with the building reinforces the principle of being "surrounded by life," a core design ethos.

Products and Materials Used
To maintain aesthetic and functional integrity, the architects employed high-quality materials:
- Clinker Bricks: Feldhaus Klinker’s Modern Waterstruck Vario was chosen for its durability and timeless appeal.
- Windows and Fixtures: Provided by Schüco, ensuring energy efficiency and precision.


A Beacon of Modern Church Architecture
Köln-Weidenpesch Church redefines modern church architecture, offering a blueprint for multifunctional religious spaces that serve both spiritual and societal needs. Its design demonstrates how contemporary architecture can embrace tradition while adapting to modern urban demands.
By integrating worship spaces with day-to-day community activities, the church not only revitalizes its sacred role but also becomes a vibrant hub for urban life.


All the photographs are work of Roland Halbe
Popular Articles
Popular articles from the community
Gads Hill Early Learning Center by JGMA: Adaptive Reuse Shaping Community-Focused Educational Architecture
Adaptive reuse transforms fragmented structure into vibrant early learning center with playful façade, natural light, and community-focused sustainable design.
Alton Cliff House: A Harmonious Retreat by f2a Architecture in Lake Country, Canada
Alton Cliff House blends corten steel, prefabrication, and sustainable design, creating a luxurious, energy-efficient retreat perched on Canadian cliffs.
The Ken Roberts Memorial Delineation Competition (Krob)
As the most senior architectural drawing competition currently in operation anywhere in the world, it draws hundreds of entries each year, awarding the very best submissions in a series of medium-based categories.
Similar Reads
You might also enjoy these articles
The Ken Roberts Memorial Delineation Competition (Krob)
As the most senior architectural drawing competition currently in operation anywhere in the world, it draws hundreds of entries each year, awarding the very best submissions in a series of medium-based categories.
Waterfront Redevelopment and Urban Revitalization in Mumbai: Forging a New Dawn for Darukhana
A transformative waterfront redevelopment project reimagining Darukhana’s shipbreaking heritage into an inclusive urban future.
OUT-OF-MAP: A Call for Postcards on Feminist Narratives of Public Space
Rhizoma Design and Research Lab invites artists, designers, architects, researchers, and students to reflect on how feminist perspectives can reshape public space. Selected works will be exhibited in Barcelona, October 2026. Submissions open until 15 April 2026.
Documentation Work on Buddhist Wooden Temple
Architectural syncretism and cultural hybridity: A comparative study of the Buddhist temples in Chattogram Hill tracks
Explore Architecture Competitions
Discover active competitions in this discipline
The International Standard for Design Portfolios
The Global Benchmark for Architecture Dissertation Awards
The Global Benchmark for Graduation Excellence
Design Challenge - Contemporary interpretation of a religious complex
Comments (0)
Please login or sign up to add comments
No comments yet. Be the first to comment!