Modern Courtyard House Design: A Blend of Tradition and Innovation at The Aranya House
The Aranya House by Modo Designs merges modern courtyard design with traditional elements, fostering familial unity and connection to nature in India.
Nestled on the outskirts of Ahmedabad, India, The Aranya House by Modo Designs stands as a testament to the enduring appeal of courtyard architecture, reimagined for a contemporary three-generational Gujarati family. This residence demonstrates how modern courtyard house design can foster familial bonds while harmonizing with nature.


Architectural Vision
A House Divided, Yet United
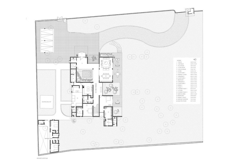
The Aranya House is characterized by its two-bay organization, where domestic functions are thoughtfully separated yet connected through spatial design. The ground floor hosts communal and private spaces that blend seamlessly with the central courtyard and lush garden, creating a dialogue between indoor comfort and outdoor tranquility.


Design Details
The Courtyard: A Centrepiece of Family Life
At the heart of the home, the courtyard serves as a focal point around which daily life revolves. It is not only a traditional element reinterpreted but also a space where light, air, and greenery permeate the living areas, enriching the family's living experience.


Spatial Configuration
Harmony of Spaces
The strategic layout includes a variety of living spaces that cater to the needs of a multi-generational family. From the cozy entry vestibule to the expansive living and dining areas that open up to the garden, each area is designed with an emphasis on openness, light, and connectivity to nature.




Materiality and Texture
A Palette Reflecting Earth and Sky
The Aranya House employs a rich palette of materials that speak to both the earthy and ethereal aspects of its surroundings. From the polished kota stone floors to the rough wood shuttered concrete walls, and the reclaimed valsadi wood doors and windows, the house is a study in tactile and visual contrasts, grounded in local craftsmanship and sustainability.


Living with Nature
Indoor-Outdoor Synergy
One of the standout features of modern courtyard house design is the seamless transition between indoor and outdoor spaces. The Aranya House exemplifies this principle through its open verandahs, verdant landscapes, and the thoughtful orientation of rooms towards the garden, inviting nature into the very fabric of the home.



Redefining Residential Architecture
The Aranya House by Modo Designs is more than just a residence; it is a blueprint for modern courtyard house design that respects traditional values while embracing contemporary living standards. It stands as a beacon of architectural innovation, offering a serene, interconnected environment that nurtures family life and deepens the connection to the natural world.


All photographs are work of Umangshah photography
Popular Articles
Popular articles from the community
Free Architecture Competitions You Can Enter Right Now
No entry fees, real prizes. Here are the best free architecture competitions open for submissions in 2026.
Magic Box Office Barcelona Innovative Sustainable Workplace Design
Innovative sustainable office design featuring triangular form, ceramic façade, flexible interiors, natural light optimization, and creative workspace for modern work culture.
Filtering Space: A Gradual Spatial Experience
From urban intensity to spatial calm.
TGK Nirasaki Plant: A Smart Factory Blending Technology, Landscape, and Wellness
Smart factory in Japan blending IoT manufacturing, scenic trail design, natural ventilation, and landscape integration to enhance user experience and sustainability.
Similar Reads
You might also enjoy these articles
Filtering Space: A Gradual Spatial Experience
From urban intensity to spatial calm.
The Ken Roberts Memorial Delineation Competition (Krob)
As the most senior architectural drawing competition currently in operation anywhere in the world, it draws hundreds of entries each year, awarding the very best submissions in a series of medium-based categories.
Waterfront Redevelopment and Urban Revitalization in Mumbai: Forging a New Dawn for Darukhana
A transformative waterfront redevelopment project reimagining Darukhana’s shipbreaking heritage into an inclusive urban future.
OUT-OF-MAP: A Call for Postcards on Feminist Narratives of Public Space
Rhizoma Design and Research Lab invites artists, designers, architects, researchers, and students to reflect on how feminist perspectives can reshape public space. Selected works will be exhibited in Barcelona, October 2026. Submissions open until 15 April 2026.
Explore Architecture Competitions
Discover active competitions in this discipline
The International Standard for Design Portfolios
The Global Benchmark for Architecture Dissertation Awards
The Global Benchmark for Graduation Excellence
Challenge to reimagine the Iron Throne
Comments (0)
Please login or sign up to add comments
No comments yet. Be the first to comment!