Modern Cultural Centers in Paris: The Centre Paris Anim' Jean-Michel Martial by EGA Erik Giudice Architects
A sustainable cultural center in Paris blending architecture, education, and community activities with a rooftop garden and modern design.
Redefining Urban Community Spaces
The Centre Paris Anim' Jean-Michel Martial is an exemplary model of how architecture can foster community engagement. Designed by EGA Erik Giudice Architects, this 962 m² center in Paris' 18th arrondissement is a dynamic blend of culture, education, and sports. Completed in 2022, it stands as a vital part of Paris' effort to modernize community infrastructure while promoting environmental sustainability.



A New Cultural Landmark for the 18th Arrondissement
The center was developed as part of an urban renewal initiative, replacing the old structure and reconfiguring outdoor sports grounds. It serves as a vibrant hub where residents, particularly youth and children, can engage in diverse activities—ranging from cultural workshops to athletic pursuits.
By integrating features such as a dance studio, music rooms, multifunctional spaces, and a rooftop garden, the center balances utility with aesthetic appeal, becoming a focal point for neighborhood interaction.



Architectural Design: Minimalism Meets Functionality
The building's design is rooted in simplicity and elegance, described as a "Parisian white" mineral volume. It harmonizes with the dense urban environment while maintaining a timeless visual identity. Key architectural highlights include:

Facade and Materiality
- White Concrete Panels: Sandblasted with circular patterns that reveal underlying textures, creating an interplay of opacity and transparency.
- Large Openings: Strategically placed to optimize natural light and frame views of the surrounding neighborhood.
- Perforated Metal Panels: These enhance sun protection, ventilation, and aesthetic continuity.


Entrance and Interiors
The entrance, clad in solid oak slats, exudes warmth and invites visitors into a space defined by:
- Vertical Wooden Grooves: Acoustic panels and ceilings that complement the raw concrete walls.
- Generous Ceiling Heights: Creating spacious interiors for a variety of activities.
- Compact Circulation System: Featuring a prominent staircase that efficiently connects the building’s four floors.


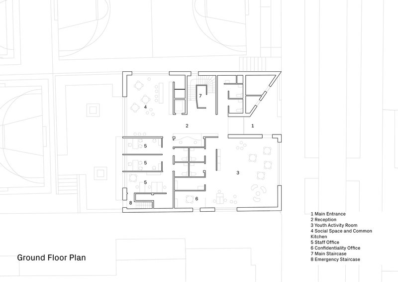
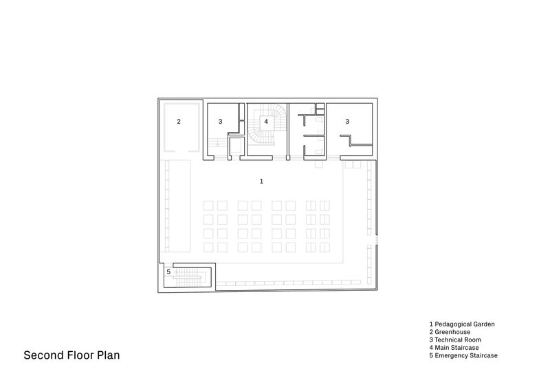
Programming and Spatial Distribution
The center’s layout is carefully organized to facilitate its multifunctional use:
- Lower Floor: Music studio for creative exploration.
- Ground Floor: Entrance lobby, reception, kitchen, event spaces, and youth activity rooms.
- First Floor: Art workshops, digital studios, and a dance studio.
- Rooftop Terrace: A pedagogical "secret garden" promoting environmental awareness and tranquility amidst the urban setting.




Sustainability and Community Impact
The center embodies environmental consciousness through:
- Natural Ventilation and Light: Reducing reliance on artificial systems.
- Minimal Resource Use: A robust yet sustainable design ethos.
- Biodiversity Promotion: The rooftop garden serves as an educational platform and green retreat.
This eco-friendly approach, combined with its social and cultural functionality, transforms the center into a "public living room" for the community—a space to learn, socialize, and relax.




A Modern Beacon of Cultural Integration
The Centre Paris Anim' Jean-Michel Martial is more than a building; it is a testament to modern architecture’s role in fostering community spirit and environmental stewardship. Its thoughtful design and multifunctionality set a benchmark for cultural centers worldwide.




All photographs are work of Olivier Martin Gambier
Popular Articles
Popular articles from the community
The Ken Roberts Memorial Delineation Competition (Krob)
As the most senior architectural drawing competition currently in operation anywhere in the world, it draws hundreds of entries each year, awarding the very best submissions in a series of medium-based categories.
Inverted Architecture Installation by Studio Link-Arc: Exploring the Intersection of Architecture and Living Organisms
Inverted Architecture Installation by Studio Link-Arc blends mycelium, sustainability, inverted design, ecological cycles, and urban adaptive architecture in Shenzhen.
Alton Cliff House: A Harmonious Retreat by f2a Architecture in Lake Country, Canada
Alton Cliff House blends corten steel, prefabrication, and sustainable design, creating a luxurious, energy-efficient retreat perched on Canadian cliffs.
Similar Reads
You might also enjoy these articles
The Ken Roberts Memorial Delineation Competition (Krob)
As the most senior architectural drawing competition currently in operation anywhere in the world, it draws hundreds of entries each year, awarding the very best submissions in a series of medium-based categories.
Waterfront Redevelopment and Urban Revitalization in Mumbai: Forging a New Dawn for Darukhana
A transformative waterfront redevelopment project reimagining Darukhana’s shipbreaking heritage into an inclusive urban future.
OUT-OF-MAP: A Call for Postcards on Feminist Narratives of Public Space
Rhizoma Design and Research Lab invites artists, designers, architects, researchers, and students to reflect on how feminist perspectives can reshape public space. Selected works will be exhibited in Barcelona, October 2026. Submissions open until 15 April 2026.
Documentation Work on Buddhist Wooden Temple
Architectural syncretism and cultural hybridity: A comparative study of the Buddhist temples in Chattogram Hill tracks
Explore Architecture Competitions
Discover active competitions in this discipline
The International Standard for Design Portfolios
The Global Benchmark for Architecture Dissertation Awards
The Global Benchmark for Graduation Excellence
Challenge to reimagine the Iron Throne
Comments (0)
Please login or sign up to add comments
No comments yet. Be the first to comment!