Modern Cultural Centre Design: Bourg-la-Reine by Dominique Coulon & Associés
Bourg-la-Reine Cultural Centre by Dominique Coulon & Associés transforms a challenging site into a vibrant hub for arts and community.
The Cultural Centre in Bourg-la-Reine, designed by Dominique Coulon & Associés, is a masterful example of modern cultural centre design. Situated on a challenging L-shaped plot next to a railway embankment, this 2550 m² building transforms an unlikely site into a vibrant hub for arts, education, and community engagement.




The Challenge: A Complex Site
The project’s location posed significant challenges. The narrow, L-shaped plot is adjacent to a high railway embankment and a hidden road, making it far from ideal for a public building. The architects responded by creating a design that stands out as a public edifice while harmonizing with the surrounding vegetation and residential context.



The Concept: Connection and Integration
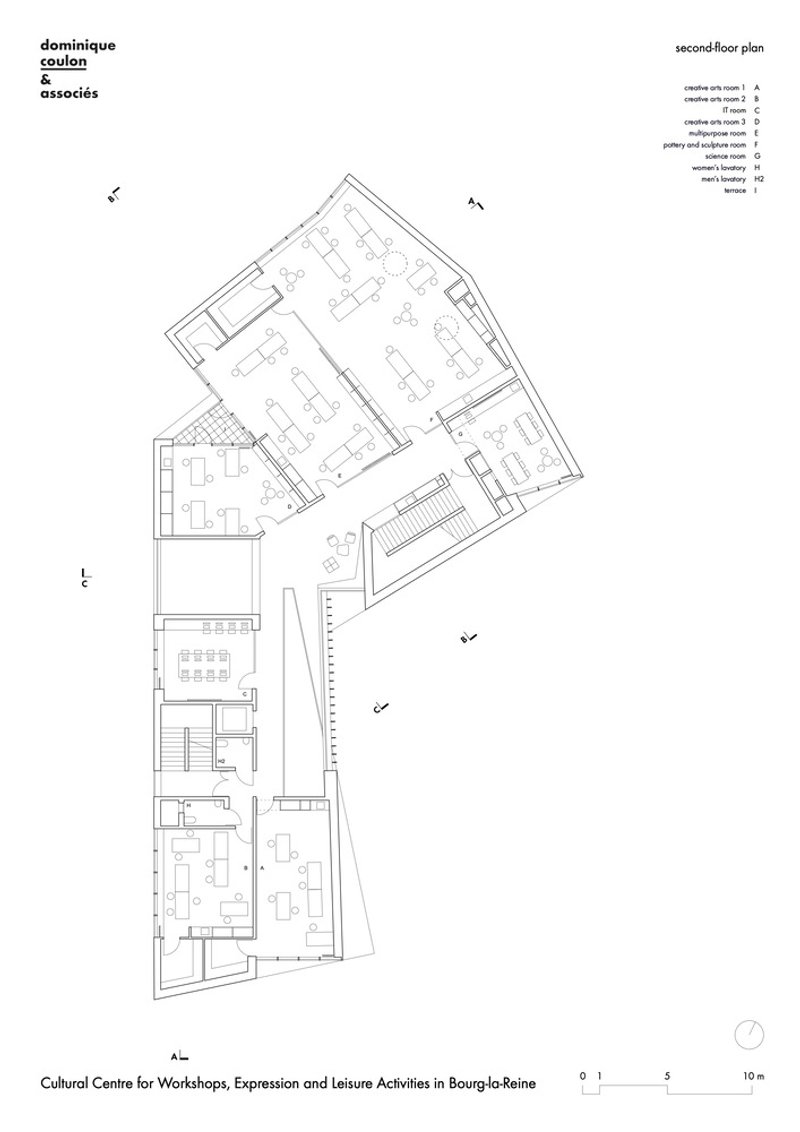
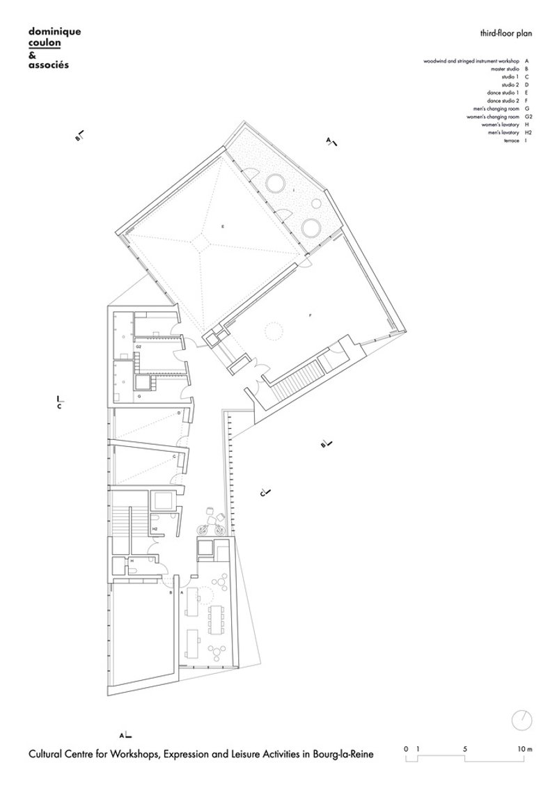
The design’s central theme is connection. The Cultural Centre houses a diverse range of spaces, including a 250-seat theatre, dance studios, music and language rooms, exhibition spaces, workshops, and administrative offices. The architects focused on creating a spatial arrangement that fosters interaction and integration between these varied functions.
Spatial Organization: A Unifying Hall
At the heart of the building is a triple-height entrance hall that serves as a unifying space. Positioned in the curve of the road, the hall connects the two sections of the building and encourages encounters among visitors. Large glazed openings offer views of the adjacent vegetation, bringing nature into the building and creating a sense of openness.




Interior Design: Interwoven Spaces
The building’s interior is characterized by oblique forms and folds that intertwine, reflecting the plot’s unusual geometry. A vast open space spans three levels, featuring double heights, viewpoints, walkways, and suspended spaces. This design not only enhances spatial connectivity but also creates a dynamic and engaging environment for visitors.




Natural Light and Views
Despite the site’s constraints, the architects prioritized natural light and views. The triple-height hall captures sunlight, while large windows across the facade frame vistas of the sky and trees. These elements create a sense of generosity and openness, reinforcing the building’s public character.




Materiality and Facade: A Public Statement
The facade, clad in limestone, features large windows that create hollows in the structure. These windows not only reveal the building’s programmatic richness but also establish its identity as a public edifice. The interplay of light, vegetation, and crisscrossing views adds depth and texture to the design.






A Hub for Community and Culture
The Cultural Centre in Bourg-la-Reine is a testament to the power of modern cultural centre design. By addressing the challenges of a complex site and prioritizing connection, light, and spatial richness, Dominique Coulon & Associés have created a building that is both functional and inspiring. It stands as a vibrant hub for arts, education, and community life.










All Photographs are works of Eugeni Pons
Popular Articles
Popular articles from the community
Marvila Apartment Renovation in Lisbon: A Bright Minimalist Attic Transformation by KEMA Studio
Bright attic transformed into minimalist Lisbon apartment with skylights, sustainable materials, open plan layout, and industrial-inspired interior design elements.
Split House: A Compact Urban Home Blending Privacy, Light, and Flexible Living in Japan
Compact Japanese home featuring DOMA space, flexible café potential, passive lighting, privacy zoning, and sustainable urban living design.
TGK Nirasaki Plant: A Smart Factory Blending Technology, Landscape, and Wellness
Smart factory in Japan blending IoT manufacturing, scenic trail design, natural ventilation, and landscape integration to enhance user experience and sustainability.
Magic Box Office Barcelona Innovative Sustainable Workplace Design
Innovative sustainable office design featuring triangular form, ceramic façade, flexible interiors, natural light optimization, and creative workspace for modern work culture.
Similar Reads
You might also enjoy these articles
Filtering Space: A Gradual Spatial Experience
From urban intensity to spatial calm.
The Ken Roberts Memorial Delineation Competition (Krob)
As the most senior architectural drawing competition currently in operation anywhere in the world, it draws hundreds of entries each year, awarding the very best submissions in a series of medium-based categories.
Waterfront Redevelopment and Urban Revitalization in Mumbai: Forging a New Dawn for Darukhana
A transformative waterfront redevelopment project reimagining Darukhana’s shipbreaking heritage into an inclusive urban future.
OUT-OF-MAP: A Call for Postcards on Feminist Narratives of Public Space
Rhizoma Design and Research Lab invites artists, designers, architects, researchers, and students to reflect on how feminist perspectives can reshape public space. Selected works will be exhibited in Barcelona, October 2026. Submissions open until 15 April 2026.
Explore Architecture Competitions
Discover active competitions in this discipline
The International Standard for Design Portfolios
The Global Benchmark for Architecture Dissertation Awards
The Global Benchmark for Graduation Excellence
Challenge to reimagine the Iron Throne
Comments (0)
Please login or sign up to add comments
No comments yet. Be the first to comment!